Dit huis op Funda: https://www.funda.nl/detail/koop/hoogkarspel/huis-de-fluter-10/43286597/

De Fluter 101616 RP HoogkarspelPlan Noord
€ 365.000 k.k.
BlikvangerGezinswoning met royale living, garage en diepe tuin aan vaarwater!
Omschrijving
Gezinswoning met royale living, garage en diepe tuin aan vaarwater!
Op een aantrekkelijke en rustige locatie in Hoogkarspel, kindvriendelijk gelegen en dicht bij alle voorzieningen, mogen wij je namens Jelle Ooteman Makelaars deze verrassende gezinswoning met oprit, garage en tuin aan het water presenteren. Met de diepe tuin, de vlonder aan doorgaand vaarwater en de aangebouwde garage plus oprit voor de auto’s, is dit zonder meer een woonkans die veel woonwensen afvinkt.
De basis, bestaande uit de aangenaam bemeten ruimtes, de praktische indeling, de garage en de diepe tuin aan het vaarwater, verzekert je hier van een hele aangename woonbeleving, tegelijkertijd behoeft het huis onderhoud en modernisering.
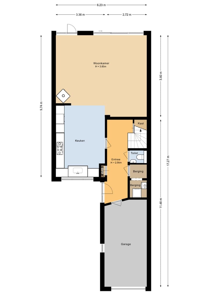
Het geheel meet 105 m2 en is gelegen op 242 m2 perceel. Bij binnenkomst springt de leefruimte beneden in het oog: een sfeervolle en tuingerichte living met hoge nok en veel lichtinval. De keuken, die in 2008 naar de voorzijde van de woning is verplaatst, vormt een bijzonder prettige plek binnen de royale leefruimte. De woonkamer strekt zich over de volle lengte van de woning uit en vormt een indrukwekkend geheel waarin zitgedeelte, eethoek en keuken mooi in elkaar overvloeien. Grote raampartijen bieden volop lichtinval, terwijl de houtkachel als eyecatcher warmte toevoegt.
De indeling biedt verder ruimte aan een praktische hal met trapkast, toegang tot de inpandig bereikbare garage en een separate wasruimte. De inpandige garage biedt veel (opslag)ruimte, ideaal voor het opbergen van spullen, hobby’s of als werkruimte aan huis.
Op de verdiepingen tref je vier slaapkamers en een ruime badkamer met ligbad, douche en toilet. De badkamer is toe aan modernisering. De kamers zijn voorzien van elektrische rolluiken en beschikken over recht opgetrokken wanden en plafonds met inbouwspots.
De woning bevindt zich op een perceel van 242 m², met een diepe achtertuin die volop zon en privacy biedt. Het eerste terras grenst aan de woning, gevolgd door een groene tuin met achterin een tuinhuis/buitenberging. Vanuit de tuin loop je door naar de steiger, direct grenzend aan het vaarwater. Hier kan een bootje worden aangelegd en ook de aanwezige boothelling blijft achter. Dit maakt het wonen aan De Fluter 10 extra aantrekkelijk voor liefhebbers van water, natuur en buitenleven.
De locatie is eveneens een sterk pluspunt: nabij winkels, scholen, sportvoorzieningen, station en uitvalswegen. Een fijne plek waar rust en praktische ligging samenkomen.
Het geheel vormt daarmee een comfortabele en ruimtelijke gezinswoning met een bijzonder comfortabele benedenverdieping en een tuin die zich onderscheidt door de ligging aan het water.
Nieuwsgierig geworden? Jelle Ooteman Makelaars laat je deze woonkans graag zien!
Heb je interesse in dit huis en behoefte aan een professional die je adviseert? Schakel dan je eigen NVM-aankoopmakelaar in. Jouw NVM-aankoopmakelaar komt op voor jouw belang en bespaart je tijd, geld en zorgen. Adressen van collega NVM-aankoopmakelaars vind je op funda.
Kenmerken
Overdracht
- Aangeboden sinds
- Aanvaarding
- In overleg
- Vraagprijs
- € 365.000 kosten koper
- Vraagprijs per m²
- € 3.476
- Status
- Beschikbaar
Bouw
- Soort woonhuis
- Eengezinswoning, tussenwoning
- Soort bouw
- Bestaande bouw
- Bouwjaar
- 1978
- Soort dak
- Samengesteld dak bedekt met bitumineuze dakbedekking en pannen
Oppervlakten en inhoud
- Gebruiksoppervlakten
- Wonen
- 105 m²
- Overige inpandige ruimte
- 25 m²
- Externe bergruimte
- 10 m²
- Perceel
- 242 m²
- Inhoud
- 481 m³
Indeling
- Aantal kamers
- 5 kamers (4 slaapkamers)
- Aantal badkamers
- 1 badkamer en 1 apart toilet
- Badkamervoorzieningen
- Douche, ligbad, toilet, wastafel, en wastafelmeubel
- Aantal woonlagen
- 2 woonlagen en een zolder
- Voorzieningen
- Rolluiken, rookkanaal, en schuifpui
Energie
- Energielabel
- C
- Isolatie
- Dakisolatie, dubbel glas en muurisolatie
- Verwarming
- Cv-ketel
- Warm water
- Cv-ketel
- Cv-ketel
- Vaillant (gas gestookt combiketel uit 2010, eigendom)
Kadastrale gegevens
- DRECHTERLAND K 1495
- Kadastrale kaart
- Oppervlakte
- 242 m²
- Eigendomssituatie
- Volle eigendom
Buitenruimte
- Ligging
- Aan water en in woonwijk
- Tuin
- Achtertuin en voortuin
- Achtertuin
- 104 m² (15,45 meter diep en 6,75 meter breed)
- Ligging tuin
- Gelegen op het noordoosten
Bergruimte
- Schuur/berging
- Vrijstaande houten berging
- Isolatie
- Geen isolatie
Garage
- Soort garage
- Aangebouwde stenen garage en inpandig
- Capaciteit
- 1 auto
- Voorzieningen
- Elektra
- Isolatie
- Dakisolatie en muurisolatie
Parkeergelegenheid
- Soort parkeergelegenheid
- Op eigen terrein
Foto's 61
© 2001-2025 funda




























































