
Komijnhof 313193 JJ Hoogvliet RotterdamHoogvliet Noord
€ 300.000 k.k.
Omschrijving
Het betreft hier een royale 4 kamermaisonnette, verdeeld over de eerste en tweede woonlaag, met een breed balkon/dakterras op het zuidwesten, een eigen berging en het gebruik van twee parkeerplaatsen in de afgesloten onderbouw.
De woning ligt in een groene woonomgeving met voldoende (gratis) parkeergelegenheid, op loopafstand van winkelcentrum De Binnenban, goed bereikbaar met het openbaar vervoer en gunstig gesitueerd ten opzichte van uitvalswegen (A15 en A4). Ook scholen en overige voorzieningen zijn in de directe omgeving aanwezig.
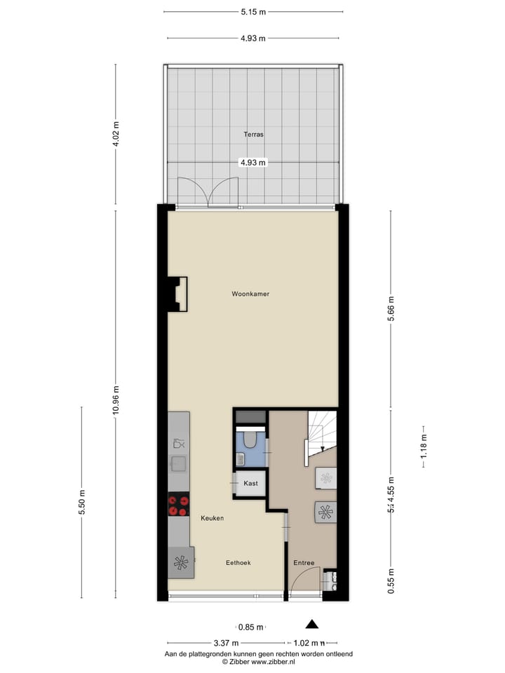
Begane grond
Via het open portiek met trappenhuis en brievenbussen bereikt u de entree van het complex. De berging (circa 6 m²) bevindt zich op de begane grond. Bij deze woning horen maar liefst twee naast elkaar gelegen parkeerplaatsen in de overdekte en afgesloten parkeergarage.
Eerste etage:
Via een buitentrap komt u op de brede galerij die toegang geeft tot de woning.
Entree met meterkast, trapopgang, toilet met fonteintje en toegang tot de keuken. De keuken is gesitueerd aan de voorzijde van de woning, waar tevens ruimte is voor de eethoek. De keuken is voorzien van een losse inductiekookplaat met afzuigschouw, vaatwasser, grote koel-/vriescombinatie en een losse magnetron. Daarnaast is er een vaste kast met legplanken.
De woonkamer bevindt zich aan de achterzijde en is voorzien van een elektrische kachel met schouw (eenvoudig te verwijderen) en openslaande deuren naar het ruime, zonnige dakterras op het zuidwesten. De vloer op deze woonlaag is afgewerkt met laminaat.
Tweede etage:
Via de overloop heeft u toegang tot drie slaapkamers, waarvan er momenteel één in gebruik is als kastenkamer.
Op de overloop bevinden zich aan beide zijden vaste kasten, waarvan één kast is voorzien van de wasmachine?aansluiting. In deze kast hangt ook de Inventum huurboiler (80 liter, bouwjaar 2021). De geheel betegelde badkamer is uitgerust met een douche, toilet, toiletkast en een wastafel met onderkast en spiegel.
De slaapkamers zijn voorzien van vloerbedekking, de overloop van laminaat.
Buiten en berging
Het zonnige dakterras ligt op het zuidwesten, strekt zich uit over de volle breedte en is voorzien van zonwering. In de afgesloten onderbouw heeft u de beschikking over een berging met elektra en de eerder genoemde twee eigen parkeerplaatsen naast elkaar.
Bijzonderheden
- Eigen grond
- Energielabel D
- Bouwjaar 1975
- Ruim zonneterras over de volle breedte, ca. 20 m²
- Blokverwarming, voorschot € 100,- per maand
- Elektrische huurboiler (Inventum, 80 liter), € 15,43 per maand
- VvE bijdrage ca. € 263,01 per maand (appartement en parkeerplaatsen)
- Houten kozijnen met grotendeels dubbele beglazing
- Oplevering in overleg
Kenmerken
Overdracht
- Aangeboden sinds
- Aanvaarding
- In overleg
- Vraagprijs
- € 300.000 kosten koper
- Vraagprijs per m²
- € 2.804
- Status
- Beschikbaar
- Bijdrage VvE
- € 263,01 per maand
Bouw
- Soort appartement
- Maisonnette (open portiek)
- Soort bouw
- Bestaande bouw
- Bouwjaar
- 1975
- Soort dak
- Plat dak bedekt met bitumineuze dakbedekking
Oppervlakten en inhoud
- Gebruiksoppervlakten
- Wonen
- 107 m²
- Gebouwgebonden buitenruimte
- 21 m²
- Externe bergruimte
- 36 m²
- Inhoud
- 352 m³
Indeling
- Aantal kamers
- 4 kamers (3 slaapkamers)
- Aantal badkamers
- 1 badkamer en 1 apart toilet
- Badkamervoorzieningen
- Douche, toilet, wastafel, en wastafelmeubel
- Aantal woonlagen
- 2 woonlagen
- Voorzieningen
- Buitenzonwering en TV kabel
- Gelegen op
- 1e woonlaag
Energie
- Energielabel
- D
- Isolatie
- Dubbel glas
- Verwarming
- Blokverwarming
- Warm water
- Elektrische boiler (huur)
Kadastrale gegevens
- HOOGVLIET A 3461
- Kadastrale kaart
- Eigendomssituatie
- Volle eigendom
- HOOGVLIET A 3461
- Kadastrale kaart
- Eigendomssituatie
- Volle eigendom
- HOOGVLIET A 3461
- Kadastrale kaart
- Eigendomssituatie
- Volle eigendom
Buitenruimte
- Ligging
- In woonwijk
- Tuin
- Zonneterras
- Zonneterras
- 20 m² (4,02 meter diep en 4,93 meter breed)
- Ligging tuin
- Gelegen op het zuidwesten
- Balkon/dakterras
- Dakterras aanwezig
Bergruimte
- Schuur/berging
- Inpandig
- Voorzieningen
- Elektra
Garage
- Soort garage
- Parkeerplaats
Parkeergelegenheid
- Soort parkeergelegenheid
- Parkeergarage
VvE checklist
- Inschrijving KvK
- Ja
- Jaarlijkse vergadering
- Ja
- Periodieke bijdrage
- Ja (€ 263,01 per maand)
- Reservefonds aanwezig
- Ja
- Onderhoudsplan
- Ja
- Opstalverzekering
- Ja
Foto's 37
Plattegronden 4
© 2001-2025 funda








































