
Klaas Ooijevaarhof 131624 PP Hoorn (NH)Venelaankwartier - Buurt 11 00
€ 604.000 v.o.n.
Omschrijving
Nieuwbouwplan Holenkwartier fase 2B te Hoorn
Klaas Ooijevaarhof 13
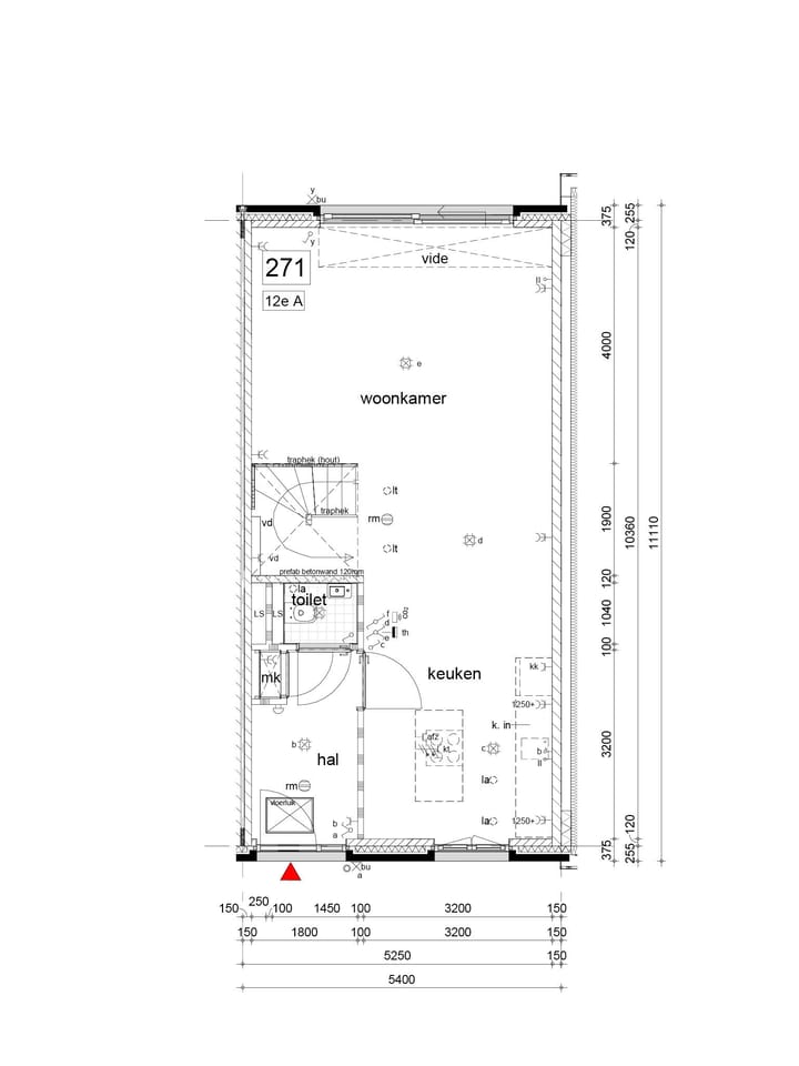
Bouwnummer 271
Robuuste binnenstadswoning met eigen parkeerplaats in belendend appartementengebouw.
Indeling
Begane grond: Ruime hal, toilet met wandcloset, (eet)keuken met mogelijkheid van kookeiland, riante zithoek met vide en grote schuifpui naar de achtertuin met berging.
Open trap naar de verdiepingen.
Eerste verdieping: 2 slaapkamers, waarvan 1 met vide naar de woonkamer, badkamer met douche, wastafel en mogelijkheid voor een ligbad, afzonderlijke 2e toilet.
Tweede verdieping: 2 slaapkamers en technische ruimte en hobbykamer met deur naar het balkon.
Situering binnen de “Hoornse ring” nabij supermarkt, uitvalswegen en sportpark.
Verwarming en warmwater voorziening via een (aard)warmtenet.
Diverse opties mogelijk, er is reeds gekozen om de vide te laten vervallen en de woning te voorzien van een trapkast en buitenkraan.
De bouw start in Q1 2026, verwachte oplevering is Q3 2027.
Koop/aanneemsom van EUR 604.000,--
Schrijf je nu in via de projectwebsite
Kenmerken
Overdracht
- Aangeboden sinds
- Aanvaarding
- In overleg
- Vraagprijs
- € 604.000 vrij op naam
- Vraagprijs per m²
- € 4.081
- Status
- Beschikbaar
Bouw
- Bouwjaar
- Na 2020
- Soort woonhuis
- Eengezinswoning, tussenwoning
- Soort bouw
- Nieuwbouw
- Soort dak
- Plat dak
- Keurmerken
- Woningborg Garantiecertificaat
Oppervlakten en inhoud
- Gebruiksoppervlakten
- Wonen
- 148 m²
- Inhoud
- 538 m³
Indeling
- Aantal kamers
- 6 kamers (3 slaapkamers)
- Aantal badkamers
- 1 badkamer en 2 aparte toiletten
- Badkamervoorzieningen
- Douche en wastafel
- Aantal woonlagen
- 2 woonlagen en een zolder
- Voorzieningen
- Balansventilatie en glasvezelkabel
Energie
- Energielabel
- A+++
- Isolatie
- Volledig geïsoleerd
- Verwarming
- Stadsverwarming en gehele vloerverwarming
- Warm water
- Elektrische boiler (huur) en stadsverwarming
Buitenruimte
- Ligging
- In woonwijk
- Tuin
- Achtertuin
- Achtertuin
- 48 m² (8,50 meter diep en 5,60 meter breed)
- Ligging tuin
- Gelegen op het zuidwesten
- Balkon/dakterras
- Dakterras aanwezig
Bergruimte
- Schuur/berging
- Vrijstaande houten berging
- Voorzieningen
- Elektra
- Isolatie
- Geen isolatie
Parkeergelegenheid
- Soort parkeergelegenheid
- Parkeergarage
Foto's 13
© 2001-2026 funda












