Dit huis op Funda: https://www.funda.nl/detail/koop/horst/appartement-patronaat-7/43278433/

Patronaat 75961 TD HorstHorst-Centrum
€ 245.000 k.k.
Omschrijving
Een ideaal appartement voor iedereen die comfortabel wil wonen, op korte loopafstand van alle voorzieningen. Dit lichte en verzorgde appartement op de eerste verdieping biedt een praktische indeling, moderne afwerking en veel daglichtinval. Door de gunstige ligging ben je binnen enkele minuten bij winkels, cafés en restaurants.
Het appartement combineert comfort met gemak: een open woonkamer met aangrenzende keuken, een fijne slaapkamer, een nette badkamer en een balkon waar je in alle rust van de buitenlucht kunt genieten. Bovendien beschikt het over een aparte berging en een gezamenlijk dakterras, waardoor extra ruimte is voor opslag én ontspanning. Een ideale plek voor iedereen die op zoek is naar een fijn thuis in het hart van Horst.
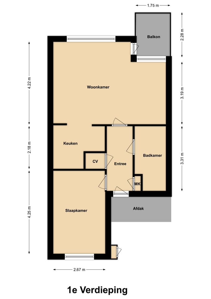
Via de gezamenlijke entree, voorzien van een centrale intercom en brievenbussen, bereik je het appartement op de eerste verdieping met zowel het trappenhuis als de lift. Binnenkomst in de hal geeft toegang tot de meterkast, de cv-ketel, en de overige vertrekken van het appartement. De indeling is praktisch en overzichtelijk, waardoor elke ruimte optimaal wordt benut. De doorlopende laminaatvloer en het strakke stucwerk op wanden en plafond geven het geheel een moderne en strakke uitstraling.
Woonkamer & keuken
De lichte, open woonkamer vormt samen met de keuken het centrale leefgedeelte van het appartement. Dankzij de grote raampartijen stroomt er volop natuurlijk daglicht binnen. Er is voldoende plek voor een comfortabele zithoek en een eettafel.
De open keuken is praktisch ingericht en uitgerust met een vaatwasser, een 4-pits gasfornuis met afzuigkap en voldoende opbergruimte. Daarnaast is er ruimschoots plek voor een grote koelkast. De keukenwand is deels betegeld, wat zorgt voor een onderhoudsvriendelijk en verzorgd geheel.
Vanuit de woonkamer is het balkon bereikbaar, waar een klein zitje geplaatst kan worden om te genieten van de buitenlucht, een kopje koffie of een ontbijtje in de zomermaanden.
Slaapkamer
Het appartement beschikt over één slaapkamer, met voldoende ruimte voor een tweepersoonsbed en een garderobekast voor het opbergen van kleding.
Badkamer
De badkamer is geheel betegeld in een neutrale kleurstelling en beschikt over een ligbad met douche, een staand toilet en een designradiator. Ook is de ruimte voorzien van witgoedaansluitingen voor de wasmachine en droger.
Berging & dakterras
Het appartement beschikt over een separate berging op de eerste verdieping, voorzien van elektra, ideaal voor opslag of het stallen van fietsen. Ook is er een gezamenlijk dakterras op de eerste verdieping, een fijne plek om buiten te zitten en te genieten van de frisse lucht.
Horst
Horst is een levendig dorp waar je je al snel thuis voelt – een plek met een dorps karakter én alle voorzieningen binnen handbereik. Gelegen in de gemeente Horst aan de Maas is het met circa 13.500 inwoners het grootste kerkdorp van de regio.
Het dorp beschikt over meerdere basisscholen, een school voor voortgezet en speciaal onderwijs, diverse kinderopvanglocaties en een bibliotheek. Ook voor de dagelijkse boodschappen en het winkelaanbod hoef je het dorp niet uit: je vindt er verschillende supermarkten, boetieks, drogisterijen en verswinkels.
Op het gebied van ontspanning en vrije tijd biedt Horst volop mogelijkheden. Er is een overdekt zwembad, een actief verenigingsleven, een cultureel centrum ('t Gasthoês) en een ruim aanbod aan sportvoorzieningen, waaronder voetbalvelden, tennisbanen, fitnesscentra en wandelroutes. Voor een avondje uit zijn er gezellige cafés, terrassen en restaurants verspreid door het dorp.
Wat Horst ook zo aantrekkelijk maakt, is de uitstekende bereikbaarheid. In het nabijgelegen Sevenum, op circa 3,5 kilometer afstand, bevindt zich het NS-station Horst-Sevenum. Vanaf dit station reis je rechtstreeks naar onder andere Venlo, Deurne en Eindhoven. Daarnaast ben je met de auto binnen enkele minuten op de snelwegen A73 en A67, wat reizen naar werk, studie of familie eenvoudig maakt.
Bijzonderheden
• Energielabel: C (na uitbrengen energielabel label zijn er nog diverse energie verbeterende maatregelen genomen)
• Kozijnen en beglazing: kunststof/ hardhouten kozijnen met HR++ glas en triple glas
• Isolatie: muur- en dakisolatie aanwezig
• Lift: aanwezig
• Centrale intercom: aanwezig
• Dakterras: gezamenlijk dakterras op de eerste verdieping
• VvE-bijdrage: €170,07 per maand
• Kleine gezelschapsdieren: toegestaan
• Parkeren: mogelijk op de centrale parkeerplaats, vrijstelling blauwe zone
• Beschikbaarheid: per direct beschikbaar
Kortom, een heerlijke plek om te wonen en te leven!
Enthousiast geworden? We leiden je graag rond tijdens een bezichtiging.
Wil je graag een virtuele rondleiding?
Scan dan de QR-code in de brochure op pagina 3 met je mobiele telefoon of bezoek onze website of Funda om de woning op je eigen tempo te kunnen ontdekken
Kenmerken
Overdracht
- Aangeboden sinds
- Aanvaarding
- In overleg
- Vraagprijs
- € 245.000 kosten koper
- Vraagprijs per m²
- € 4.804
- Status
- Beschikbaar
Bouw
- Soort appartement
- Portiekflat (appartement)
- Soort bouw
- Bestaande bouw
- Bouwjaar
- 1986
Oppervlakten en inhoud
- Gebruiksoppervlakten
- Wonen
- 51 m²
- Gebouwgebonden buitenruimte
- 6 m²
- Externe bergruimte
- 5 m²
- Inhoud
- 150 m³
Indeling
- Aantal kamers
- 3 kamers (1 slaapkamer)
- Aantal badkamers
- 1 badkamer
- Badkamervoorzieningen
- Ligbad en toilet
- Aantal woonlagen
- 1 woonlaag
- Voorzieningen
- Lift, mechanische ventilatie, en TV kabel
- Gelegen op
- 1e woonlaag
Energie
- Energielabel
- C
- Isolatie
- Dakisolatie en dubbel glas
- Verwarming
- Cv-ketel
- Warm water
- Cv-ketel
- Cv-ketel
- Gas gestookt combiketel, eigendom
Kadastrale gegevens
- HORST D 5426
- Kadastrale kaart
- Eigendomssituatie
- Volle eigendom
Buitenruimte
- Ligging
- Aan rustige weg en in centrum
- Balkon/dakterras
- Balkon aanwezig
Parkeergelegenheid
- Soort parkeergelegenheid
- Parkeervergunningen
VvE checklist
- Inschrijving KvK
- Nee
- Jaarlijkse vergadering
- Nee
- Periodieke bijdrage
- Nee
- Reservefonds aanwezig
- Nee
- Onderhoudsplan
- Nee
- Opstalverzekering
- Nee
Foto's 29
Plattegronden 2
© 2001-2025 funda






























