Dit huis op Funda: https://www.funda.nl/detail/koop/hummelo/huis-de-zuylenkamp-38/43937195/

Omschrijving
Op een mooie en rustige plek in het geliefde Hummelo staat deze royale hoekwoning – perfect voor gezinnen die op zoek zijn naar ruimte en potentie. Met vier slaapkamers, twee badkamers, een woonoppervlakte van maar liefst 130 m² en een grote, vrij gelegen tuin is hier aan leefruimte geen gebrek. De woning is netjes onderhouden maar verdient wat modernisering. Met een beetje aandacht en twee rechterhanden maak je hier in no-time een comfortabel, eigentijds thuis van.
De woning is gebouwd in 1985 en staat op een perceel van 250 m². De tuin is gunstig gelegen op het oosten en grenst aan een hofje.
Je woont hier aan een kindvriendelijke en rustige straat, centraal in het dorp. Alle belangrijke voorzieningen – zoals een basisschool, kinderopvang, supermarkt en horecagelegenheden – bevinden zich op korte afstand. Hummelo ligt midden in het groen, tussen Doetinchem en het sfeervolle Doesburg, en wordt omringd door prachtige natuur: bossen, landgoederen, rivierduinen en de Oude IJssel vormen samen een uniek landschap. Ideaal voor wie houdt van wandelen, fietsen en buiten leven. Ook Arnhem en Zutphen zijn goed en snel bereikbaar.
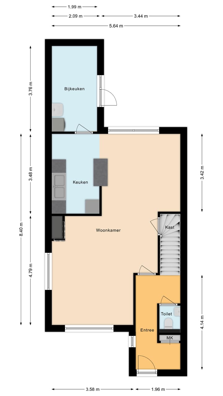
Indeling van de woning:
Begane grond
Op de begane grond vind je hal met entree, toiletruime met wandcloset en fonteintje, woonkamer en halfopen keuken. De keuken is eenvoudig en niet voorzien van inbouwapparatuur.
1e verdieping
Op de eerste verdieping zijn er 3 slaapkamers, allemaal ruim bemeten. Je zal ook de eerste van de 2 badkamers hier vinden, uitgerust met een inloopdouche, dubbele wastafel en toilet.
2e verdieping
Op de bovenste verdieping vind je nog 1 extra slaapkamer. Deze verdieping herbergt ook de tweede badkamer, voorzien van een douche en wastafel. Ideaal voor een tiener die wat meer privacy wil, of als logeerkamer!
Bijzonderheden over deze woning:
- Het huis heeft maar liefst 4 slaapkamers.
- De tuin ligt op het oosten
- De woning heeft energielabel C.
- Woonoppervlakte ca. 130 m².
- Projectnotaris van toepassing.
- Er worden aanvullende clausules in de koopovereenkomst opgenomen
Kenmerken
Overdracht
- Laatste vraagprijs
- € 325.000 kosten koper
- Vraagprijs per m²
- € 2.390
- Status
- Verkocht
Bouw
- Soort woonhuis
- Eengezinswoning, hoekwoning
- Soort bouw
- Bestaande bouw
- Bouwjaar
- 1985
- Soort dak
- Zadeldak bedekt met pannen
Oppervlakten en inhoud
- Gebruiksoppervlakten
- Wonen
- 136 m²
- Perceel
- 250 m²
- Inhoud
- 482 m³
Indeling
- Aantal kamers
- 5 kamers (4 slaapkamers)
- Aantal badkamers
- 2 badkamers en 1 apart toilet
- Badkamervoorzieningen
- Dubbele wastafel, inloopdouche, toilet, douche, en wastafel
- Aantal woonlagen
- 2 woonlagen en een zolder
- Voorzieningen
- Dakraam en schuifpui
Energie
- Energielabel
- Isolatie
- Grotendeels dubbelglas
- Verwarming
- Cv-ketel
- Warm water
- Cv-ketel
- Cv-ketel
- Hr combi (gas gestookt combiketel, eigendom)
Kadastrale gegevens
- HUMMELO D 2379
- Kadastrale kaart
- Oppervlakte
- 250 m²
- Eigendomssituatie
- Volle eigendom
Buitenruimte
- Ligging
- Aan rustige weg en in woonwijk
- Tuin
- Achtertuin, voortuin en zijtuin
- Achtertuin
- 90 m² (10,00 meter diep en 9,00 meter breed)
- Ligging tuin
- Gelegen op het oosten bereikbaar via achterom
Bergruimte
- Schuur/berging
- Aangebouwde stenen berging
Parkeergelegenheid
- Soort parkeergelegenheid
- Openbaar parkeren
Foto's 34
© 2001-2026 funda

































