Dit huis op Funda: https://www.funda.nl/detail/koop/hunsel/huis-elzenstraat-3/89136864/

Omschrijving
Instapklare tweekapper met mogelijkheid voor kantoor-/werkruimte aan huis is binnenkort beschikbaar. Dit is echt een woning waar je zo in kunt trekken, WAUW! Deze woning staat in Hunsel aan de Elzenstraat 3 te stralen. Nieuwsgierig? Lees dan gauw verder.
Direct bij binnenkomst ademt deze woning sfeer en allure. Beneden is een gezellig eet-/en woonkamer met massief houten plankenvloer en strak gestukadoorde wanden en plafonds. De LUXE keuken is in 2012 geplaatst en voorzien van diverse inbouwapparatuur. Er is een modern toilet met fonteintje, praktische trappenkast met toegankelijke kruipruimte. Rondom is de tuin onderhoudsvriendelijk aangelegd en zijn er diverse borders met aanplant en een fenomenale terrasoverkapping. Op de oprit passen makkelijk twee luxe wagens. De garage is ideaal voor de hobbyist of doe-het-zelvers.. Achter de garage is nog een aparte (geïsoleerde) werkruimte die een eigen airco heeft om te verkoelen en verwarmen in de koudere dagen. Heb jij een eigen bedrijf of plek nodig?! Deze woning heeft het in ieder geval.
De eerste verdieping is middels de fraai gerenoveerde trap te bereiken. Aan de overloop ligt de LUXE badkamer (2017) welke is voorzien van een grote inloop(regen)douche, strak wandmeubel met spiegelwand en designradiator. Apart is er een wasruimte met 2e toilet aan het eind van de gang gelegen. Verder zijn er drie ruime slaapvertrekken, waarvan één kamer een grote schuifkastenwand. De slaapvertrekken hebben allemaal strak gestukadoorde wanden en plafonds en er ligt een hoogwaardige laminaatvloer met V-groef. De masterbedroom is v.v. airco en in 2023 heeft de huidige bewoners aan de achterzijde rolluiken laten plaatsen. Middels vlizotrap is de grote bergzolder te bereiken, welke de mogelijkheid biedt om er een vaste trap naar te realiseren.
Qua verduurzaming zijn de afgelopen jaren de nodige investeringen gedaan waaronder het plaatsen van 12 zonnepanelen (2020) – kunststof kozijnen met isolerende beglazing – nageïsoleerd dak met PIR platen – Nefit HR cv-installatie (2011) en de gevels zijn nog nageïsoleerd. Het enige wat nieuwe bewoners nog kunnen doen is de vloer na laten isoleren.
Deze verrassende woning is instapklaar en moet je gewoon gezien hebben en als je eenmaal de sfeer hebt geproefd weet ik zeker dat je enthousiast wordt. Zien wij elkaar snel?! Wie weet wordt dit je nieuwe (t)huis.
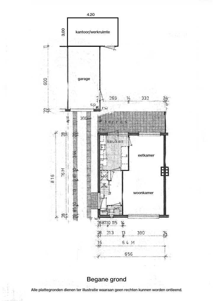
Indeling
Begane grond:
Hal/entree - gastentoilet met fonteintje - meterkast - trappenkast met toegang kruipruimte - gesloten keuken en doorzon eet-/woonkamer.
Eerste verdieping
Overloop met daaraan gelegen luxe badkamer - aparte wasruimte en 2e toilet en drie ruime slaapvertrekken.
Tweede verdieping
Vlizotrap naar ruimte (geïsoleerde) bergzolder met cv-opstelling.
Tuin
Onderhoudsvriendelijke aangelegd voor-/ en achtertuin met fenomenale terrasoverkapping - garage en aparte kantoor-/werkruimte - oprit voor min. twee personenauto's.
Bijzonderheden
- Witte hoogglans keuken met o.a. 4-pits gascomfort, RVS afzuigkap – combi magnetron – vaatwasser (2022) – kokend waterkraan - koelkast en voldoende opbergruimte;
- Vanuit de woonkamer heb je heerlijk uitzicht over de straat omdat de woning hoger ligt;
- De ondernemer of degene die een eigen werkplek aan huis wilt hoeft niet verder te zoeken;
- Moderne meterkast met slimme meters en glasvezel;
- LUXE badkamer met royale inloop(regen)douche en apart toilet op de verdieping;
- Huidige bewoners hebben de kozijnen recent laten afstellen;
- HR cv-installatie, merk Nefit, bouwjaar ca. 2011 en betreft eigendom;
- Definitief energielabel A, registratienummer 891558883en geldig tot 31-12-2030 waarbij er nog geen vloerverwarming aanwezig is;
- Zelden kom je woningen tegen waar je letterlijk zo in kunt gaan wonen!;
- Alle maten, plattegronden zijn indicatief waaraan verder geen rechten ontleend kunnen worden;
- Ter bescherming van de belangen van zowel koper als verkoper, wordt uitdrukkelijk gesteld dat een koopovereenkomst met betrekking tot deze onroerende zaak eerst dan tot stand komt nadat koper en verkoper de koopovereenkomst hebben getekend (“schriftelijkheidsvereiste”);
- De termijn die wordt opgenomen voor eventuele (overeengekomen) ontbindende voorwaarden (financiering) is in de regel 6 weken na het sluiten van mondelinge overeenkomst;
- De waarborgsom/bankgarantie is 10% van de koopsom. De koper dient deze 2 weken ná het vervallen van de ontbindende voorwaarden bij de desbetreffende notaris te deponeren;
- Koper is te allen tijde gerechtigd voor eigen rekening een bouwkundige keuring te (laten) verrichten dan wel andere adviseurs te raadplegen teneinde een goed inzicht te verkrijgen over de staat van onderhoud.
Kenmerken
Overdracht
- Laatste vraagprijs
- € 350.000 kosten koper
- Vraagprijs per m²
- € 3.333
- Status
- Verkocht
Bouw
- Soort woonhuis
- Eengezinswoning, 2-onder-1-kapwoning
- Soort bouw
- Bestaande bouw
- Bouwjaar
- 1972
- Soort dak
- Zadeldak bedekt met metaal en pannen
- Keurmerken
- Energie Prestatie Advies
Oppervlakten en inhoud
- Gebruiksoppervlakten
- Wonen
- 105 m²
- Overige inpandige ruimte
- 40 m²
- Gebouwgebonden buitenruimte
- 24 m²
- Externe bergruimte
- 18 m²
- Perceel
- 248 m²
- Inhoud
- 449 m³
Indeling
- Aantal kamers
- 4 kamers (3 slaapkamers)
- Aantal badkamers
- 1 badkamer en 1 apart toilet
- Badkamervoorzieningen
- Inloopdouche, toilet, en wastafelmeubel
- Aantal woonlagen
- 2 woonlagen en een zolder
- Voorzieningen
- Airconditioning, glasvezelkabel, mechanische ventilatie, rolluiken, en zonnepanelen
Energie
- Energielabel
- A
- Isolatie
- Dakisolatie, dubbel glas en muurisolatie
- Verwarming
- Cv-ketel
- Warm water
- Cv-ketel
- Cv-ketel
- Nefit HR (gas gestookt combiketel uit 2011, eigendom)
Kadastrale gegevens
- HUNSEL B 2309
- Kadastrale kaart
- Oppervlakte
- 248 m²
- Eigendomssituatie
- Volle eigendom
Garage
- Soort garage
- Aangebouwde stenen garage
- Capaciteit
- 1 auto
- Voorzieningen
- Elektra
- Isolatie
- Dakisolatie
Parkeergelegenheid
- Soort parkeergelegenheid
- Op eigen terrein
Bedrijfsruimte
- Praktijkruimte
- 12 m², aangebouwd
Foto's 39
© 2001-2025 funda






































