
Omschrijving
Dit is hem!! Dit heerlijke ruime appartement van 92m2, gelegen op de tweede etage, verkeert in een uitzonderlijke staat!!
Dit prachtige appartement met ruime loggia, is gebouwd met veel glas, waardoor het een fraaie lichte uitstraling heeft. Het uitzicht over de daken van Zenderpark, het lichte interieur met moderne open keuken en fraaie vloer in licht eiken motief dragen bij een de serene rust die dit appartement in zich heeft. Ook de badkamer en toiletruimte zijn recent geheel vernieuwd en ademen ingetogen luxe. Het afwerkingsniveau is door de gehele woning op hetzelfde hoge niveau, met strakke wandafwerking en het betere schilderwerk.
De wijk Zenderpark wordt gekenmerkt door een grote variatie aan architectuur en duurzame bouw. Deze moderne wijk is gebouwd in de periode van eind jaren 90 tot begin 2000. Bij het ontwerp van deze wijk is er goed nagedacht over faciliteiten als supermarkt, kinderdagverblijf, basisscholen, openbaarvervoerbedrijf en ontsluiting naar de A2.
Kortom: een appartement dat absoluut de moeite waard is om te bezichtigen. Overtuig jezelf van de kwaliteiten en de toegankelijkheid.
Enkele kenmerken op een rijtje:
- Modern complex met automatische deuren
- Lift
- Uitstekende afwerking
- Nieuwe badkamer en toilet
- Moderne keuken met inbouwapparatuur
- gelegen op de tweede etage - dus fraai uitzicht
- Gezonde en actieve VVE
Bekijk one woningpresentatie u op: boedapeslaan117.nl
Of bekijk de woning nu Ive op:
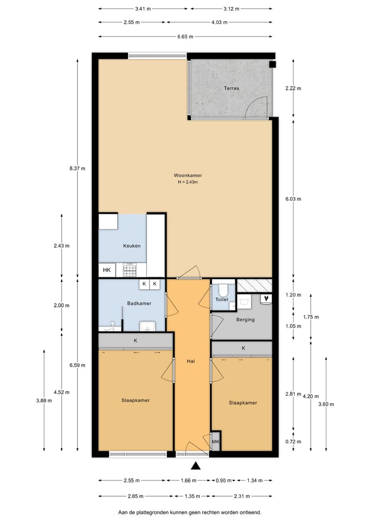
Indeling:
Vanaf de galerij wordt langs de voordeur het appartement binnengetreden. De voordeur komt uit op de centrale gang, waar achterenvolgens toegang is tot: de meterkast, slaapkamer 1, slaapkamer 2, toiletruimte, badkamer, technische ruimte, woonkamer met open keuken en toegang tot de loggia.
Kenmerken
Overdracht
- Servicekosten
- € 217 per maand
- Laatste vraagprijs
- € 400.000 kosten koper
- Vraagprijs per m²
- € 4.348
- Status
- Verkocht
- Bijdrage VvE
- € 217,00 per maand
Bouw
- Soort appartement
- Bovenwoning (appartement)
- Soort bouw
- Bestaande bouw
- Bouwjaar
- 1998
- Soort dak
- Plat dak
Oppervlakten en inhoud
- Gebruiksoppervlakten
- Wonen
- 92 m²
- Gebouwgebonden buitenruimte
- 7 m²
- Externe bergruimte
- 6 m²
- Inhoud
- 299 m³
Indeling
- Aantal kamers
- 3 kamers (2 slaapkamers)
- Aantal badkamers
- 1 badkamer en 1 apart toilet
- Aantal woonlagen
- 1 woonlaag
- Voorzieningen
- Glasvezelkabel, lift, mechanische ventilatie, en TV kabel
Energie
- Energielabel
- A
- Isolatie
- Dakisolatie, dubbel glas, muurisolatie, vloerisolatie en volledig geïsoleerd
- Verwarming
- Cv-ketel
- Warm water
- Cv-ketel
- Cv-ketel
- Gas gestookt combiketel, eigendom
Kadastrale gegevens
- IJSSELSTEIN B 1408
- Kadastrale kaart
- Eigendomssituatie
- Volle eigendom
- IJSSELSTEIN B 1408
- Kadastrale kaart
- Eigendomssituatie
- Volle eigendom
Buitenruimte
- Ligging
- In woonwijk
- Balkon/dakterras
- Balkon aanwezig
Bergruimte
- Schuur/berging
- Box
Parkeergelegenheid
- Soort parkeergelegenheid
- Openbaar parkeren
VvE checklist
- Inschrijving KvK
- Ja
- Jaarlijkse vergadering
- Ja
- Periodieke bijdrage
- Ja (€ 217,00 per maand)
- Reservefonds aanwezig
- Ja
- Onderhoudsplan
- Ja
- Opstalverzekering
- Ja
Foto's 47
© 2001-2025 funda














































