Dit huis op Funda: https://www.funda.nl/detail/koop/katwijk-zh/huis-asserstraat-28/89676855/

Asserstraat 282221 LH Katwijk (ZH)Rijnsoever-Noord
€ 895.000 k.k.
Omschrijving
Comfort en klasse vind je in dit herenhuis met een woonoppervlakte van 201 m2, zonnige tuin, oprit voor 2 auto’s, garage, 5 slaapkamers, 2 badkamers, woonkeuken, etc. Volledig geïsoleerd, geheel voorzien van dubbel glas, gedeeltelijk voorzien van rolluiken en 2 airco’s! Energielabel A. Bouwjaar 2011. Populaire en uitermate kindvriendelijke ligging in een ruim opgezette woonwijk met diverse voorzieningen (supermarkt, school en sportvelden) in de directe nabijheid. Kenmerkend voor dit herenhuis is de verrassende indeling welke is verdeeld over 4 woonlagen. Een modern wooncomfort, een imposante woonkamer met hoog plafond, openslaande deuren naar de zonnige tuin en een moderne woonkeuken met kookeiland. Kortom een riant familiehuis.
De indeling is als volgt:
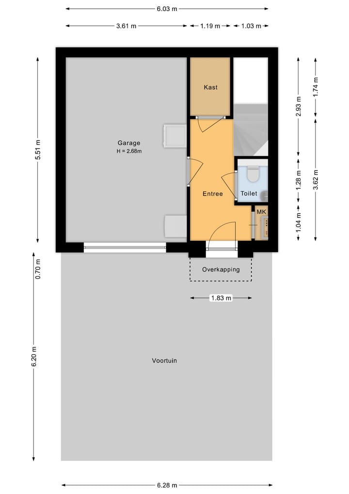
Begane grond: entree, hal, meterkast, garderobe, toiletruimte met toilet en fontein. Toegang tot inpandige garage met opbergkasten.
Eerste verdieping: Fraaie woonkamer met een imposante plafondhoogte van ca. 4,15 meter met inbouwspots, openslaande deuren naar de achtertuin op het zuiden. Grote raampartijen voor optimaal lichtinval met shutters die dienen als zonwering. Vanuit de woonkamer opgang naar de moderne woonkeuken met kookeiland voorzien van inbouwspots en diverse inbouwapparatuur o.a. koffiemachine, heteluchtoven, combi-oven (allen Miele), vaatwasser, koelkast, vriezer, 5-pits gas kookplaat, rvs afzuigschouw en heetwater kraan van Grohe. De woonkamer en woonkeuken zijn voorzien van Frans eiken vloerdelen.
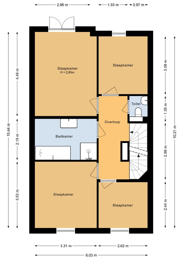
Tweede verdieping: overloop, toiletruimte met toilet en fontein. Moderne badkamer met ligbad, aparte douche, wastafelmeubel, design radiator en mechanische ventilatie. Master bedroom met airco. 2e slaapkamer, 3e en 4e slaapkamer met garderobekasten. Deze verdieping is voorzien van Frans eiken vloerdelen en elektrische rolluiken.
Derde verdieping: overloop, 2e badkamer met douche, wastafel en 3e toilet.
Aparte wasruimte met aansluitingen voor de wasapparatuur en cv-combi-installatie (2012). Royale 5e slaapkamer (voorheen 2) met airco, elektrische rolluiken en Velux dakvenster. Deze verdieping is tevens voorzien van Frans eiken vloerdelen.
Bijzonderheden:
• Representatief herenhuis met dubbele oprit en garage;
• Verrassend ingedeeld herenhuis verdeeld over 4 woonlagen;
• Thans 5 slaapkamers, 6e slaapkamer mogelijk;
• Achtertuin op het zuiden;
• Bouwjaar 2011 met ca. 201 m2 woonoppervlakte en 161 m2 perceel;
• Buitenschilderwerk 2024;
• Kindvriendelijke ligging nabij scholen, winkels en sportaccommodaties;
• Nieuwe gewilde woonwijk, nabij strand en diverse uitvalswegen;
Energielabel A.
Oplevering: in overleg.
Vraagprijs: € 895.000,- kosten koper.
Disclaimer:
Deze informatie is met de nodige zorgvuldigheid samengesteld. Er wordt echter geen enkele aansprakelijkheid aanvaard voor enige onvolledigheid, onjuistheid of anderszins, dan wel de gevolgen daarvan. Alle opgegeven maten en oppervlakten zijn indicatief.
Kenmerken
Overdracht
- Aangeboden sinds
- Aanvaarding
- In overleg
- Vraagprijs
- € 895.000 kosten koper
- Vraagprijs per m²
- € 4.453
- Status
- Beschikbaar
Bouw
- Soort woonhuis
- Eengezinswoning, tussenwoning (split-level woning)
- Soort bouw
- Bestaande bouw
- Bouwjaar
- 2011
- Soort dak
- Samengesteld dak bedekt met bitumineuze dakbedekking en pannen
Oppervlakten en inhoud
- Gebruiksoppervlakten
- Wonen
- 201 m²
- Overige inpandige ruimte
- 20 m²
- Gebouwgebonden buitenruimte
- 35 m²
- Perceel
- 161 m²
- Inhoud
- 806 m³
Indeling
- Aantal kamers
- 8 kamers (5 slaapkamers)
- Aantal badkamers
- 2 badkamers en 2 aparte toiletten
- Badkamervoorzieningen
- 2 douches, ligbad, wastafelmeubel, dubbele wastafel, en toilet
- Aantal woonlagen
- 4 woonlagen
- Voorzieningen
- Airconditioning, dakraam, frans balkon, glasvezelkabel, mechanische ventilatie, natuurlijke ventilatie, rolluiken, en TV kabel
Energie
- Energielabel
- Isolatie
- Volledig geïsoleerd
- Verwarming
- Cv-ketel
- Warm water
- Cv-ketel
- Cv-ketel
- Prestige (gas gestookt combiketel uit 2012, eigendom)
Kadastrale gegevens
- KATWIJK C 4151
- Kadastrale kaart
- Oppervlakte
- 161 m²
- Eigendomssituatie
- Volle eigendom
Buitenruimte
- Balkon/dakterras
- Frans balkon aanwezig
- Ligging
- In woonwijk
- Tuin
- Achtertuin en voortuin
- Achtertuin
- 36 m² (5,97 meter diep en 6,02 meter breed)
- Ligging tuin
- Gelegen op het zuiden
Garage
- Soort garage
- Inpandig
- Capaciteit
- 1 auto
- Voorzieningen
- Elektra, verwarming en stromend water
Parkeergelegenheid
- Soort parkeergelegenheid
- Op eigen terrein
Foto's 44
© 2001-2026 funda











































