Dit huis op Funda: https://www.funda.nl/detail/koop/kerkrade/huis-annastraat-45/43910358/

Omschrijving
Een zeer goed onderhouden en degelijk gebouwde tussenwoning met lichte woonkamer, luxe inbouwkeuken, aangebouwde serre, 3 slaapkamers, vernieuwde badkamer, zolder en kelder.
Voorzien van een zonnige onderhoudsvriendelijke achtertuin (zuidwest) met betegeld terras en overkapping.
Gelegen in een rustige straat in de wijk Nulland, met prachtige natuurgebieden en de Duitse grens op loopafstand. Daarnaast is de woning nabij het centrum van Kerkrade gelegen waar alle essentiële voorzieningen zeer goed bereikbaar en toegankelijk zijn.
Bouwjaar: 1960
Onderhoud: Goed
Perceeloppervlakte: 138 m²
Woonoppervlakte: 99 m²
Overig inpandig: 23 m²
Gebouw gebonden buitenruimte: 15 m²
Inhoud circa: 431 m³
Aanvaarding: In overleg
Energielabel: A
Indeling
Kelder
Twee betegelde kelderruimtes, alwaar zich de wasmachineaansluiting zich bevindt.
Begane grond
Entree/ hal met meterkast.
Toiletruimte (wandcloset) met wastafel.
Lichte woonkamer met aansluitend eetkamer.
Vernieuwde semi-open keuken met inductiekookplaat, combi oven-magnetron, ingebouwde koelkast, vaatwasser en afzuigkap.
Aangebouwde serre met schuifpui naar de achtertuin.
Nette, onderhoudsvriendelijke achtertuin met betegeld terras en overkapping.
Separate buitenberging, voorzien van elektra en wateraansluiting.
Eerste verdieping
Overloop.
Twee aan de achterzijde gelegen slaapkamers.
Eén aan de voorzijde gelegen slaapkamer.
Gemoderniseerde badkamer met regendouche, wastafelmeubel en toilet (wandcloset).
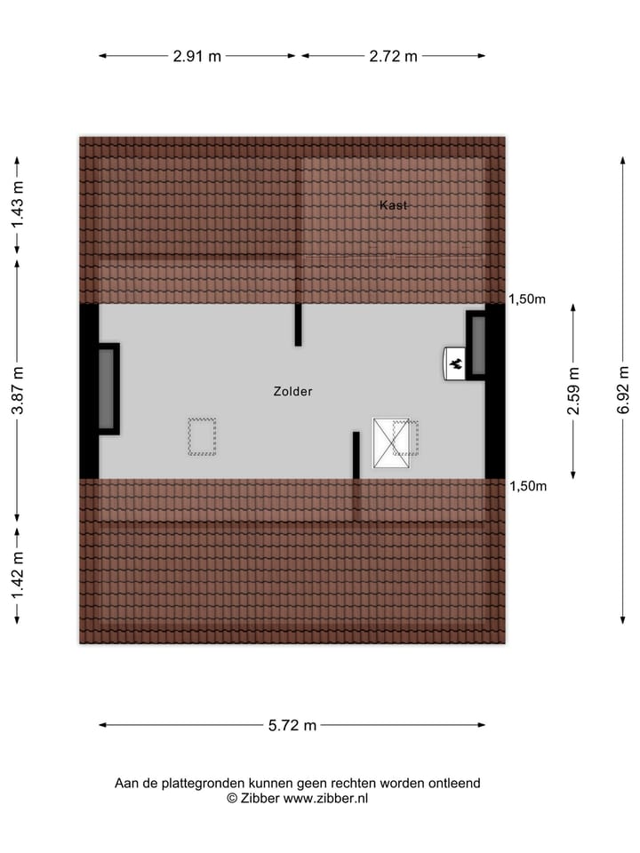
Zolder
Ruime zolderruimte, bereikbaar middels vlizotrap.
De cv-ketel is in deze ruimte gesitueerd.
Wetenswaardigheden
De woning is voorzien van houten kozijnen met dubbele beglazing en HR++ beglazing.
De woning is voorzien van spouwisolatie en dakisolatie.
De woning beschikt over 10 zonnepanelen, eigendom.
De woning beschikt over zowel handmatige als elektrische rolluiken.
ONZE TIP
Aankopen? Schakel je eigen NVM-aankoopmakelaar in! Jouw NVM-aankoopmakelaar komt op voor jouw belang en bespaart je veel tijd, geld en zorgen. Adressen van collega NVM-aankoopmakelaars vind je op Funda.
De waarborgsom/bankgarantie is 10% van de koopsom. De koper dient deze binnen 2 weken nadat het financieringsvoorbehoud is verlopen bij de desbetreffende notaris te deponeren.
Ter bescherming van de belangen van zowel koper als ook verkoper wordt uitdrukkelijk gesteld dat een koopovereenkomst met betrekking tot deze onroerende zaak eerst dan tot stand komt nadat koper en verkoper de koopovereenkomst hebben getekend (schriftelijkheids vereiste).
Indien cv-ketel en/of warmwatervoorziening een huurtoestel is, dient koper de huurovereenkomst over te nemen.
Alle door ons kantoor verstrekte informatie omtrent onroerende zaken, moet beschouwd worden als een uitnodiging om in onderhandeling te treden, en is geheel vrijblijvend! Alle vermelde maten en afmetingen zijn slechts bij benadering. Aan deze beperkte info kunnen geen rechten worden ontleend. Indien in enige documentatie of op enige website informatie staat die niet overeen komt met de werkelijkheid, dan geldt de feitelijke situatie waarin de woning zich bevindt, zoals koper deze tijdens de bezichtiging heeft kunnen waarnemen, en wordt de woning in deze feitelijke situatie/staat verkocht.
Een (eventueel) bijgevoegde plattegrond dient uitsluitend als globale indicatie/visualisatie. Hieraan kunnen uitdrukkelijk geen rechten worden ontleend.
Kenmerken
Overdracht
- Laatste vraagprijs
- € 249.000 kosten koper
- Vraagprijs per m²
- € 2.515
- Status
- Verkocht
Bouw
- Soort woonhuis
- Eengezinswoning, tussenwoning
- Soort bouw
- Bestaande bouw
- Bouwjaar
- 1960
- Soort dak
- Zadeldak bedekt met pannen
Oppervlakten en inhoud
- Gebruiksoppervlakten
- Wonen
- 99 m²
- Overige inpandige ruimte
- 23 m²
- Gebouwgebonden buitenruimte
- 15 m²
- Perceel
- 138 m²
- Inhoud
- 431 m³
Indeling
- Aantal kamers
- 5 kamers (3 slaapkamers)
- Aantal badkamers
- 1 badkamer en 1 apart toilet
- Badkamervoorzieningen
- Inloopdouche, toilet, wastafel, en wastafelmeubel
- Aantal woonlagen
- 2 woonlagen, een zolder, en een kelder
- Voorzieningen
- Rolluiken, schuifpui, en zonnepanelen
Energie
- Energielabel
- Isolatie
- Dakisolatie, dubbel glas en muurisolatie
- Verwarming
- Cv-ketel
- Warm water
- Cv-ketel
- Cv-ketel
- Gas gestookt combiketel uit 2015, eigendom
Kadastrale gegevens
- KERKRADE E 4369
- Kadastrale kaart
- Oppervlakte
- 138 m²
- Eigendomssituatie
- Volle eigendom
Buitenruimte
- Ligging
- Aan bosrand, aan drukke weg en in woonwijk
- Tuin
- Achtertuin en voortuin
Bergruimte
- Schuur/berging
- Aangebouwde stenen berging
- Voorzieningen
- Elektra en stromend water
Parkeergelegenheid
- Soort parkeergelegenheid
- Openbaar parkeren
Foto's 32
© 2001-2026 funda































