
Zutphenseweg 447382 AM Klarenbeek (Gem. Voorst)Klarenbeek Buitengebied
Verkocht onder voorbehoud
€ 1.155.000 k.k.
BlikvangerVolledig gerenoveerde hallenhuisboerderij met bakhuis op 1,3 ha grond
Omschrijving
Zutphenseweg 44 – Klarenbeek
Volledig gerenoveerde hallenhuisboerderij met inpandig bereikbaar bakhuis, op ruim 1,3 hectare eigen grond
Aan de rand van Klarenbeek, tussen Apeldoorn en Zutphen en op loopafstand van natuur- en recreatiegebied Bussloo, ligt deze bijzonder charmante hallenhuisboerderij uit 1937 met een inpandig bereikbaar bakhuis. Een unieke plek waar historie, ruimte en comfort samenkomen.
De boerderij werd in 2013 (woonhuis) en 2015 (bakhuis) volledig gerenoveerd, met behoud van de karakteristieke gebintconstructie en oorspronkelijke details, zoals de prachtige sfeervolle luiken aan de buitenzijde. Tijdens deze zorgvuldige verbouwing zijn alle daken vernieuwd, isolerende beglazing aangebracht, vloeren en muren geïsoleerd, en zijn alle leidingen, elektra en installaties volledig vernieuwd, plus 16 zonnepanelen geplaatst. Het resultaat is een woning die de sfeer van toen combineert met het wooncomfort, de duurzaamheid en techniek van nu. De boerderij beschikt over een keurig energielabel B.
Met een woonoppervlakte van 252 m², een inhoud van 1.093 m³ en een perceel van maar liefst 13.285 m² biedt deze boerderij een uitzonderlijke leefruimte en talloze gebruiksmogelijkheden. Of u nu droomt van landelijk wonen met alle gemakken van nu, een gastenverblijf of mantelzorgwoning zoekt, of als paardenliefhebber de ruimte wilt om uw passie aan huis te beleven – Zutphenseweg 44 biedt het allemaal.
Hier woont u vrij en landelijk, met weids uitzicht over de eigen weilanden, terwijl de natuur van Bussloo op loopafstand ligt en de voorzieningen van Klarenbeek op slechts vijf minuten afstand. Een zeldzaam compleet geheel, waar authenticiteit, rust en comfort in perfecte harmonie samenkomen.
Begane grond
De stijlvolle entree met originele granito vloer en een prachtige houten trap met rode loper zet direct de toon voor de rest van de woning. Vanuit de hal zijn de verschillende vertrekken bereikbaar: een charmante ontvangstkamer, een werk- of slaapkamer met klassieke schouw, de kelder, een toilet, een badkamer met dubbele wastafel, ligbad en separate douche, en een aparte wasruimte.
Het hart van de woning is de voormalige deel, nu een indrukwekkende woonkamer met robuuste houten gebinten, hoge plafonds, sfeervolle houtkachel en openslaande deuren naar het terras. Grote ramen zorgen voor veel licht en bieden een prachtig uitzicht over de omliggende weilanden. De ruimte is voorzien van vloerverwarming, wat zorgt voor aangenaam comfort in elk seizoen.
De open keuken sluit naadloos aan op de woonkamer en is modern uitgevoerd, met een groot werkblad, hoogwaardige inbouwapparatuur en zelfs een hout gestookte (pizza) oven – ideaal voor de culinaire liefhebber. De authentieke stalramen geven het geheel een warme, landelijke uitstraling. Aansluitend bevindt zich een ruime bijkeuken met achterom.
Verdieping
De fraaie vide met zicht op de woonkamer beneden vormt een ware blikvanger en zorgt voor een bijzonder ruimtelijk karakter. Deze open ruimte leent zich uitstekend als tweede woonkamer, eetkamer of bibliotheek en verbindt de woonlagen op sfeervolle wijze.
De drie ruime slaapkamers op deze verdieping zijn zowel bereikbaar via de voormalige deel als via de trap in de hal bij de entree. Op de overloop bevindt zich bovendien een extra toilet. Verder is er een ruime bergzolder aanwezig.
Bakhuis
Via de hal bereikt u het zelfstandige bakhuis, dat in 2015 geheel is vernieuwd. Het beschikt over een gezellige woonkamer met open kap en zichtbare spanten, een slaapkamer, badkamer en een slaapzolder. Deze ruimte is ideaal als gastenverblijf, kantoorruimte of mantelzorgwoning.
Buiten
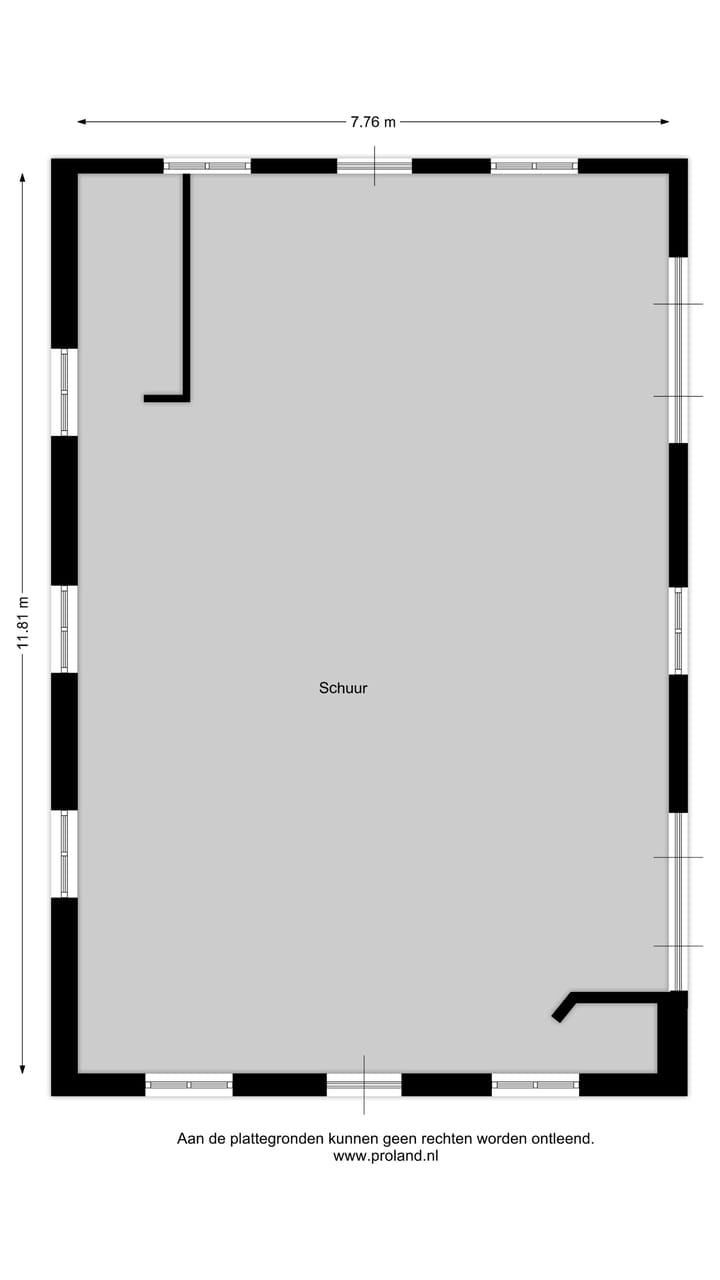
Rondom de woning ligt een fraai aangelegd en verzorgd erf met meerdere terrassen, volwassen bomen en volop privacy. De in 2018 gebouwde garage (6,5 × 5,2 m) met berging en vliering biedt ruimte voor meerdere auto’s en extra opslag. Daarnaast bevinden zich op het erf nog twee karakteristieke schuren van circa 11 × 7,75 m en 4,5 × 9 m met een overkapping, ideaal voor opslag, werkplaats of hobbymatig gebruik.
Het perceel van ruim 1,3 hectare bestaat uit weiland, een kleine fruitgaard en diverse erfbeplanting, en biedt talloze mogelijkheden voor tuinliefhebbers of paardenbezitters. De omgeving is zeer geschikt voor ruiters, met prachtige uitrijroutes direct vanaf huis.
Op slechts vijf minuten afstand ligt het dorpscentrum van Klarenbeek, met winkels, school en station. De stad Apeldoorn bereikt u in circa acht minuten, en ook de op- en afrit van de snelweg ligt op slechts vier minuten rijden.
Tot slot bevindt u zich op loopafstand van natuur- en recreatiegebied Bussloo, met volop mogelijkheden om te wandelen, fietsen, zwemmen of golfen – en zelfs een bezoek te brengen aan de Wellness Thermen Bussloo. Hier woont u midden in het groen, met rust, ruimte en recreatie binnen handbereik.
Kenmerken:
Bouwjaar: oorspronkelijk 1937
Volledige renovatie: inclusief verduurzaming woonhuis (2013) en bakhuis (2015)
Dakconstructie: vernieuwd, originele gebinten behouden
Installaties: elektra, gas- en waterleidingen volledig vernieuwd
Verwarming: twee cv-ketels (Atag, 2013 en 2015), begane grond vloerverwarming
Isolatie: vloeren, muren, daken en beglazing
16 zonnepanelen
Energielabel: B
Woonoppervlakte: 252 m²
Inhoud: 1.093 m³
Perceeloppervlakte: 13.285 m²
Aantal kamers: 8
Aantal slaapkamers: 5
Aantal badkamers: 2
Bijgebouwen: garage met berging (2018) en twee schuren (11 × 7,75 m en 4,5 × 9 m)
Ligging: op loopafstand van natuur- en recreatiegebied Bussloo, nabij voorzieningen en uitvalswegen
Ideaal voor: dierenliefhebbers
Bijzonderheden: geschikt voor mantelzorg, gastenverblijf of kantoor/praktijk aan huis
Vraagprijs: € 1.155.000 k.k.
Aanvaarding: in overleg
Informeer altijd bij de gemeente of uw plannen passen binnen de bestemming.
Het perceel omvat deels agrarische grond (niet-woonbestemming).
Afhankelijk van het gebruik en de bestemming kan voor dat deel het hogere overdrachtsbelastingtarief gelden.
De koper wordt geadviseerd dit vooraf te verifiëren bij zijn notaris of belastingadviseur.
In overleg is de verkoper bereid de woning zonder het aangrenzende agrarische weiland van circa 7.500 m² te verkopen, waarbij de koopsom naar beneden kan worden bijgesteld.
Kenmerken
Overdracht
- Aangeboden sinds
- Aanvaarding
- In overleg
- Vraagprijs
- € 1.155.000 kosten koper
- Vraagprijs per m²
- € 4.583
- Status
- Verkocht onder voorbehoud
Bouw
- Soort woonhuis
- Woonboerderij, vrijstaande woning
- Soort bouw
- Bestaande bouw
- Bouwjaar
- 1937
- Specifiek
- Dubbele bewoning mogelijk
- Soort dak
- Zadeldak bedekt met pannen
- Toegankelijkheid
- Toegankelijk voor mensen met een beperking en toegankelijk voor ouderen
Oppervlakten en inhoud
- Gebruiksoppervlakten
- Wonen
- 252 m²
- Overige inpandige ruimte
- 13 m²
- Externe bergruimte
- 192 m²
- Perceel
- 13.285 m²
- Inhoud
- 1.093 m³
Indeling
- Aantal kamers
- 8 kamers (5 slaapkamers)
- Aantal badkamers
- 2 badkamers en 1 apart toilet
- Badkamervoorzieningen
- 2 douches, dubbele wastafel, zitbad, toilet, en wastafel
- Aantal woonlagen
- 2 woonlagen en een kelder
- Voorzieningen
- Dakraam, glasvezelkabel, mechanische ventilatie, rookkanaal, en zonnepanelen
Energie
- Energielabel
- B
- Isolatie
- Dakisolatie, grotendeels dubbelglas, HR-glas, muurisolatie, vloerisolatie en volledig geïsoleerd
- Verwarming
- Cv-ketel, houtkachel en gedeeltelijke vloerverwarming
- Warm water
- Cv-ketel
- Cv-ketel
- Atag E325EC en Atag A244EC (gas gestookt combiketel uit 2015, eigendom)
Kadastrale gegevens
- VOORST G 2259
- Kadastrale kaart
- Oppervlakte
- 13.285 m²
- Eigendomssituatie
- Volle eigendom
Buitenruimte
- Ligging
- Buiten bebouwde kom, in bosrijke omgeving en landelijk gelegen
- Tuin
- Tuin rondom
Bergruimte
- Schuur/berging
- Vrijstaande stenen berging
Garage
- Soort garage
- Vrijstaande stenen garage
- Capaciteit
- 4 auto's
- Voorzieningen
- Elektra
- Isolatie
- Dakisolatie en muurisolatie
Parkeergelegenheid
- Soort parkeergelegenheid
- Op afgesloten terrein
Foto's 83
© 2001-2025 funda


















































































