
Omschrijving
Starters en gezinnen opgelet. Een complete en ruime uitgebouwde woning met vier slaapkamers nabij het centrum van Klazienaveen!
In een autoluw hofje, direct grenzend aan een brede groenstrook, vindt u deze perfect onderhouden en gemoderniseerde tussenwoning. De woning biedt alles voor een zorgeloos en comfortabel gezinsleven. De eetkamer opent zich via sierlijke en-suite deuren naar de woonkamer, wat een gevoel van elegantie en ruimtelijkheid creëert. De keuken is recent vernieuwd (2023) en vormt het moderne hart van het huis. Het geheel heeft een praktische indeling met een moderne badkamer en vier slaapkamers, het biedt alle ruimte voor een groeiend of groter gezin. Er zijn tevens eigentijdse en energiezuinige voorzieningen getroffen, wat zich vertaalt in lage lasten, een gunstig energielabel B en comfort in elk seizoen. De locatie is perfect: alle voorzieningen die Klazienaveen te bieden heeft, zoals scholen, winkels en sportclubs, liggen op fietsafstand. Het is een plek waar u direct thuiskomt, in een kindvriendelijke wijk waar het prettig leven is.
Indeling
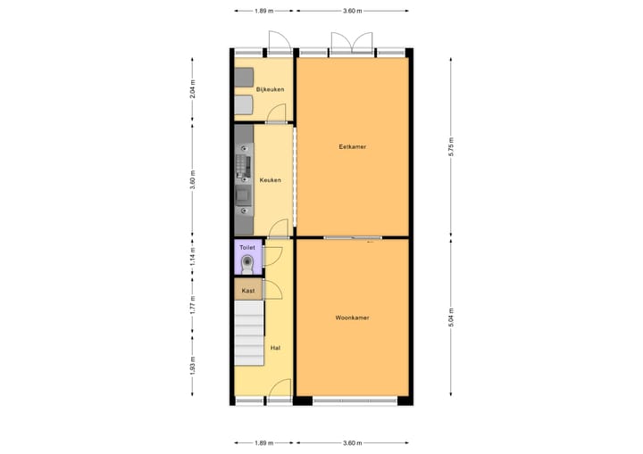
Begane grond: via de entree betreedt u de ruime hal met aansluitend een provisiekast en vernieuwde meterkast, gevolgd door een nette toiletruimte (2023). De doorzonwoonkamer met suitedeuren en houten plankenvloer loopt vloeiend over in een zeer ruime eetkamer met open keuken, voorzien van een nieuwe inbouwkeuken met apparatuur; koelkast, vaatwasser, inductie kookplaat, afzuigkap en combi-oven. De keuken is tevens voorzien van openslaande terrasdeuren naar de achtertuin. Aansluitend bevindt zich een ruime bijkeuken met de witgoedaansluitingen. De begane grond is keurig afgewerkt, praktisch ingericht en compleet te noemen.
Eerste verdieping: de overloop geeft toegang tot drie prima slaapkamers, allen voorzien van nette laminaatvloeren (2023). De moderne badkamer is v.v. inloopdouche, een elegant wastafelmeubel en elektrische vloerverwarming. Alle slaapkamers zijn neutraal en keurig afgewerkt. Vanwege de rechte wanden ook zeer praktisch in gebruik.
Tweede verdieping: via vaste trap naar de volwaardige zolderverdieping met een 4e slaapkamer! Het nieuwe dakraam zorgt ervoor dat deze slaapkamer ook voldoende daglicht en ventilatiemogelijkheden heeft. Vanaf de overloop is de ketelkast te bereiken waar de Intergas HR combiketel uit 2015 is gesitueerd. De zolder is een absoluut fijne aanvulling op het geheel en biedt legio mogelijkheden voor een breed publiek (slaapkamer/speelkamer/werkkamer).
Tuin en bijgebouwen: de woning heeft aan de voorzijde, grenzend aan een looppad en groenstrook, een voortuin met sierbestrating, terwijl de op het westen gelegen achtertuin veel privacy biedt dankzij de omheinende schuttingen en een overkapping; via een achterom bereikt u de stenen berging met betonnen vloer, kunststof kozijnen en elektra, geheel in onderhoudsvrije afwerking.
Extra info:
- bouwjaar 1968; recentelijk gemoderniseerd;
- energielabel B met einddatum 05-12-2035;
- verwarming via radiatoren en cv ketel Intergas HR uit 2015;
- kunststof kozijnen met HR++ beglazing en Keralit gevelbekleding voorzijde;
- gedeeltelijk houten kozijnen met HR++ beglazing;
- de woning is v.v. muurisolatie, gedeeltelijk vloerisolatie en grotendeels dakisolatie;
- in 2023 zijn er 8 zonnepanelen met omvormer geplaatst;
- 2023: nieuwe keuken, gedeeltelijk nieuw stucwerk, nieuw toiletruimte en meterkast;
- in 2024 is de achtergevel opnieuw geschilderd;
- in 2025 v.v. nieuwe elektrische screen begane grond achterzijde en velux dakraam
- het centrum, scholen, sport en natuurgebied Bargerveen op korte afstand gelegen.
- Emmen op 15 autominuten gelegen; goede uitvalswegen richting Duitsland/ Groningen/ Zwolle/ Emmen.
Kenmerken
Overdracht
- Aangeboden sinds
- Aanvaarding
- In overleg
- Vraagprijs
- € 275.000 kosten koper
- Vraagprijs per m²
- € 2.099
- Status
- Beschikbaar
Bouw
- Soort woonhuis
- Eengezinswoning, tussenwoning
- Soort bouw
- Bestaande bouw
- Bouwjaar
- 1968
- Soort dak
- Zadeldak bedekt met pannen
Oppervlakten en inhoud
- Gebruiksoppervlakten
- Wonen
- 131 m²
- Externe bergruimte
- 15 m²
- Perceel
- 146 m²
- Inhoud
- 434 m³
Indeling
- Aantal kamers
- 5 kamers (4 slaapkamers)
- Aantal badkamers
- 1 badkamer en 1 apart toilet
- Badkamervoorzieningen
- Inloopdouche, vloerverwarming, wastafel, en wastafelmeubel
- Aantal woonlagen
- 3 woonlagen
- Voorzieningen
- Buitenzonwering, dakraam, glasvezelkabel, rolluiken, TV kabel, en zonnepanelen
Energie
- Energielabel
- B
- Isolatie
- Dakisolatie, dubbel glas en muurisolatie
- Verwarming
- Cv-ketel
- Warm water
- Cv-ketel
- Cv-ketel
- Intergas HR (gas gestookt combiketel uit 2015, eigendom)
Kadastrale gegevens
- EMMEN I 4267
- Kadastrale kaart
- Oppervlakte
- 131 m²
- Eigendomssituatie
- Volle eigendom
- EMMEN I 14077
- Kadastrale kaart
- Oppervlakte
- 15 m²
- Eigendomssituatie
- Volle eigendom
Buitenruimte
- Ligging
- Aan rustige weg en in woonwijk
- Tuin
- Achtertuin en voortuin
- Achtertuin
- 36 m² (6,00 meter diep en 6,00 meter breed)
- Ligging tuin
- Gelegen op het westen bereikbaar via achterom
Bergruimte
- Schuur/berging
- Vrijstaande stenen berging
Parkeergelegenheid
- Soort parkeergelegenheid
- Openbaar parkeren
Foto's 50
Plattegronden 4
© 2001-2025 funda





















































