
Middelland 22931 AL Krimpen aan de LekBeroepenbuurt
€ 449.000 k.k.
BlikvangerAan de dijk, met karakter en tuin. Een kans vol mogelijkheden!
Omschrijving
Aan de rand van de dorpskern, gelegen onderaan de dijk, tref je deze bijzonder leuke woning aan. Een heerlijk huis met lekker veel ruimte, een prachtig gestuukt geveltje en een enorm verrassende tuin met stenen berging/garage en eigen parkeerplaats.
Natuurlijk koop je een huis om lekker in te kunnen wonen. En dat kan hier zeker! De verkopers hebben dat ook gedacht toen zij het kochten, want inmiddels wonen ze hier al circa 40 jaar! En dat doe je niet zomaar, dan is het een heerlijk huis.
Uiteraard hebben ze de woning in de loop der jaren aangepast aan hun wensen.
Natuurlijk kan je er zo in gaan wonen. Daar is niets mis mee. Maar wellicht wil jij het meer maken zoals jij het wilt hebben. Dan kan je hier helemaal je gang gaan.
Het is een ideaal huis om wat te moderniseren en om te verduurzamen aan de eisen van vandaag.
Je woont straks op loopafstand van de dorpskern, in een woning die met de auto te bereiken is vanuit de Mandenmakersstoep en waar je kan parkeren op eigen terrein. Allerlei voorzieningen zijn op loopafstand, zoals de scholen, supermarkt, winkels en horeca. Ook leuk is het nabijgelegen recreatiegebied Krimpenerhout, heerlijk om te wandelen, te fietsen en te genieten van het prachtige polderlandschap.
Indeling
Begane grond:
Het is hier normaal om “achterom” te komen. Er is zelfs geen "voordeur" meer.
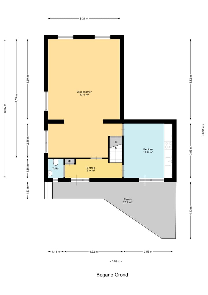
Aan de achterzijde kunnen we op twee manieren binnen komen. Enerzijds via de zogenaamde voordeur, anderzijds via de deur naar de keuken. Maar we beginnen gewoon bij de voordeur. Hier heb je een grote hal met gelijk naast de voordeur het toilet en de meterkast. Aan de rechterzijde is de trap naar de verdieping en toegang tot de keuken. Lopen we rechtdoor dan komen we in de woonkamer.
De woonkamer is aan de voorzijde, gericht op de dijk en op het zuiden. Kortom een heerlijk lichte kamer, waar je al snel geniet van de binnenvallende zon. De kamer is opgedeeld in een zitkamer en een eetkamer. Ook geeft het weer hoeveel extra ruimte er is ontstaan in de loop der jaren. Heerlijk!
De keuken is een aparte ruimte, een echte woonkeuken, met plaats voor een eettafel en de deur naar buiten. Het keukenblok staat praktisch opgesteld in een rechte opstelling, degelijke eiken frontjes en natuurlijk voorzien van de nodige apparatuur zoals een gaskookplaat, oven, afzuigkap en een koel-/vriescombinatie. Vanuit de keuken stap je naar buiten op een leuk terras, waar je geniet van de eerste zonnestralen in de ochtend onder het genot van een kop koffie. De begane grond is geheel voorzien van een grindvloer.
Verdieping:
Oude panden hebben van die leuke hoekjes die uniek zijn en de sfeer maken. Dat merk je hier boven meteen. Je hebt een overloop met een grote kastenwand. De overloop verbindt alle ruimtes met elkaar.
Aan de voorzijde zijn er twee mooie slaapkamers, beiden voorzien van een dakkapel.
De grootste kamer is nu in gebruik als wasruimte, met de aansluiting van de wasmachine/droger en een grote vaste kast. Ook staat hier de cv-installatie opgesteld en is een luik naar de zolder. Aan de achterzijde zijn de volgende twee slaapkamers, mooie lichte kamers met veel lichtinval dankzij de grote raampartijen.
De badkamer is ook aan de achterzijde, tussen de slaapkamers in. Voorzien van een ligbad, tweede toilet en een wastafel.
Algemeen:
Grote berging/garage
CV HR bouwjaar 2011
Kunststof dakkapel met HR++ glas
Bijlage bepalingen bij verkoopprocedure zijn van toepassing
Deze woning beschikt over een energielabel E. Hierdoor is het mogelijk om een hoger bedrag te financieren. Dit betreft een bedrag van € 0,-. Daarnaast is het mogelijk om een extra bedrag van € 20.000,- te financieren voor energiebesparende voorzieningen.
Voor meer informatie kan je terecht bij jouw hypotheekadviseur en op de website van de overheid.
De Meetinstructie is gebaseerd op de NEN2580. De Meetinstructie is bedoeld om een meer eenduidige manier van meten toe te passen voor het geven van een indicatie van de gebruiksoppervlakte. De Meetinstructie sluit verschillen in meetuitkomsten niet volledig uit, door bijvoorbeeld interpretatieverschillen, afrondingen of beperkingen bij het uitvoeren van de meting.
Deze informatie is door ons met de nodige zorgvuldigheid samengesteld. Onzerzijds wordt echter geen enkele aansprakelijkheid aanvaard voor enige onvolledigheid, onjuistheid of anderszins, dan wel de gevolgen daarvan. Alle opgegeven maten en oppervlakten zijn indicatief.
Kenmerken
Overdracht
- Aangeboden sinds
- Aanvaarding
- In overleg
- Vraagprijs
- € 449.000 kosten koper
- Vraagprijs per m²
- € 3.376
- Status
- Beschikbaar
Bouw
- Soort woonhuis
- Eengezinswoning, 2-onder-1-kapwoning
- Soort bouw
- Bestaande bouw
- Bouwjaar
- 1865
- Soort dak
- Zadeldak bedekt met bitumineuze dakbedekking en pannen
Oppervlakten en inhoud
- Gebruiksoppervlakten
- Wonen
- 133 m²
- Externe bergruimte
- 23 m²
- Perceel
- 312 m²
- Inhoud
- 467 m³
Indeling
- Aantal kamers
- 5 kamers (4 slaapkamers)
- Aantal badkamers
- 1 badkamer en 1 apart toilet
- Badkamervoorzieningen
- Ligbad, toilet, en wastafel
- Aantal woonlagen
- 2 woonlagen
- Voorzieningen
- Dakraam, natuurlijke ventilatie, en TV kabel
Energie
- Energielabel
- E
- Isolatie
- Dakisolatie, dubbel glas en HR-glas
- Verwarming
- Cv-ketel
- Warm water
- Cv-ketel
- Cv-ketel
- HR (gas gestookt combiketel uit 2011, eigendom)
Kadastrale gegevens
- KRIMPEN AAN DE LEK A 6576
- Kadastrale kaart
- Oppervlakte
- 312 m²
- Eigendomssituatie
- Volle eigendom
Buitenruimte
- Ligging
- Aan rustige weg, beschutte ligging en in woonwijk
- Tuin
- Achtertuin, voortuin en zijtuin
- Voortuin
- 27 m² (3,00 meter diep en 9,00 meter breed)
- Ligging tuin
- Gelegen op het zuiden
Garage
- Soort garage
- Vrijstaande stenen garage
- Capaciteit
- 1 auto
- Voorzieningen
- Elektra
- Isolatie
- Geen isolatie
Parkeergelegenheid
- Soort parkeergelegenheid
- Op eigen terrein en openbaar parkeren
Foto's 52
© 2001-2025 funda



















































