
Omschrijving
Ontdek deze fraai verbouwde jaren dertig woning, waar karakter en modern comfort samenkomen! Hier wonen is ultiem genieten met een vernieuwd dak met zonnepanelen, moderne keuken, badkamer en 2 slaapkamers. De zonnige achtertuin is voorzien van een achterom. Gelegen op 95 m2 eigen grond in een rustige en kindvriendelijke buurt, nabij scholen, winkels, sportaccommodaties en openbaar vervoer. Deze woning biedt alles wat je zoekt in een thuis. Kom kijken om de sfeer te proeven!
U KIEST VOOR DEZE WONING, OMDAT:
* U een instapklare woning zoekt!
* Het voorzien is van moderne keuken en badkamer!
* U kunt genieten in de zonnige achtertuin!
* Het nabij winkels, scholen en openbaar vervoer gelegen is!
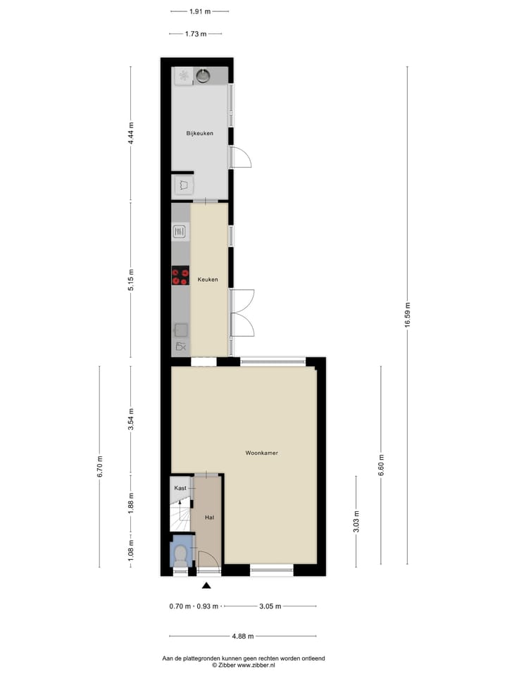
Begane grond:
* Entree, hal voorzien van PVC vloer, trapopgang met vaste kast en half betegeld toilet.
* Lichte living van ca. 35 m2 bestaande uit woonkamer en keuken. Woonkamer is voorzien van PVC vloer en airconditioning.
* Dichte moderne keuken voorzien van PVC vloer, elektrische kookplaat, afzuigkap, combi-oven-/magnetron, vaatwasmachine, koelkast en openslaande deuren naar de zonnige achtertuin.
* Bijkeuken van ca. 8 m2 voorzien van PVC vloer, eenvoudig keukenblok, aansluiting wasmachine/droger en deur naar de achtertuin.
1e Verdieping:
* Overloop voorzien van laminaat vloer en toegang tot de 2 slaapkamers en badkamer.
* Slaapkamer I van ca. 4.92 x 3.18/2.23 gelegen aan de achterzijde voorzien van laminaat vloer en dakkapel.
* Slaapkamer II van ca. 3.42 x 2.40 voorzien van laminaat vloer, dakraam en dakkapel.
* Moderne badkamer van ca. 2.46/2.09 x 2.35 voorzien van douche, wastafel met meubel en designradiator.
Bergvliering:
* Ruime praktische bergvliering met opstelplaats van de CV ketel.
Tuin:
* Keurig aangelegde en onderhoudsvriendelijk volledig betegelde achtertuin (Zuid-West) voorzien van terras met zonwering en eigen achterom.
Bijzonderheden:
* Dak is vernieuwd met nieuwe dakpannen en isolatie.
* Gedeeltelijk voorzien van kunststof kozijnen.
* In ca. 2022 is alle elektra vernieuwd.
* In ca. 2024 voorzien van 9 zonnepanelen.
* Schilderwerk buitenzijde ca.2024.
* Dakkapel voor- en achterzijde.
* Oplevering in overleg.
Kenmerken
Overdracht
- Laatste vraagprijs
- € 335.000 kosten koper
- Vraagprijs per m²
- € 4.136
- Status
- Verkocht
Bouw
- Soort woonhuis
- Eengezinswoning, tussenwoning
- Soort bouw
- Bestaande bouw
- Bouwjaar
- 1935
- Soort dak
- Mansarde dak bedekt met pannen
Oppervlakten en inhoud
- Gebruiksoppervlakten
- Wonen
- 81 m²
- Perceel
- 95 m²
- Inhoud
- 288 m³
Indeling
- Aantal kamers
- 3 kamers (2 slaapkamers)
- Aantal badkamers
- 1 badkamer en 1 apart toilet
- Badkamervoorzieningen
- Douche, wastafel, en wastafelmeubel
- Aantal woonlagen
- 2 woonlagen en een vliering
- Voorzieningen
- Airconditioning, dakraam, mechanische ventilatie, rolluiken, en zonnepanelen
Energie
- Energielabel
- B
- Isolatie
- Dakisolatie en HR-glas
- Verwarming
- Cv-ketel
- Warm water
- Cv-ketel
- Cv-ketel
- Remeha Avanta Ace 28 C (gas gestookt combiketel uit 2022, eigendom)
Kadastrale gegevens
- KRIMPEN AAN DEN IJSSEL A 6308
- Kadastrale kaart
- Oppervlakte
- 95 m²
- Eigendomssituatie
- Volle eigendom
Buitenruimte
- Ligging
- In woonwijk
- Tuin
- Achtertuin
- Achtertuin
- 39 m² (11,00 meter diep en 3,50 meter breed)
- Ligging tuin
- Gelegen op het zuidwesten bereikbaar via achterom
Parkeergelegenheid
- Soort parkeergelegenheid
- Openbaar parkeren
Foto's 25
© 2001-2025 funda
























