
Omschrijving
2/1 KAPWONING MET EIGEN OPRIT EN (HOBBY)SCHUUR VAN MAAR LIEFST 80m2!
RUIM WONEN MET SERRE, SCHUUR EN ZONNIGE TUIN
Aan de Rotterdamseweg 48 in Krimpen aan den IJssel staat deze leuke twee-onder-een-kapwoning klaar voor nieuwe bewoners. Dit huis biedt verrassend veel leefruimte en beschikt over fijne extra’s zoals een grote serre, een grote schuur van maar liefst 8x10 meter én een zonnige tuin op het zuidwesten. Ideaal voor doorstromers, hobbyisten of mensen die op zoek zijn naar een werkplaats aan huis. Kortom een huis, tuin en bijgebouw met mogelijkheden.
SFEERVOLLE LEEFRUIMTE MET SERRE EN MODERNE KEUKEN
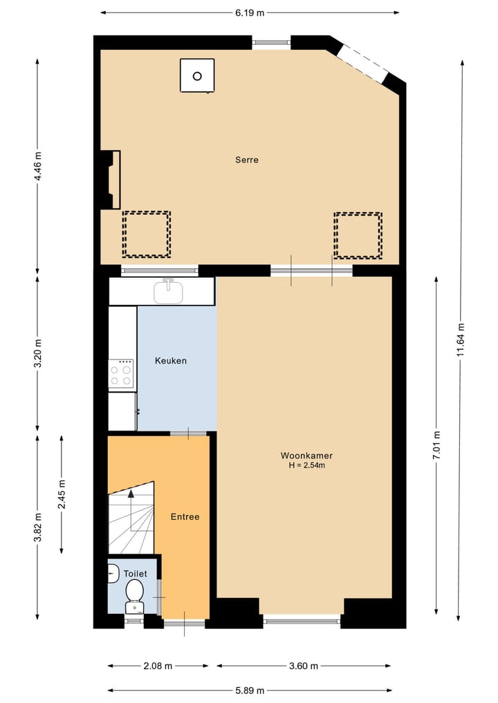
Je komt binnen in een nette hal met meterkast (inclusief krachtstroom), toilet met fonteintje en trapopgang. De woonkamer is ruim, licht en afgewerkt met plavuizen en airco. Vanuit hier loop je door naar de halfopen keuken, die is uitgerust met een inductiekookplaat, afzuigkap, vaatwasser, koel-vriescombinatie en openslaande deuren naar de serre. De keukenopstelling is praktisch en sluit goed aan op het dagelijks gebruik. De serre is een verlengstuk van de woning: voorzien van een sfeervolle sierhaard en allesbrander, waardoor je hier zelfs op koudere dagen comfortabel zit. Een heerlijke plek voor een ontbijtje in het zonnetje of een borrel met vrienden.
MEERDERE VERDIEPINGEN EN GOEDE INDELING
Op de eerste verdieping vind je twee slaapkamers, waarvan één met schuifkastenwand. Daarnaast is er een voorraadkast en een nette badkamer met wastafel, douche en een sanibroyeur-toilet. Op zolder vind je de voorzolder met wasmachineaansluiting en een derde slaapkamer met dakraam en cv-ketel (circa 2010). Dankzij de vaste trap en goede lichtinval is dit een volwaardige verdieping die zich uitstekend leent voor logees, werkruimte of tienerkamer.
IDEALE SCHUUR VOOR KLUSSERS OF THUISWERKERS
Wat echt opvalt aan deze woning, is de enorme vrijstaande werkplaats/schuur in de achtertuin van circa 8x10 meter. Deze ruimte is voorzien van krachtstroom, warm water, een kleine pentry en aansluiting voor de wasmachine. Een droomplek voor de fanatieke klusser, zzp’er, verzamelaar of gewoon iemand die van ruimte houdt. Via het achterpad is deze schuur ook bereikbaar, ideaal voor het verplaatsen van materialen of opslag zonder door het huis te hoeven.
ZONNIGE TUIN EN GOEDE ISOLATIE
De achtertuin ligt op het zuidwesten, waardoor je hier tot in de avond van de zon kunt genieten. De woning is op meerdere punten geïsoleerd: de vloer is in 2025 aangepakt, de zijgevel was al geïsoleerd en het dak is door de vorige bewoner voorzien van isolatie. De kozijnen zijn deels van hout en deels van kunststof; op de verdieping zijn deze uitgevoerd met HR++ glas, wat bijdraagt aan een comfortabel binnenklimaat.
FIJNE LOCATIE IN EEN RUSTIGE WOONWIJK
De Rotterdamseweg is een rustige straat in een prettige woonwijk. Je woont hier centraal, met alle voorzieningen zoals winkels, scholen, sportverenigingen en openbaar vervoer op korte afstand. Ook de uitvalswegen richting Rotterdam en de rest van de regio zijn snel bereikbaar. Een ideale combinatie van rustig wonen met alles binnen handbereik.
KENMERKEN:
- Vraagprijs: € 450.000
- Ligging: in een woonwijk, aan een rustige weg
- Oriëntatie tuin: zuidwest
- Woonoppervlakte: ca. 124 m²
- Perceeloppervlakte: 253 m²
- Bouwjaar: 1955
- Aantal verdiepingen: 3
- Aantal kamers: 4
- Aantal slaapkamers: 3
- Energielabel: E
- Grote serre met sierhaard en allesbrander
- Vrijstaande schuur van 8x10 meter met krachtstroom en pentry
- Eigen oprit
- Gedeeltelijk kunststof kozijnen met HR++ glas
- Vloer-, gevel- en dakisolatie
- Oplevering: in overleg, kan snel.
- ouderdomsclausule en asbestclausule van toepassing i.v.m. bouwjaar.
TOELICHTINGSCLAUSULE NEN2580
De Meetinstructie is gebaseerd op de NEN2580. De Meetinstructie is bedoeld om een meer eenduidige manier van meten toe te passen voor het geven van een indicatie van de gebruiksoppervlakte. De Meetinstructie sluit verschillen in meetuitkomsten niet volledig uit, door bijvoorbeeld interpretatieverschillen, afrondingen of beperkingen bij het uitvoeren van de meting.
KOOPOVEREENKOMST PAS RECHTSGELDIG NA ONDERTEKENING
Een mondelinge overeenstemming tussen de particuliere verkoper en de particuliere koper is niet rechtsgeldig. Met andere woorden: er is geen koop. Er is pas sprake van een rechtsgeldige koop als de particuliere verkoper en de particuliere koper de koopovereenkomst hebben ondertekend. Dit vloeit voort uit artikel 7:2 Burgerlijk Wetboek. Een bevestiging van de mondelinge overeenstemming per e-mail of een toegestuurd concept van de koopovereenkomst wordt overigens niet gezien als een 'ondertekende koopovereenkomst'
“Deze informatie is door ons met de nodige zorgvuldigheid samengesteld. Onzerzijds wordt echter geen enkele aansprakelijkheid aanvaard voor enige onvolledigheid, onjuistheid of anderszins, dan wel de gevolgen daarvan. Alle opgegeven maten en oppervlakten zijn indicatief.”
Kenmerken
Overdracht
- Laatste vraagprijs
- € 450.000 kosten koper
- Vraagprijs per m²
- € 4.688
- Status
- Verkocht
Bouw
- Soort woonhuis
- Eengezinswoning, 2-onder-1-kapwoning
- Soort bouw
- Bestaande bouw
- Bouwjaar
- 1955
- Soort dak
- Zadeldak bedekt met pannen
Oppervlakten en inhoud
- Gebruiksoppervlakten
- Wonen
- 96 m²
- Externe bergruimte
- 61 m²
- Perceel
- 253 m²
- Inhoud
- 470 m³
Indeling
- Aantal kamers
- 4 kamers (3 slaapkamers)
- Aantal badkamers
- 1 badkamer en 1 apart toilet
- Badkamervoorzieningen
- Douche, toilet, en wastafelmeubel
- Aantal woonlagen
- 3 woonlagen
- Voorzieningen
- Dakraam
Energie
- Energielabel
- Verwarming
- Cv-ketel
- Warm water
- Cv-ketel
- Cv-ketel
- Gas gestookt combiketel, eigendom
Kadastrale gegevens
- KRIMPEN AAN DEN IJSSEL A 5273
- Kadastrale kaart
- Oppervlakte
- 253 m²
- Eigendomssituatie
- Volle eigendom
Buitenruimte
- Ligging
- Aan rustige weg en in woonwijk
- Tuin
- Achtertuin, voortuin en zijtuin
- Achtertuin
- 28 m² (3,00 meter diep en 9,30 meter breed)
- Ligging tuin
- Gelegen op het zuidwesten
Bergruimte
- Schuur/berging
- Vrijstaande stenen berging
- Voorzieningen
- Vliering, elektra en stromend water
Parkeergelegenheid
- Soort parkeergelegenheid
- Op eigen terrein en openbaar parkeren
Foto's 48
© 2001-2026 funda















































