Dit huis op Funda: https://www.funda.nl/detail/koop/kruiningen/huis-schotwal-14/89565105/

Omschrijving
Bent u op zoek naar een woning die u volledig naar eigen wens kunt inrichten en verbeteren? Dan is deze woning iets voor u! Deze leuke hoekwoning, gelegen op een verrassend ruim perceel van 446 m², biedt volop mogelijkheden voor handige klussers. De basis is degelijk en het huis beschikt over een praktische indeling, meerdere slaapkamers en een diepe tuin. De woning ligt in een groene wijk met alle voorzieningen op korte afstand. Gaat u de uitdaging aan? Grijp deze kans en maak van deze woning uw thuis!
Begane grond
De begane grond van deze woning is praktisch ingedeeld. Bij binnenkomst via de entree bevindt zich links een trap naar boven en rechts een hal met toegang tot de meterkast en het toilet. Onder de trap vindt u een handige trapkast voor extra opbergruimte. Vanuit de hal loopt u door naar de royale woonkamer, die dankzij de breedte en grote raampartijen aangenaam licht en ruim aanvoelt.
De keuken is aan de achterzijde gesitueerd en heeft een directe doorgang naar de bijkeuken. Hier is extra ruimte voor bijvoorbeeld witgoed, voorraad of klusspullen. De bijkeuken biedt toegang tot de tuin én tot de ruime stenen berging. Deze berging heeft een vlizotrap naar een zolder, ideaal voor extra opslag en stalling.
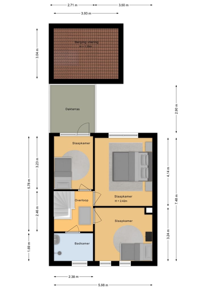
Eerste verdieping
Via de overloop zijn drie ruime slaapkamers bereikbaar, elk voorzien van grote ramen die zorgen voor veel natuurlijk licht. De grootste slaapkamer ligt aan de achterzijde en biedt ruimte voor een tweepersoonsbed en een grote kledingkast.
Er zijn nog twee slaapkamers, waarvan één direct toegang biedt tot het balkon. De aparte badkamer is compact en functioneel en voorzien van daglicht. Via de overloop is er middels een vlizotrap toegang tot een grote vliering. Hier is een afsluitbare kamer met dakraam, perfect als hobbyruimte.
Buiten
De woning is achterom bereikbaar via een afsluitbaar hekje. De riante achtertuin is onderhoudsarm aangelegd en naar eigen ideeën in te richten. Deze tuin ligt op het zuidoosten en beschikt over een aparte berging.
Kenmerken
Overdracht
- Laatste vraagprijs
- € 350.000 kosten koper
- Vraagprijs per m²
- € 3.153
- Status
- Verkocht
Bouw
- Soort woonhuis
- Eengezinswoning, hoekwoning
- Soort bouw
- Bestaande bouw
- Bouwjaar
- 1982
Oppervlakten en inhoud
- Gebruiksoppervlakten
- Wonen
- 111 m²
- Overige inpandige ruimte
- 17 m²
- Gebouwgebonden buitenruimte
- 8 m²
- Externe bergruimte
- 11 m²
- Perceel
- 446 m²
- Inhoud
- 475 m³
Indeling
- Aantal kamers
- 4 kamers (3 slaapkamers)
- Aantal badkamers
- 1 badkamer en 1 apart toilet
- Aantal woonlagen
- 2 woonlagen en een vliering
- Voorzieningen
- Rolluiken
Energie
- Energielabel
- Verwarming
- Cv-ketel
Kadastrale gegevens
- KRUININGEN G 1948
- Kadastrale kaart
- Oppervlakte
- 230 m²
- Eigendomssituatie
- Volle eigendom
- KRUININGEN G 1095
- Kadastrale kaart
- Oppervlakte
- 216 m²
- Eigendomssituatie
- Volle eigendom
Buitenruimte
- Tuin
- Achtertuin
- Balkon/dakterras
- Balkon aanwezig
Bergruimte
- Schuur/berging
- Aangebouwde stenen berging
Parkeergelegenheid
- Soort parkeergelegenheid
- Op eigen terrein
Foto's 49
© 2001-2026 funda
















































