Dit huis op Funda: https://www.funda.nl/detail/koop/laren-nh/huis-gooiergracht-109/43150483/

Omschrijving
Met veel plezier bieden wij u de gelegenheid om deze karaktervolle tussenwoning boordevol potentie met fenomenaal uitzicht te komen bekijken. Misschien wordt dit wel uw nieuwe woning.
Deze tussenwoning, gelegen aan de Gooiergracht 109 in Laren, biedt een uniek vrij uitzicht over de weilanden aan de voorzijde aan een rustige en sfeervolle straat met het Goois Natuurreservaat om de hoek. De woning biedt volop mogelijkheden voor wie op zoek is naar een huis dat naar eigen wens en stijl gerenoveerd kan worden. Met een solide basis, een prettige indeling en goed op de zon gelegen achtertuin is dit dé plek om uw droomwoning te realiseren.
Het sanitair en de keuken verkeren in goede staat en de zolder biedt na verbouwing extra gebruiksruimte. Daarbij is de woning voorzien van vloer-, spouwmuur- en dakisolatie. De ligging is uitstekend, nabij natuur, scholen, winkels, horeca en sportclubs. Tevens zijn er vanuit de woning goede verbindingen naar Amsterdam, Utrecht en Amersfoort. Een unieke kans voor wie op zoek is naar karakter en potentie op één van de mooiste plekken in Laren.
Indeling
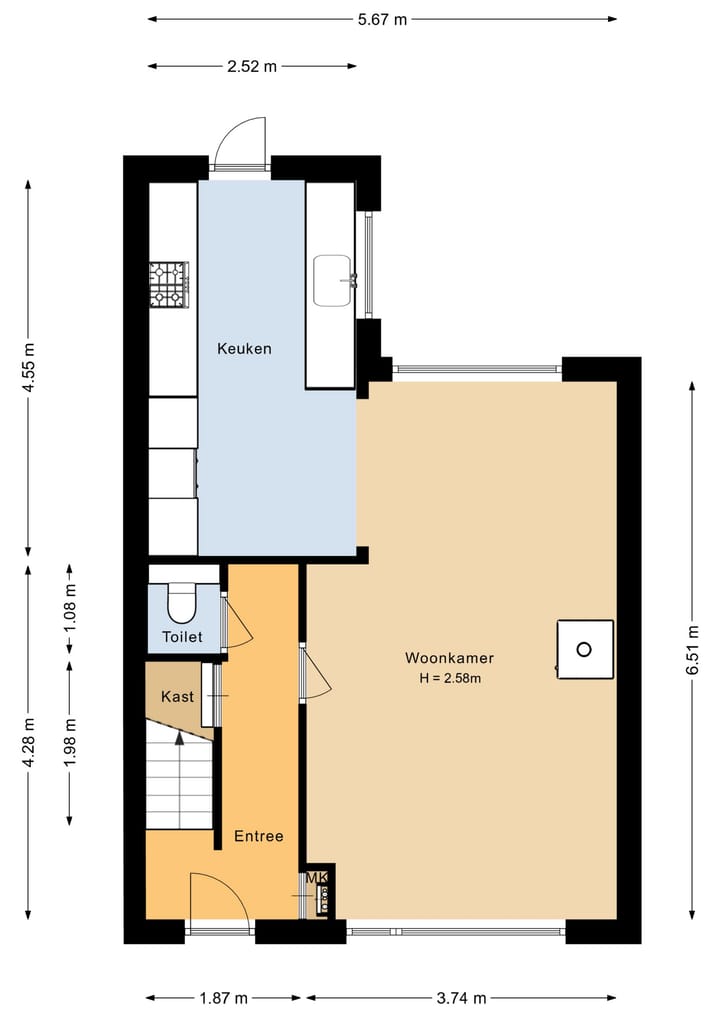
Begane grond
Entree met hal en trapopgang naar de eerste verdieping.
Aan de voorzijde bevindt zich de lichte woonkamer. De nette halfopen keuken uit 2020, voorzien van inbouwapparatuur, ligt aan de achterzijde en biedt toegang tot de tuin. Op de begane grond zijn tevens een provisiekast en een toilet aanwezig.
Eerste verdieping
Overloop met toegang tot drie slaapkamers. De nette badkamer van twee jaar oud is voorzien van een inloopdouche en een wastafel. Ook is er een separaat toilet op de verdieping aanwezig. De ruimtes zijn praktisch in te delen en veelzijdig te gebruiken.
Vliering
De vliering is bereikbaar via een vlizotrap en wordt momenteel gebruikt als bergzolder. Met de juiste aanpassingen biedt deze ruimte de mogelijkheid om er een volledige zolderverdieping van te maken, zodat extra kamers gerealiseerd kunnen worden.
Tuin
De achtertuin is gelegen op het westen en voorzien van een berging. Met wat aandacht en liefde kan hier een fijne buitenruimte worden gecreëerd.
Bijzonderheden
- Woning met karakter en potentie
- Gelegen in een rustige, geliefde straat in Laren
- Dicht bij natuur, winkels, scholen en uitvalswegen
- Badkamer verkeert in prima staat
- Achtertuin met berging
- Zolder met uitbreidingsmogelijkheden
- Voorzien van vloer-, spouwmuur- en dakisolatie
- Volledig te renoveren
- Energielabel C
- Aanvaarding in overleg
Deze woning biedt volop kansen om uw droomhuis te creëren. Neem contact op met Buijs Regiomakelaars Blaricum voor een bezichtiging en ontdek wat deze woning op een unieke locatie u te bieden heeft.
Kenmerken
Overdracht
- Laatste vraagprijs
- € 449.000 kosten koper
- Vraagprijs per m²
- € 5.543
- Status
- Verkocht
Bouw
- Soort woonhuis
- Eengezinswoning, tussenwoning
- Soort bouw
- Bestaande bouw
- Bouwjaar
- 1955
- Specifiek
- Kluswoning
- Soort dak
- Zadeldak bedekt met pannen
Oppervlakten en inhoud
- Gebruiksoppervlakten
- Wonen
- 81 m²
- Externe bergruimte
- 8 m²
- Perceel
- 148 m²
- Inhoud
- 317 m³
Indeling
- Aantal kamers
- 5 kamers (3 slaapkamers)
- Aantal badkamers
- 1 badkamer en 2 aparte toiletten
- Badkamervoorzieningen
- Inloopdouche en wastafel
- Aantal woonlagen
- 2 woonlagen en een vliering
- Voorzieningen
- Glasvezelkabel, natuurlijke ventilatie, rookkanaal, en schuifpui
Energie
- Energielabel
- Isolatie
- Dakisolatie, muurisolatie en vloerisolatie
- Verwarming
- Cv-ketel
- Warm water
- Cv-ketel
- Cv-ketel
- Gas gestookt combiketel, eigendom
Kadastrale gegevens
- LAREN G 3720
- Kadastrale kaart
- Oppervlakte
- 148 m²
- Eigendomssituatie
- Volle eigendom
Buitenruimte
- Ligging
- Vrij uitzicht
- Tuin
- Achtertuin en voortuin
- Achtertuin
- 39 m² (8,96 meter diep en 6,00 meter breed)
- Ligging tuin
- Gelegen op het westen bereikbaar via achterom
Bergruimte
- Schuur/berging
- Vrijstaande stenen berging
- Voorzieningen
- Elektra
- Isolatie
- Geen isolatie
Parkeergelegenheid
- Soort parkeergelegenheid
- Openbaar parkeren
Foto's 46
© 2001-2026 funda













































