Dit huis op Funda: https://www.funda.nl/detail/koop/laren-nh/huis-zevenend-46/43278311/

Zevenend 461251 RP Laren (NH)Zevenend
€ 695.000 k.k.
Omschrijving
Op loopafstand van het centrum van Laren, een rustig aan een hofje gelegen middenwoning met diepe achtertuin met een achterom en een garage.
De doorzonwoning kent een jaren 60 uitstraling, degelijk gebouwd, veel volume vanwege de hoge plafonds en evenzo veel licht vanwege het grote glasoppervlak. De diepe achtertuin is goed op de zon gelegen en biedt veel privacy en ruimte voor recreëren.
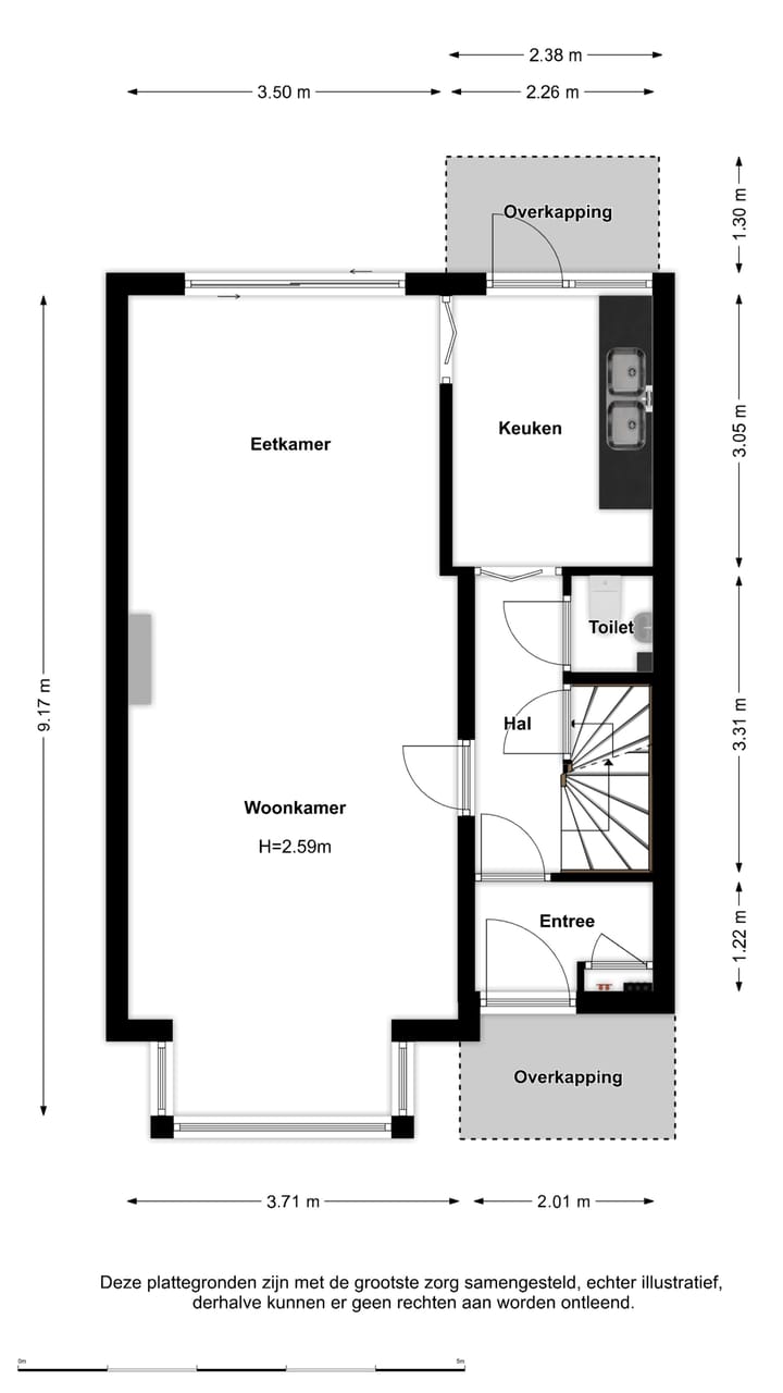
Indeling: entree aan de voorzijde met tochtportaal, meterkast, toilet, trapopgang en toegang tot de woonkamer en keuken. Lichte woonkamer met hoog plafond, erker aan de voorzijde voor veel daglicht toetreding, openhaard en schuifpui aan de achterzijde. De eetkamer met schuifpui naar zonnige achtertuin met terras én in halfopen verbinding met de keuken. De authentieke onverslijtbare keuken van het merk Bruynzeel.
1e verdieping: overloop, separaat toilet, grote slaapkamer aan de voorzijde met balkon, vaste kast en wastafel. Voorts een grote slaapkamer aan de achterzijde met vaste kast. En een kleinere slaapkamer aan de achterzijde. Aan voorzijde een badkamer met douche, bidet, wastafel en aansluiting voor de wasmachine en droger.
2e verdieping: via een vaste trap bereikbaar. Op deze verdieping bevindt zich de vierde kleine slaapkamer met Veluxraam en een vijfde grote slaapkamer met hoge nok en dakkapel aan de achterzijde.
Kelder, vanaf de hal begane grond een ruime, droge bergkelder te betreden alwaar onder andere de opstelling is voor de cv-ketel.
Tuin: aan de voorzijde netjes aangelegd met oa een mooie hazelaar. Aan de achterzijde een diepe, netjes verzorgde tuin met vijver en achterom.
Garage: bijbehorend een garage vanaf de tuin te betreden middels een loopdeur. De garage met elektra met toegang tot het pleintje.
Parkeren: aan de voorzijde een aantal, op openbare parkeerplaatsen op het “hofje”.
Vanzelfsprekend nodigt de Gouden Makelaar u uit voor een vrijblijvende bezichtiging en of neem uw aankoopmakelaar mee.
Kenmerken
Overdracht
- Aangeboden sinds
- Aanvaarding
- In overleg
- Vraagprijs
- € 695.000 kosten koper
- Vraagprijs per m²
- € 5.516
- Status
- Beschikbaar
Bouw
- Soort woonhuis
- Eengezinswoning, tussenwoning
- Soort bouw
- Bestaande bouw
- Bouwperiode
- 1960-1970
- Soort dak
- Zadeldak bedekt met pannen
Oppervlakten en inhoud
- Gebruiksoppervlakten
- Wonen
- 126 m²
- Overige inpandige ruimte
- 9 m²
- Gebouwgebonden buitenruimte
- 7 m²
- Externe bergruimte
- 17 m²
- Perceel
- 213 m²
- Inhoud
- 442 m³
Indeling
- Aantal kamers
- 6 kamers (5 slaapkamers)
- Aantal badkamers
- 1 badkamer en 2 aparte toiletten
- Badkamervoorzieningen
- Douche, wastafel, en zitbad
- Aantal woonlagen
- 2 woonlagen en een zolder
- Voorzieningen
- Buitenzonwering, dakraam, mechanische ventilatie, natuurlijke ventilatie, rookkanaal, schuifpui, en TV kabel
Energie
- Energielabel
- D
- Isolatie
- Gedeeltelijk dubbel glas
- Verwarming
- Cv-ketel en open haard
- Warm water
- Cv-ketel
- Cv-ketel
- Vallliant HR 107 (gas gestookt combiketel uit 2016, eigendom)
Kadastrale gegevens
- LAREN G 213
- Kadastrale kaart
- Oppervlakte
- 213 m²
- Eigendomssituatie
- Volle eigendom
Buitenruimte
- Ligging
- Beschutte ligging, in woonwijk en vrij uitzicht
- Tuin
- Achtertuin en voortuin
- Achtertuin
- 95 m² (15,00 meter diep en 6,30 meter breed)
- Ligging tuin
- Gelegen op het zuidwesten bereikbaar via achterom
Garage
- Soort garage
- Parkeerplaats en vrijstaande stenen garage
- Capaciteit
- 1 auto
- Voorzieningen
- Elektra
Parkeergelegenheid
- Soort parkeergelegenheid
- Openbaar parkeren
Foto's 23
© 2001-2025 funda






















