Dit huis op Funda: https://www.funda.nl/detail/koop/ledeacker/huis-den-berk-16/43940089/

Omschrijving
Aan Den Berk 16 in Ledeacker treft u een moderne en energiezuinige gezinswoning die aan al uw woonwensen voldoet. Deze ruime woning beschikt over vier comfortabele slaapkamers, een royale en lichte woonkamer met een open keuken, en een zonnige achtertuin met een berging. Dankzij de aanwezigheid van 18 zonnepanelen en warmtepomp is dit huis energiezuinig en toekomstgericht. Een woning die ruimte, comfort en duurzaamheid op een fraaie manier samenbrengt.
Gelegen aan de rand van woonwijk met vrij uitzicht en een kindvriendelijke, rustige buurt van Ledeacker. Op slechts enkele minuten vindt u basisscholen, sportverenigingen en een supermarkt. Voor uw dagelijkse boodschappen hoeft u dus niet ver te reizen. OV-voorzieningen, zoals bushaltes, bevinden zich eveneens op loopafstand. Dankzij de goede aansluiting op de nabijgelegen uitvalswegen is de woning bovendien prima bereikbaar met de auto. U rijdt zo naar omliggende dorpen en steden.
Entree:
Een nette voortuin verwelkomt u aan de voorzijde van de woning, waar u via de entree binnenkomt in de hal. Deze entreehal is overzichtelijk en verzorgd, en vormt de spil van de begane grond. Hier vindt u de toegang tot het moderne toilet, de trapopgang naar de eerste verdieping én de deur naar de woonkamer.
Woonkamer:
De woonkamer is royaal van opzet en voorzien van veel lichtinval dankzij de grote raampartijen aan de achterzijde. De ruimte is zo ingericht dat u eenvoudig een gezellige zithoek én een ruime eethoek kunt creëren. Openslaande deuren verbinden deze sfeervolle ruimte direct met de achtertuin, waardoor binnen en buiten naadloos in elkaar overgaan.
Keuken:
Een moderne open keuken aan de voorzijde van de woning maakt het geheel compleet. De keukeninrichting bestaat uit een langwerpige werkblad met een inductiekookplaat met afzuigkap, koelkast en vaatwasser.
1e Verdieping:
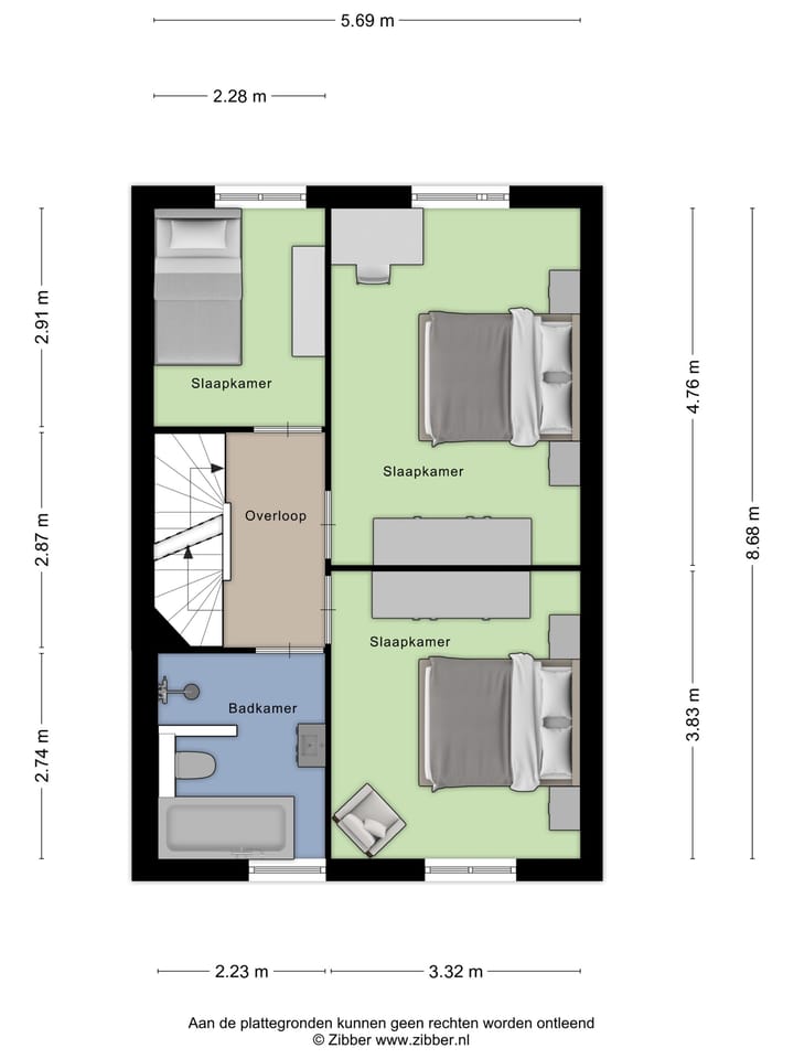
Via de trap bereikt u de eerste verdieping, waar een overzichtelijke overloop toegang biedt tot drie slaapkamers en de badkamer. Deze woonlaag is functioneel ingericht en biedt voldoende ruimte voor een gezin.
Slaapkamers:
Een drietal ruime slaapkamers grenst direct aan de overloop. Elke kamer beschikt over grote ramen die zorgen voor een prettige lichtinval. Dankzij de praktische afmetingen zijn de kamers geschikt als slaapvertrek, thuiskantoor, hobbyruimte of kinderkamer – net wat u nodig heeft.
Badkamer:
De badkamer is modern en goed afgewerkt met wand- en vloerbetegeling en een praktische indeling. Hier vindt u een ruim ligbad, een inloopdouche, een wastafel met spiegel, een tweede toilet en een handig opbergmeubel. Alles verkeert in keurige staat en maakt het begin én einde van de dag bijzonder comfortabel.
2e Verdieping:
Een vaste trap brengt u naar de tweede verdieping, waar zich een royale zolderruimte bevindt. Deze open ruimte is verrassend ruim en kan perfect dienstdoen als extra slaapkamer, werkruimte of hobbyzolder. Daarnaast vindt u hier de warmtepomp installatie, boiler en omvormer en aansluitingen voor witgoedapparatuur, handig en overzichtelijk geplaatst. De mogelijkheden zijn hier eindeloos.
Buitenruimte:
De zonnige achtertuin is voorzien van een berging en heeft een eigen achterom.
De woning is beschikbaar vanaf 1 september 2025
Borg is 2x huurtermijn.
Huur vraagprijs 1.400,-- per maand excl. water en elektra.
Interesse?
VANWEGE ENORME BELANGSTELLING, IS REAGEREN NIET ZINVOL MEER.
Kenmerken
Overdracht
- Laatste huurprijs
- € 1.400 per maand (geen servicekosten)
- Waarborgsom
- € 2.800 eenmalig
- Huurovereenkomst
- Onbepaalde tijd
- Status
- Verhuurd
Bouw
- Soort woonhuis
- Eengezinswoning, tussenwoning
- Soort bouw
- Bestaande bouw
- Bouwjaar
- 2021
- Soort dak
- Zadeldak bedekt met pannen
Oppervlakten en inhoud
- Gebruiksoppervlakten
- Wonen
- 128 m²
- Externe bergruimte
- 4 m²
- Perceel
- 137 m²
- Inhoud
- 454 m³
Indeling
- Aantal kamers
- 5 kamers (3 slaapkamers)
- Aantal badkamers
- 1 badkamer en 1 apart toilet
- Badkamervoorzieningen
- Douche, ligbad, toilet, vloerverwarming, wastafel, en wastafelmeubel
- Aantal woonlagen
- 3 woonlagen
- Voorzieningen
- Dakraam, glasvezelkabel, mechanische ventilatie, natuurlijke ventilatie, en zonnepanelen
Energie
- Energielabel
- A+++
- Isolatie
- Volledig geïsoleerd
- Verwarming
- Gehele vloerverwarming en warmtepomp
- Warm water
- Elektrische boiler
Kadastrale gegevens
- OPLOO I 1093
- Kadastrale kaart
- Oppervlakte
- 137 m²
- Eigendomssituatie
- Volle eigendom
Buitenruimte
- Ligging
- Aan rustige weg, in bosrijke omgeving, in woonwijk en vrij uitzicht
- Tuin
- Achtertuin en voortuin
- Achtertuin
- 48 m² (8,00 meter diep en 6,00 meter breed)
- Ligging tuin
- Gelegen op het oosten bereikbaar via achterom
Bergruimte
- Schuur/berging
- Box
Parkeergelegenheid
- Soort parkeergelegenheid
- Openbaar parkeren
Foto's 32
© 2001-2025 funda































