Dit huis op Funda: https://www.funda.nl/detail/koop/leerbroek/huis-middelkoop-58/43746306/

Omschrijving
Charmante boerderij met vrij uitzicht op de landerijen!
Deze kleinschalige rietgedekte boerderij ligt op een uniek perceel van circa 8.300 m² in het landelijke Leerbroek. De woning biedt een prachtig vrij uitzicht over de omliggende landerijen, zowel vanuit de woning als vanuit de royale tuin. Hier ervaar je rust, ruimte en privacy, terwijl de charme van de boerderij ervoor zorgt dat je je meteen thuis voelt.
De boerderij is in 1980 grotendeels herbouwd na een brand, waarbij de originele houten constructie behouden is gebleven en nu als sfeervolle blikvanger in de woning te zien is.
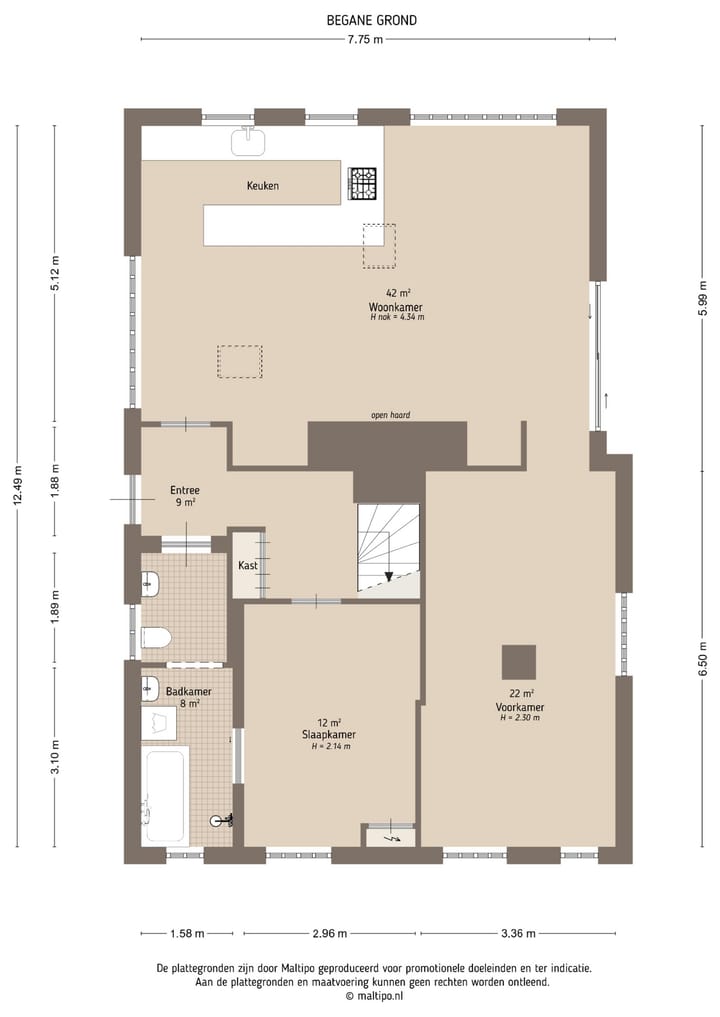
De woning biedt een ruime woonkamer, open keuken, slaapkamer en badkamer op de begane grond en een 2e slaapkamer op de verdieping.
Ben je op zoek naar een unieke kans om landelijk te wonen in een woning die je helemaal naar eigen wens kunt moderniseren?
Maak een afspraak voor een bezichtiging. We laten je graag deze bijzondere plek ervaren!
Wij adviseren je de brochure van deze woning te downloaden van onze website.
Hierin tref je uitgebreide informatie met extra foto's evenals plattegronden en kadastrale gegevens.
Indeling
Via de entree kom je in de hal, die toegang biedt tot alle ruimtes op de begane grond en waar een houten trap naar de verdieping leidt.
De woonkamer valt direct op door de mooie houtconstructie, de hoge nok, de robuuste haardpartij en het grote raam, dat zorgt voor veel lichtinval en een prachtig uitzicht.
In deze ruimte bevindt zich de open keuken met bar en voorzien van basisapparatuur. Aan de achterzijde kijk je door 2 originele stalraampjes naar buiten.
Vanuit de woonkamer is een open verbinding naar de gezellige ruimte aan de voorzijde van de woning.
De slaapkamer op de begane grond biedt een praktisch voordeel voor wie alles gelijkvloers wil hebben. Vanuit de slaapkamer loop je zo de badkamer in, die voorzien is van een ligbad, douche, wastafel, toilet en wasmachine-aansluiting.
Eerste verdieping
De houten trap leidt naar een overloop. Hier bevindt zich ook de tweede slaapkamer, met een nokhoogte van 2,24 meter.
Tuin
De boerderij ligt op een royaal perceel van circa 8.300 m², grotendeels omringd door sloten. Via een brug kom je op het perceel, waar de lange oprit leidt naar de entree van de woning en de schuur.
De tuin biedt volop mogelijkheden, met ruimte voor het houden van dieren, een moestuin of gewoon genieten van het landelijke buitenleven.
Achter de woning zijn twee terrassen gerealiseerd en aan de rechterzijde is een terras bereikbaar door de schuifpui vanuit de woonkamer.
Zowel in de voor- als achtertuin staan verschillende fruitbomen waaronder een Giesser Wildeman, pruimenboom, appelboom, een tamme kastanje, Goudreinet en een perenboom.
Achter de woning strekt de tuin zich verder uit. Het vrije uitzicht over de landerijen zorgt voor een altijd wisselend decor, dat nooit verveelt. Op het perceel staan tevens een grotere schuur en een kleinere schuur, perfect voor opslag of hobbyruimte.
Bijzonderheden
Voor technische kenmerken en bijzonderheden verwijzen wij je naar de brochure.
Leerbroek (gemeente Vijfheerenlanden) is een rustig, landelijk dorp in de Vijfheerenlanden, met ongeveer 1.200 inwoners. Het dorp ligt te midden van uitgestrekte weilanden en boerderijen, wat zorgt voor een serene, landelijke sfeer. Leerbroek biedt een knusse dorpsgemeenschap, waar het leven gemoedelijk en ontspannen is. Het dorp heeft een basisschool en een dorpshuis, en voor dagelijkse voorzieningen en middelbare scholen kun je terecht in het nabijgelegen Leerdam, op slechts 10 minuten rijden. Voor natuurliefhebbers is de omgeving ideaal, met tal van wandel- en fietsroutes door het prachtige polderlandschap.
De centrale ligging van Leerbroek zorgt ervoor dat je binnen een half uur rijden in steden als Utrecht, Rotterdam en Gorinchem kunt zijn, dankzij de nabijheid van de snelwegen A2, A27 en A15. Leerbroek is daarmee een aantrekkelijke woonplek voor forenzen die rust en ruimte willen combineren met goede bereikbaarheid naar de stad.
Interesse gewekt? Schakel meteen je eigen aankoopmakelaar in.
Jouw aankoopmakelaar komt op voor jouw belang en bespaart je tijd, geld en zorgen.
Kenmerken
Overdracht
- Laatste vraagprijs
- € 725.000 kosten koper
- Vraagprijs per m²
- € 6.197
- Status
- Verkocht
Bouw
- Soort woonhuis
- Woonboerderij, vrijstaande woning
- Soort bouw
- Bestaande bouw
- Bouwjaar
- 1980
- Soort dak
- Samengesteld dak bedekt met riet
Oppervlakten en inhoud
- Gebruiksoppervlakten
- Wonen
- 117 m²
- Externe bergruimte
- 46 m²
- Perceel
- 8.330 m²
- Inhoud
- 423 m³
Indeling
- Aantal kamers
- 4 kamers (2 slaapkamers)
- Aantal badkamers
- 1 badkamer
- Badkamervoorzieningen
- Douche, ligbad, toilet, en wastafel
- Aantal woonlagen
- 2 woonlagen
- Voorzieningen
- Dakraam, natuurlijke ventilatie, rolluiken, en rookkanaal
Energie
- Energielabel
- E
- Isolatie
- Dakisolatie en gedeeltelijk dubbel glas
- Verwarming
- Cv-ketel, open haard en gedeeltelijke vloerverwarming
- Warm water
- Cv-ketel
- Cv-ketel
- Nefit (gas gestookt combiketel uit 2018, eigendom)
Kadastrale gegevens
- ZEDERIK C 748
- Kadastrale kaart
- Oppervlakte
- 8.330 m²
Buitenruimte
- Ligging
- Buiten bebouwde kom en vrij uitzicht
- Tuin
- Achtertuin
- Achtertuin
- 7.144 m² (188,00 meter diep en 38,00 meter breed)
- Ligging tuin
- Gelegen op het noordoosten
Bergruimte
- Schuur/berging
- Vrijstaande houten berging
- Voorzieningen
- Elektra
Parkeergelegenheid
- Soort parkeergelegenheid
- Op eigen terrein
Foto's 41
© 2001-2025 funda








































