
Hoek appartement | Begane grond (Bouwnr. 2a-7)8925 AP LeeuwardenCamminghaburen-Zuid
Verkocht onder voorbehoud
€ 250.000 k.k.
Omschrijving
Beleef de magie van wonen en leven in Melkemastate Leeuwarden!
Verwachte oplevering november 2025!
ONTMOETING, ONTSPANNING & BEWEGING
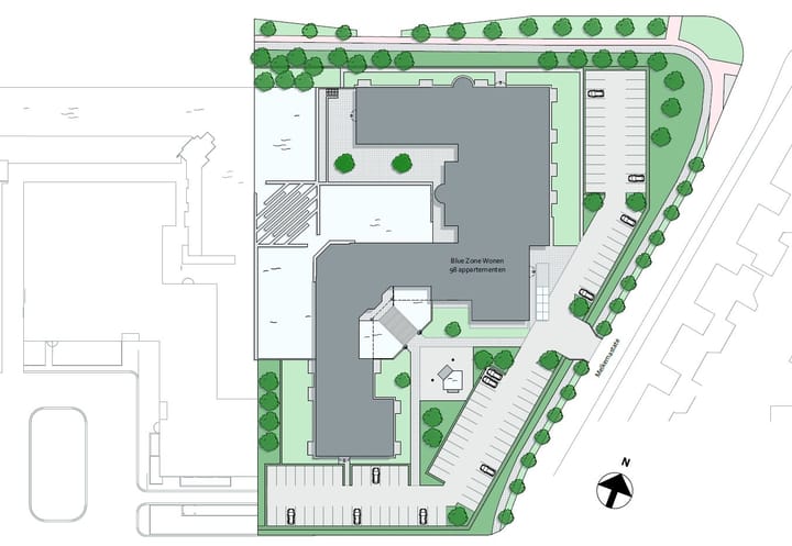
In de woonwijk Camminghaburen in Leeuwarden ondergaat een kantoorpand een bijzondere transformatie tot een modern appartementengebouw. Het plan omvat 43 koopappartementen en circa 55 huurappartementen, waarbij speciale ontmoetingsruimtes worden toegevoegd, zoals een gezellige huiskamer, lounge, werkplek en sportruimte. Deze vernieuwende aanpak creëert een aantrekkelijke woonomgeving voor een brede doelgroep, van jong tot oud!
KENMERKEN BOUWNUMMER 2A-7 (HOEKAPPARTEMENT)
- gelegen op de begane grond
- woonoppervlakte circa 67 m2
- woonkamer met open keuken van circa 33 m2
- slaapkamer van circa 22 m2 met inloopkast
- terras van 7 m2 gelegen op westen
- inclusief sanitair en tegelwerk
- separate berging in de kelder
- eigen aangewezen parkeerplaats
- voorzien van vloerverwarming (gasgestookt)
- koopsom is kosten koper
Alle verkoopdocumentatie is te vinden op de projectpagina van nieuwwonennederland.nl.
LOCATIE
Je kunt de Melkemastate niet missen. Het iconische gebouw is de blikvanger die de entree van de wijk Camminghaburen markeert. Camminghaburen is een levendige en groene wijk aan de oostkant van Leeuwarden. Op de fiets ben je zo in het nabijgelegen recreatiegebied De Groene Ster en het natuurgebied van De Kleine en Grote Wielen. Winkelcentrum Camminghaburen is op loopafstand bereikbaar en het zwembad Kalverdijkje ligt praktisch aan de overkant!
BLUE ZONE
De Melkemastate als gebouw om te wonen en te leven vindt zijn inspiratie in de zogeheten 'blue zones'. In Fryslân ook wel treffend 'bloeizones' genoemd. Dit zijn plekken die een gelukkig en gezond leven bevorderen. Ontwikkelaar Blue Zone transformeert de Melkemastate naar een woonomgeving met ruimte om regelmatig te bewegen, sociale contacten te onderhouden en om een positieve mindset te ondersteunen. In het kort zijn dat de elementen voor een gelukkig en gezond leven.
WOONGEREED
Deze fraaie, duurzame nieuwbouwappartementen worden door de ontwikkelaar zeer compleet uitgevoerd en opgeleverd. Desgewenst kun je via WoonGereed jouw gloednieuwe appartement verhuisklaar afwerken en inrichten, desgewenst inclusief het regelen van de verhuizing!
BELANGSTELLING?
Heeft u interesse in een koopappartement en wilt u graag op de hoogte gehouden worden van het nieuwbouwproject ‘Melkemastate’? Schrijft u zich dan in voor de nieuwsbrief op de website nieuwwonennederland.nl of neem contact op met Lamberink Nieuwbouwmakelaars (telefoonnummer 088 - 0338410).
Deze online presentatie en eventuele bijlagen zijn samengesteld aan de hand van de ons bekende gegevens en afbeeldingen. Samen met de artist impressions geven zij een indruk van de toekomstige situatie. Zij pretenderen niet een exacte weergave te zijn van het uiteindelijke product. Rechten kunnen dan ook niet aan deze presentatie of bijlagen ontleend worden. Eventueel genoemde of getoonde afmetingen zijn indicatief.
Let op: het door de ontwikkelaar opgegeven gebruiksoppervlak kan afwijken van het daadwerkelijke woonoppervlak! Bij het gebruiksoppervlak kunnen ook bergzolders, bergingen of andere ruimten zijn gerekend, terwijl deze volgens de NEN2580 niet als woonoppervlak zijn aan te merken. Afhankelijk van de mogelijkheden kunt u bijvoorbeeld voor een bergzolder een dakraam toepassen, waardoor deze ruimte eventueel alsnog als woonoppervlak kan worden gerekend. Vraag de makelaar voor meer informatie en eventuele mogelijkheden.
Kenmerken
Overdracht
- Aangeboden sinds
- Aanvaarding
- In overleg
- Vraagprijs
- € 250.000 kosten koper
- Vraagprijs per m²
- € 3.731
- Status
- Verkocht onder voorbehoud
Bouw
- Soort appartement
- Portiekflat (appartement)
- Soort bouw
- Nieuwbouw
- Bouwjaar
- 2024
Oppervlakten en inhoud
- Gebruiksoppervlakten
- Wonen
- 67 m²
- Gebouwgebonden buitenruimte
- 7 m²
- Inhoud
- 206 m³
Indeling
- Aantal kamers
- 2 kamers (1 slaapkamer)
- Aantal badkamers
- 1 badkamer
- Badkamervoorzieningen
- Douche, toilet, en wastafel
- Aantal woonlagen
- 1 woonlaag
- Voorzieningen
- Lift en mechanische ventilatie
- Gelegen op
- 1e woonlaag
Energie
- Energielabel
- Isolatie
- Volledig geïsoleerd
Buitenruimte
- Ligging
- In woonwijk
- Tuin
- Zonneterras
Bergruimte
- Schuur/berging
- Inpandig
Parkeergelegenheid
- Soort parkeergelegenheid
- Op eigen terrein
Foto's 14
© 2001-2026 funda













