
Omschrijving
Gelegen in een rustig deel van het bruisende stadscentrum van Leeuwarden treft u dit leuke tweekamerappartement met balkon. Met een woonoppervlakte van 59 m², een fijn balkon, een separate berging en een energielabel C biedt dit appartement een ideale woonplek voor wie centraal én comfortabel wil wonen.
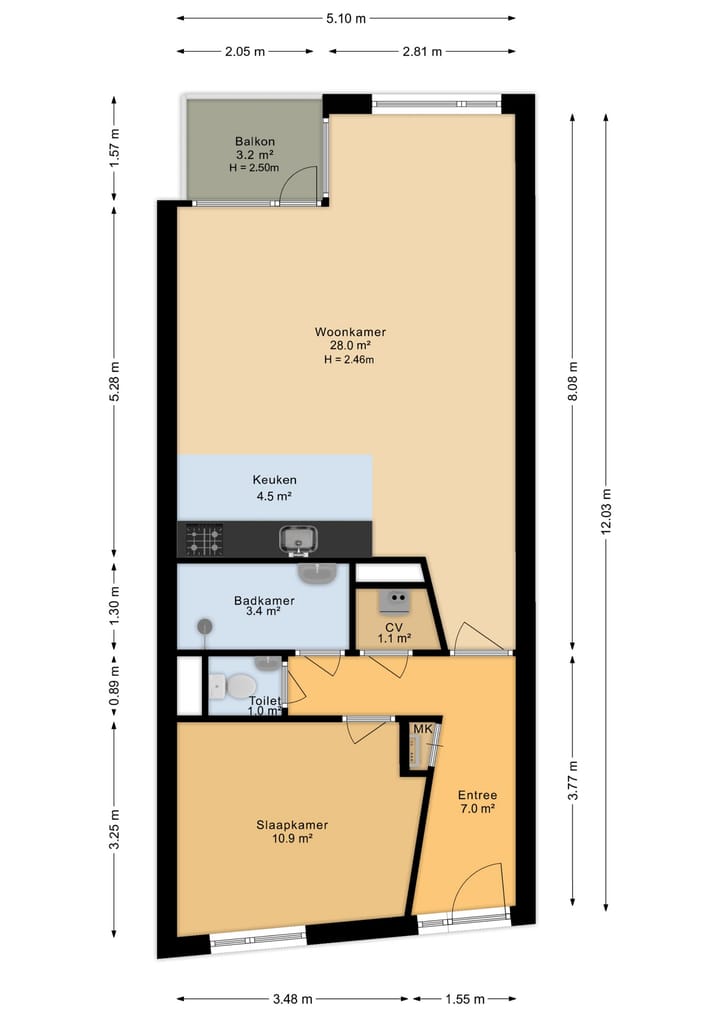
U komt binnen via de ruime entree met meterkast. Vanuit hier bereikt u de woonkamer van circa 28 m², die dankzij de grote raampartijen een prettige lichtinval heeft en toegang biedt tot het balkon (circa 3 m²) op het zuiden, waar u heerlijk kunt genieten van de zon. De open keuken bevindt zich in de woonkamer. Verder beschikt het appartement over een ruime slaapkamer van circa 11 m², een badkamer met douche, wastafel en wasmachineaansluiting, een separaat toilet en een bergruimte met cv-opstelling.
De praktische externe berging (circa 6 m²) met elektra bevindt zich op de begane grond. Parkeren is mogelijk via een vergunning of in een nabijgelegen parkeergarage.
Het appartement maakt onderdeel uit van een goed onderhouden complex met een gezonde en actieve Vereniging van Eigenaars. U kijkt uit over de rustige Minnemastraat, terwijl u binnen enkele minuten lopen de winkels, horeca en grachten van de binnenstad bereikt.
Indeling o.a.
Complex:
- beveiligde entree met belpaneel
- portiek
- lift
- inpandige berging met elektra (ca. 6 m²)
Indeling van het appartement:
- ruime entree/hal met meterkast
- separaat toilet met fonteintje
- badkamer met douche, wastafel en wasmachineaansluiting
- ruime woonkamer met open keuken (ca. 28 m²) en toegang tot balkon
- ruime slaapkamer van ca. 11 m²
- berging met cv-opstelling
Algemeen:
- gebruiksoppervlakte wonen 59 m²
- balkon op het zuidwesten van 3 m²
- separate berging op de begane grond (ca. 6 m²)
- warm water en verwarming middels een cv-ketel Remeha 24 C, eigendom
- VvE bijdrage € 132,50, - per maand
Kenmerken
Overdracht
- Laatste vraagprijs
- € 199.000 kosten koper
- Vraagprijs per m²
- € 3.373
- Status
- Verkocht
- Bijdrage VvE
- € 132,50 per maand
Bouw
- Soort appartement
- Galerijflat (appartement)
- Soort bouw
- Bestaande bouw
- Bouwjaar
- 1998
- Specifiek
- Monument
- Soort dak
- Plat dak bedekt met bitumineuze dakbedekking
- Toegankelijkheid
- Toegankelijk voor mensen met een beperking en toegankelijk voor ouderen
Oppervlakten en inhoud
- Gebruiksoppervlakten
- Wonen
- 59 m²
- Gebouwgebonden buitenruimte
- 3 m²
- Externe bergruimte
- 6 m²
- Inhoud
- 199 m³
Indeling
- Aantal kamers
- 2 kamers (1 slaapkamer)
- Aantal badkamers
- 1 badkamer en 1 apart toilet
- Badkamervoorzieningen
- Douche en wastafel
- Aantal woonlagen
- 1 woonlaag
- Voorzieningen
- Glasvezelkabel, mechanische ventilatie, en TV kabel
- Gelegen op
- 2e woonlaag
Energie
- Energielabel
- Isolatie
- Dakisolatie, dubbel glas, HR-glas, muurisolatie en vloerisolatie
- Verwarming
- Cv-ketel
- Warm water
- Cv-ketel
- Cv-ketel
- Remeha 24C (gas gestookt combiketel uit 2019, eigendom)
Kadastrale gegevens
- LEEUWARDEN A 2684
- Kadastrale kaart
- Eigendomssituatie
- Volle eigendom
Buitenruimte
- Ligging
- Aan rustige weg, in centrum en in woonwijk
- Balkon/dakterras
- Balkon aanwezig
Bergruimte
- Schuur/berging
- Vrijstaande stenen berging
- Voorzieningen
- Elektra
- Isolatie
- Geen isolatie
Parkeergelegenheid
- Soort parkeergelegenheid
- Betaald parkeren, openbaar parkeren, parkeergarage en parkeervergunningen
VvE checklist
- Inschrijving KvK
- Ja
- Jaarlijkse vergadering
- Ja
- Periodieke bijdrage
- Ja (€ 132,50 per maand)
- Reservefonds aanwezig
- Ja
- Onderhoudsplan
- Ja
- Opstalverzekering
- Ja
Foto's 34
© 2001-2026 funda

































