
Omschrijving
In de Componistenbuurt vind je deze sfeervolle, moderne jaren 30 woning, op een heerlijke plek in een rustige woonwijk.
Hier woon je in één van de meest gewilde wijken van Leeuwarden, op loopafstand van supermarkt en bakker. Op de fiets ben je binnen een paar minuten in de binnenstad. In deze brede straat is genoeg parkeergelegenheid voor de deur.
De belangrijkste kenmerken van deze sfeervolle woning zijn o.a.: de mooie woonkamer met erker en openslaande tuindeuren naar de achtertuin. Grotendeels gerenoveerd rond 2023 waarbij destijds vele zaken vernieuwd. Deze eindwoning staat op een perceel van 103 m² eigen grond met een achtertuin op het noordoosten met achterom. In de achtertuin is een berging aanwezig van ca. 7 m².
Wees er snel bij en kom een kijkje nemen in deze parel !
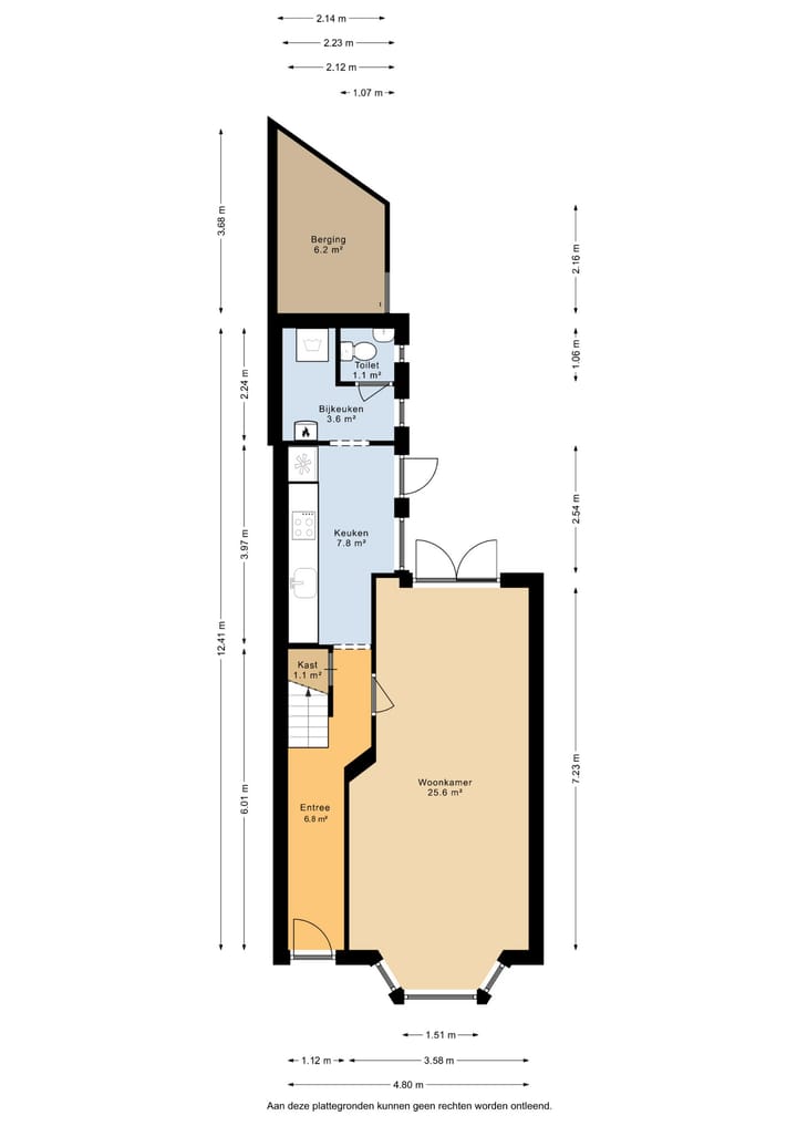
Indeling:
Begane grond:
- entree/hal, moderne groepenkast
- gang met trapopgang en kelderkast
- ruime lichte, zonnige woonkamer (type doorzonkamer) met fraaie in visgraat gelegde PVC vloer, tuindeuren en erker (plafondhoogte ca. 2,78 m)
- dichte, ruime keukenruimte met gerenoveerde keuken inrichting voorzien van diverse inbouwapparatuur, waaronder kookplaat, koelkast en oven.
- vanuit de keuken is er een loopdeur naar de tuin
- bijkeuken met opstelling witgoed en CV-Ketel
- toilet met hangend closet en fontein
Verdieping:
- ruime overloop met deur naar plat dak
- separate toiletruimte
- 1e ruime slaapkamer aan achterzijde met vaste kast (afm. 2,78 m x 2,76 m)
- 2e ruime slaapkamer aan voorzijde met vaste kast (afm. 3,58 m x 2,76 m)
- nette badkamer met douchehoek, ligbad en wastafel
- vaste trap naar..
Zolderverdieping:
- overloop met bergruimte en thuiswerkplek
- 3e zeer ruime slaapkamer met twee dakramen en bergruimte
Tuin:
- zonnige, privacy biedende voortuin op het zuidwesten
- achtertuin op het noordoosten gelegen van circa 15 m²
- achterom via steeg naast de woning
Algemeen:
- verwarming en warm water middels REMEHA HR CV-ketel 2006 (eigendom)
- isolatie: grotendeels dubbel glas en dakisolatie
- eigen grond, perceel 103 m²
Kenmerken
Overdracht
- Laatste vraagprijs
- € 295.000 kosten koper
- Vraagprijs per m²
- € 2.950
- Status
- Verkocht
Bouw
- Soort woonhuis
- Eengezinswoning, eindwoning
- Soort bouw
- Bestaande bouw
- Bouwjaar
- 1930
- Soort dak
- Zadeldak bedekt met pannen
Oppervlakten en inhoud
- Gebruiksoppervlakten
- Wonen
- 100 m²
- Externe bergruimte
- 6 m²
- Perceel
- 103 m²
- Inhoud
- 352 m³
Indeling
- Aantal kamers
- 5 kamers (3 slaapkamers)
- Aantal badkamers
- 1 badkamer en 1 apart toilet
- Badkamervoorzieningen
- Douche, ligbad, en wastafel
- Aantal woonlagen
- 3 woonlagen
- Voorzieningen
- Dakraam en glasvezelkabel
Energie
- Energielabel
- Isolatie
- Dakisolatie, dubbel glas en grotendeels dubbelglas
- Verwarming
- Cv-ketel
- Warm water
- Cv-ketel
- Cv-ketel
- REMEHA (gas gestookt combiketel uit 2006, eigendom)
Kadastrale gegevens
- LEEUWARDEN D 3547
- Kadastrale kaart
- Oppervlakte
- 103 m²
- Eigendomssituatie
- Volle eigendom
Buitenruimte
- Ligging
- Aan rustige weg en in woonwijk
- Tuin
- Achtertuin en voortuin
- Voortuin
- 25 m² (4,80 meter diep en 5,30 meter breed)
- Ligging tuin
- Gelegen op het zuidwesten
Bergruimte
- Schuur/berging
- Aangebouwde houten berging
- Voorzieningen
- Elektra
Parkeergelegenheid
- Soort parkeergelegenheid
- Openbaar parkeren
Foto's 40
© 2001-2026 funda







































