Dit huis op Funda: https://www.funda.nl/detail/koop/leeuwarden/huis-bildtsestraat-42/43992525/

Omschrijving
Royale tussenwoning in Leeuwarden met woonoppervlakte van 158 m²!
Deze woning in Leeuwarden biedt een unieke kans om een woning naar eigen wens in te richten. Oorspronkelijk gebruikt als fysiopraktijk, is de woning nu volledig geschikt voor bewoning en biedt volop mogelijkheden voor een flexibele indeling.
Op de begane grond komt u via de entree binnen in een hal die toegang biedt tot de woonkamer. In de hal bevindt zich de kelder, het toilet en de trapopgang naar de eerste verdieping. De woonkamer heeft een mooie erker aan de voorzijde en openslaande deuren naar de achtertuin gelegen op het zuidwesten. In deze ruimte kan de keuken worden geplaatst. Aan het einde van de hal bevindt zich een kamer met aansluitend de bijkeuken. In deze kamer zou ook een keuken kunnen worden geplaatst. Via de extra kamer komt u in de bijkeuken/entree die beschikt over een deur naar de achtertuin.
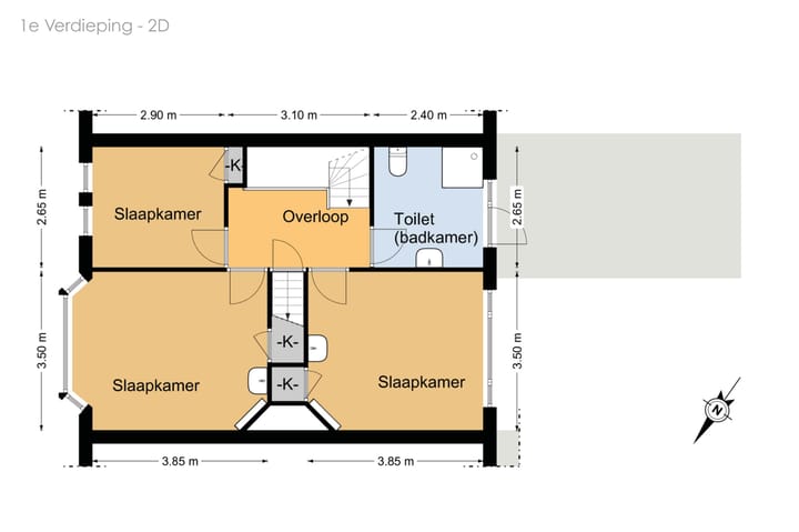
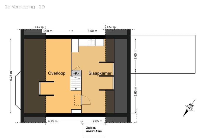
Op de eerste verdieping beschikt de woning over een overloop, 3 slaapkamers en de badkamer. Hiervan zijn 2 slaapkamers voorzien van een wastafel en een schoorsteenmantel. Alle slaapkamers hebben inbouwkasten. De badkamer is uitgerust met een wastafel, toilet en heeft een deur die naar het dak leidt. De tweede verdieping bestaat uit een overloop en een slaapkamer die is voorzien van een keukenblok. Deze ruimte is tevens naar eigen inzicht in te delen.
De achtertuin is gelegen op het zuidwesten en heeft een vrijstaande houten berging. Voor de woning is er openbare parkeergelegenheid. Eventueel is hier de mogelijkheid om twee parkeervergunningen voor aan te vragen. De woning heeft een eigen achterom welke via een steeg is te bereiken.
Bijzonderheden:
- Royale tussenwoning
- Woonoppervlakte 158 m²
- Tuin gelegen op het zuidwesten
- 4 slaapkamers
- Vrijstaande houten berging
- Parkeergelegenheid voor de woning (mogelijkheid om als bewoner twee vergunningen te krijgen hiervoor)
- Eigen achterom
- Geen keuken op de begane grond
Locatie:
Leeuwarden is een stad met een rijke historie en een dynamisch karakter. De stad combineert monumentale charme met moderne voorzieningen. Leeuwarden beschikt over een sfeervol stadscentrum met een ruim aanbod aan winkels, horecagelegenheden en culturele voorzieningen zoals musea, theaters en bioscopen. Op het gebied van onderwijs en zorg is Leeuwarden goed uitgerust. Er zijn diverse basisscholen, middelbare scholen en meerdere instellingen voor hoger onderwijs. Daarnaast beschikt de stad over uitstekende medische voorzieningen, waaronder het Medisch Centrum Leeuwarden (MCL). Leeuwarden is centraal gelegen binnen Friesland en goed bereikbaar via zowel weg als spoor. Dankzij de ligging aan de A31 en A32 en het centraal station is er een directe verbinding met steden als Groningen, Zwolle en Amsterdam. Ook is er goede toegang tot het Friese merengebied en de Waddenkust.
Aan deze presentatie kunnen geen rechten worden ontleend.
Toelichtingsclausule NEN2580
De Meetinstructie is gebaseerd op de NEN2580. De Meetinstructie is bedoeld om een meer eenduidige manier van meten toe te passen voor het geven van een indicatie van de gebruiksoppervlakte. De Meetinstructie sluit verschillen in meetuitkomsten niet volledig uit, door bijvoorbeeld interpretatieverschillen, afrondingen of beperkingen bij het uitvoeren van de meting.
Kenmerken
Overdracht
- Laatste vraagprijs
- € 390.000 kosten koper
- Vraagprijs per m²
- € 2.468
- Status
- Verkocht
Bouw
- Soort woonhuis
- Eengezinswoning, tussenwoning
- Soort bouw
- Bestaande bouw
- Bouwjaar
- 1934
- Soort dak
- Zadeldak bedekt met pannen
Oppervlakten en inhoud
- Gebruiksoppervlakten
- Wonen
- 158 m²
- Externe bergruimte
- 9 m²
- Perceel
- 182 m²
- Inhoud
- 583 m³
Indeling
- Aantal kamers
- 7 kamers (4 slaapkamers)
- Aantal badkamers
- 1 badkamer
- Badkamervoorzieningen
- Toilet en wastafel
- Aantal woonlagen
- 3 woonlagen en een kelder
- Voorzieningen
- Natuurlijke ventilatie
Energie
- Energielabel
- D
- Isolatie
- Gedeeltelijk dubbel glas
- Verwarming
- Cv-ketel
- Warm water
- Cv-ketel
- Cv-ketel
- Gas gestookt combiketel uit 2025, eigendom
Kadastrale gegevens
- LEEUWARDEN D 6072
- Kadastrale kaart
- Oppervlakte
- 182 m²
- Eigendomssituatie
- Volle eigendom
Buitenruimte
- Ligging
- In woonwijk
- Tuin
- Achtertuin en voortuin
- Achtertuin
- 36 m² (0,09 meter diep en 0,04 meter breed)
- Ligging tuin
- Gelegen op het zuidwesten bereikbaar via achterom
Bergruimte
- Schuur/berging
- Vrijstaande houten berging
Parkeergelegenheid
- Soort parkeergelegenheid
- Openbaar parkeren
Foto's 75
© 2001-2025 funda










































































