Dit huis op Funda: https://www.funda.nl/detail/koop/leeuwarden/huis-braksan-116/43915894/

Omschrijving
Op het schiereiland Braksân, in de wijk Zuiderburen, staat deze ruime hoekwoning met diepe tuin en garage. Met een woonoppervlakte van 127 m² beschikt de woning over drie slaapkamers en een ruime - nog naar wens in te delen - zolder. Het geheel is voorzien van een energielabel A.
Zuiderburen is een kindvriendelijke wijk met diverse voorzieningen, zoals winkels, basisscholen, kinderopvang en sportfaciliteiten, allemaal op loop- en fietsafstand. Ook de binnenstad is binnen afzienbare tijd op de fiets te bereiken en de rondweg bevindt zich nabij.
INDELING
Begane grond:
Overdekte zij-entree naar hal met toilet, trapopgang en toegang tot de inpandige berging. De straatgerichte woonkamer heeft een ruime zithoek, een vaste trapkast en een tuingerichte, open keuken. De keuken is uitgevoerd in een hoekopstelling en voorzien van een vaatwasser (2023).
De 15 meter diepe achtertuin is gelegen op het noorden en beschikt over een ruime overkapping. Daarnaast is er een vrijstaande stenen garage (15,9 m²). De oprit biedt ruimte voor twee auto’s.
Eerste verdieping:
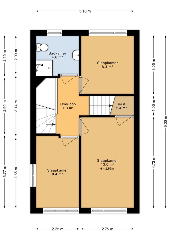
Op de eerste verdieping bevinden zich drie slaapkamers; één ruim van 13 m² en twee slaapkamers van 8,4 m². De badkamer is eenvoudig en is voorzien van een douche, wastafel en toilet.
Zolder:
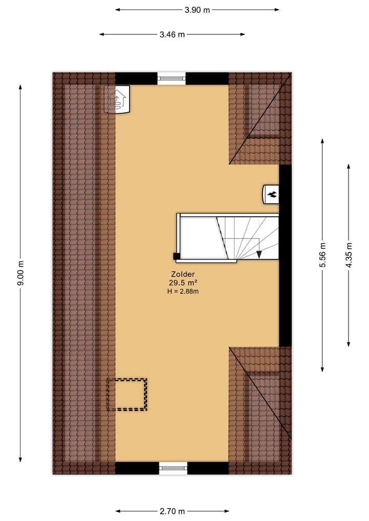
De zolder is bereikbaar via een vaste trap. De zolder is met 29,5 m² erg ruim en nog naar eigen wens in te delen. Op de zolder bevindt zich de CV installatie (december 2024) en de zonneboiler.
Goed om te weten:
- energielabel A
- het perceeloppervlakte is bij benadering (dient nog te worden gesplitst)
- geen vloerbedekking meer in hele woning
- houten kozijnen met HR++ beglazing
- zonneboiler
- 8 zonnepanelen (2022)
Kenmerken
Overdracht
- Laatste vraagprijs
- € 395.000 kosten koper
- Vraagprijs per m²
- € 3.110
- Status
- Verkocht
Bouw
- Soort woonhuis
- Eengezinswoning, hoekwoning
- Soort bouw
- Bestaande bouw
- Bouwperiode
- 2001-2010
- Soort dak
- Zadeldak bedekt met pannen
Oppervlakten en inhoud
- Gebruiksoppervlakten
- Wonen
- 127 m²
- Externe bergruimte
- 16 m²
- Perceel
- 290 m²
- Inhoud
- 463 m³
Indeling
- Aantal kamers
- 5 kamers (4 slaapkamers)
- Aantal badkamers
- 1 badkamer en 1 apart toilet
- Badkamervoorzieningen
- Douche, toilet, en wastafel
- Aantal woonlagen
- 2 woonlagen en een zolder
- Voorzieningen
- Dakraam, TV kabel, en zonnepanelen
Energie
- Energielabel
- A
- Isolatie
- Dakisolatie, HR-glas, muurisolatie en vloerisolatie
- Verwarming
- Cv-ketel
- Warm water
- Cv-ketel en zonneboiler
- Cv-ketel
- HR (gas gestookt combiketel uit 2024, eigendom)
Kadastrale gegevens
- HUIZUM K 1879
- Kadastrale kaart
- Oppervlakte
- 290 m² (deelperceel)
- Eigendomssituatie
- Volle eigendom
Buitenruimte
- Ligging
- In woonwijk
- Tuin
- Achtertuin en voortuin
- Achtertuin
- 107 m² (15,50 meter diep en 8,50 meter breed)
- Ligging tuin
- Gelegen op het noorden bereikbaar via achterom
Bergruimte
- Schuur/berging
- Inpandig
Garage
- Soort garage
- Vrijstaande stenen garage
- Capaciteit
- 1 auto
- Voorzieningen
- Elektra
- Isolatie
- Geen isolatie
Parkeergelegenheid
- Soort parkeergelegenheid
- Op eigen terrein
Foto's 47
© 2001-2025 funda














































