Dit huis op Funda: https://www.funda.nl/detail/koop/leeuwarden/huis-breedstraat-65/43735833/

Omschrijving
In het historisch stadscentrum van Leeuwarden gelegen karakteristieke tussenwoning met een speelse indeling, verdeeld over drie woonlagen. De woning heeft een fraaie monumentale gevel (beschermd stadsgezicht) en verkeert in goede staat van onderhoud; de dakbedekking is twee jaar geleden vernieuwd en dit jaar is de woning buitenom geschilderd.
In 2008 heeft de woning een plaquette gekregen met daarop de geschiedenis van Roosje Cohen, die ooit opgroeide in deze woning. De woning maakt onderdeel uit van de Route Bekende Leeuwarders.
Door de unieke ligging midden in het centrum bevinden zich vele voorzieningen als restaurants, de winkels, Stadsschouwburg De Harmonie en een supermarkt op loopafstand. Stadspark de Prinsentuin ligt nabij en ook met de auto is de woning goed bereikbaar. Parkeren kan onder andere op de naastgelegen Nieuweburen.
INDELING
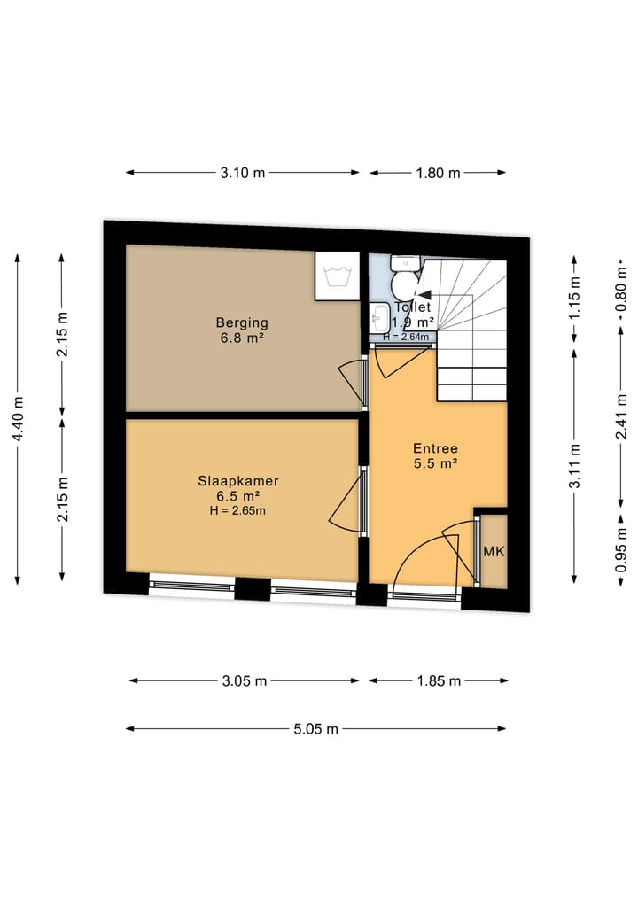
Begane grond:
Entree met hal, meterkast, toilet en trapopgang naar de eerste verdieping. Links van de hal, aan de voorzijde van de woning, bevindt zich een slaap-/werkkamer (6,5 m2) met grote raampartij. Aan de achterzijde bevindt zich een ruime berging met onder andere de witgoedaansluitingen.
Eerste verdieping:
Overloop van waaruit toegang tot de woonkamer met open keuken. De woonkamer beschikt over grote raampartijen, een schouw en heeft een laminaatvloer. De keuken is in een hoekopstelling en is uitgerust met diverse inbouwapparatuur: 4-pits gasfornuis, afzuigkap, koelkast met vriesvakje, combi oven en vaatwasser.
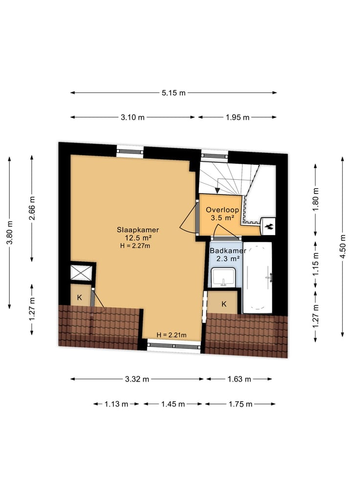
Tweede verdieping:
Overloop van waaruit toegang tot de badkamer en een ruime slaapkamer (12,5 m2) met twee inbouwkasten. De badkamer beschikt over een ligbad en een wastafelmeubel.
Goed om te weten:
- 65 m2 woonoppervlak verdeeld over drie woonlagen
- twee slaapkamers
- compacte woning waardoor relatief lage energielasten
- dakbedekking in 2022 vernieuwd
- schilderwerk buitenom 2024
- gelegen in de historische binnenstad van Leeuwarden
- beschermd stadsgezicht
- erfpachtcanon € 19,60 per maand
Kenmerken
Overdracht
- Laatste vraagprijs
- € 239.000 kosten koper
- Vraagprijs per m²
- € 3.677
- Status
- Verkocht
Bouw
- Soort woonhuis
- Eengezinswoning, tussenwoning
- Soort bouw
- Bestaande bouw
- Bouwjaar
- 1900
- Specifiek
- Beschermd stads- of dorpsgezicht
- Soort dak
- Samengesteld dak
Oppervlakten en inhoud
- Gebruiksoppervlakten
- Wonen
- 65 m²
- Perceel
- 25 m²
- Inhoud
- 230 m³
Indeling
- Aantal kamers
- 3 kamers (2 slaapkamers)
- Aantal badkamers
- 1 badkamer en 1 apart toilet
- Badkamervoorzieningen
- Ligbad, wastafel, en wastafelmeubel
- Aantal woonlagen
- 3 woonlagen
- Voorzieningen
- Natuurlijke ventilatie en TV kabel
Energie
- Energielabel
- F
- Verwarming
- Cv-ketel
- Warm water
- Cv-ketel
- Cv-ketel
- Atag HR A244c (gas gestookt combiketel uit 2018, eigendom)
Kadastrale gegevens
- LEEUWARDEN A 2165
- Kadastrale kaart
- Oppervlakte
- 25 m²
- Eigendomssituatie
- Gemeentelijk eigendom belast met erfpacht
- Lasten
- € 235,00 per jaar
Buitenruimte
- Ligging
- Aan rustige weg en in centrum
Parkeergelegenheid
- Soort parkeergelegenheid
- Parkeervergunningen
Foto's 43
© 2001-2025 funda










































