Dit huis op Funda: https://www.funda.nl/detail/koop/leeuwarden/huis-emmaplein-14/43756260/

Omschrijving
Op donderdag 7 november tussen 14:00 en 15:00 uur is het mogelijk om deze woning te komen bekijken tijdens het open huis. Ben je geïnteresseerd? Neem dan contact met ons op om je aan te melden!
Op zoek naar een herenhuis waar je je eigen draai aan kunt geven? Deze woning staat op een rustige woonstand in de fraaie Oranjewijk. Het is een ruime woning met veel authentieke elementen. Op loopafstand van het stadscentrum en in de buurt van allerlei voorzieningen.
BEGANE GROND
Bij het betreden van de stadse voortuin en het naderen van de prachtige massieve houten voordeur, word je verwelkomd door een oase van authentieke elementen. Zodra je de hal binnenkomt, valt je oog meteen op de imposante trap naar de eerste verdieping. Vanuit deze centrale hal leiden verschillende deuren naar de woonkamer, eetkamer en keuken, wat zorgt voor een harmonieuze indeling van de begane grond. Aan het einde van de hal, aan de rechterkant, bevindt zich een deur naar het toilet.
De woon- en eetkamer zijn met elkaar verbonden door karakteristieke en-suite deuren. In de woonkamer worden de voorkant elegant omlijst door glas-in-loodramen, terwijl de eetkamer een warme sfeer ademt dankzij de aanwezigheid van een knusse houtkachel. De plafonds in deze woon- en eetkamer hebben bijna een hoogte van 3,50 meter. Dit zorgt ervoor dat deze kamers een ruim gevoel geven.
Aan de achterzijde van de woning strekt zich een serre uit, die naadloos aansluit op de eetkamer. Achter de keuken bevindt zich een berging die toegang biedt tot de achtertuin.
EERSTE VERDIEPING
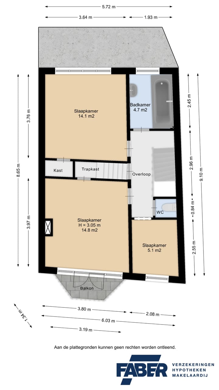
Vanaf de overloop leidt een gang naar drie slaapkamers en de badkamer. Een van de slaapkamers heeft een eigen balkon met uitzicht op de serene en prachtige omgeving aan de voorzijde van de woning. Deze kamer, evenals de achterste slaapkamer, is even groot en heeft beide toegang tot een eigen kast. De derde slaapkamer bevindt zich aan de voorzijde van de woning en profiteert van overvloedig daglicht dankzij de grote ramen.
De badkamer is prettig ingericht met een ligbad en een wastafel met meubel. Op de overloop bevindt zich ook nog een apart toilet dat voor iedereen toegankelijk is.
TWEEDE VERDIEPING
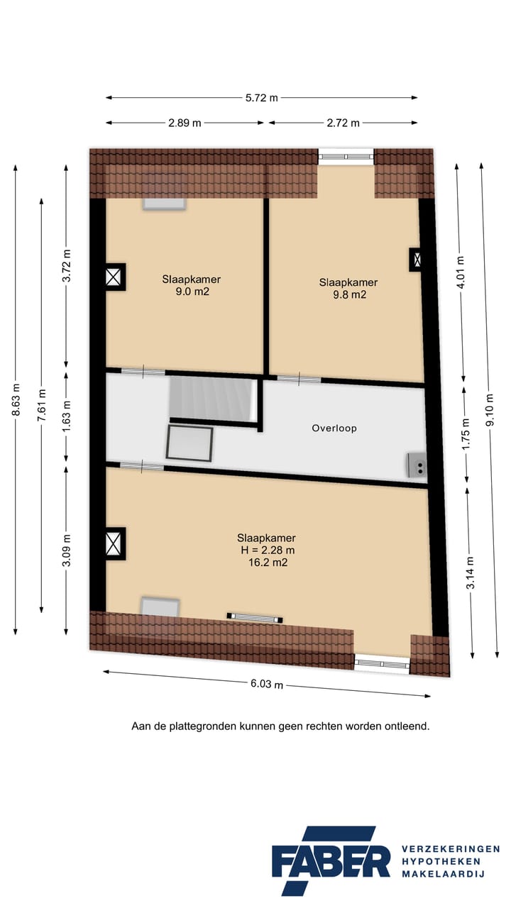
De overloop op deze verdieping verbindt drie slaapkamers. Beide slaapkamers aan de westkant zijn voorzien van ramen, terwijl de derde kamer bijzonder ruim is en meerdere ramen heeft, wat zorgt voor een overvloed aan natuurlijk licht. Dankzij de overvloed aan slaapkamers in deze woning bestaat ook de mogelijkheid om een of meer daarvan om te bouwen tot bijvoorbeeld een werkkamer, hobbyruimte of een kamer die voldoet aan andere persoonlijke behoeften.
BUITENOMGEVING
De voortuin is zeer groen en biedt een ruime doorgang naar de voordeur. De achtertuin van de woning ligt op het westen en strekt zich uit over ongeveer 20m2, waardoor er genoeg ruimte is voor een comfortabele loungeset of een prachtige bloementuin. De mogelijkheden zijn eindeloos!
OMGEVING
Het karakteristieke woonhuis is gelegen aan het geliefde Emmaplein, op wandelafstand (10 minuten) van hartje centrum en toch is het rustig wonen. Daarnaast is het goed bereikbaar met de auto en parkeer je makkelijk voor de deur.
BIJZONDERHEDEN
+ Kluswoning;
+ 161m2 woonoppervlakte;
+ Prachtige en-suite deuren op de begane grond;
+ Hoge plafonds;
+ Authentieke elementen;
+ Centrale locatie;
+ Zes slaapkamers verdeeld over twee bovenste verdiepingen;
+ Woning met veel potentie;
+ As-is-where-is-clausule van toepassing.
Disclaimer
Deze informatie is door ons met de nodige zorgvuldigheid samengesteld. Onzerzijds wordt echter geen enkele aansprakelijkheid aanvaard voor enige onvolledigheid, onjuistheid of anderszins, dan wel de gevolgen daarvan. Alle opgegeven maten en oppervlakten zijn indicatief.
Toelichtingsclausule NEN2580
De Meetinstructie is gebaseerd op de NEN2580. De Meetinstructie is bedoeld om een meer eenduidige manier van meten toe te passen voor het geven van een indicatie van de gebruiksoppervlakte. De Meetinstructie sluit verschillen in meetuitkomsten niet volledig uit, door bijvoorbeeld interpretatieverschillen, afrondingen of beperkingen bij het uitvoeren van de meting
Kenmerken
Overdracht
- Laatste vraagprijs
- € 315.000 kosten koper
- Vraagprijs per m²
- € 1.957
- Status
- Verkocht
Bouw
- Soort woonhuis
- Herenhuis, tussenwoning
- Soort bouw
- Bestaande bouw
- Bouwjaar
- 1909
- Specifiek
- Kluswoning
- Soort dak
- Plat dak bedekt met bitumineuze dakbedekking
Oppervlakten en inhoud
- Gebruiksoppervlakten
- Wonen
- 161 m²
- Overige inpandige ruimte
- 3 m²
- Gebouwgebonden buitenruimte
- 2 m²
- Perceel
- 108 m²
- Inhoud
- 636 m³
Indeling
- Aantal kamers
- 9 kamers (6 slaapkamers)
- Aantal badkamers
- 1 badkamer en 2 aparte toiletten
- Badkamervoorzieningen
- Ligbad en wastafel
- Aantal woonlagen
- 3 woonlagen
- Voorzieningen
- Dakraam, glasvezelkabel, en natuurlijke ventilatie
Energie
- Energielabel
- Isolatie
- Geen isolatie
- Verwarming
- Cv-ketel en houtkachel
- Warm water
- Cv-ketel
- Cv-ketel
- Remeha Avanta 28c (gas gestookt combiketel uit 2021, eigendom)
Kadastrale gegevens
- LEEUWARDEN G 8523
- Kadastrale kaart
- Oppervlakte
- 108 m²
- Eigendomssituatie
- Volle eigendom
Buitenruimte
- Ligging
- Aan rustige weg en in woonwijk
- Tuin
- Achtertuin en voortuin
- Achtertuin
- 17 m² (3,00 meter diep en 5,50 meter breed)
- Ligging tuin
- Gelegen op het westen
Parkeergelegenheid
- Soort parkeergelegenheid
- Parkeervergunningen
Foto's 47
© 2001-2026 funda














































