Dit huis op Funda: https://www.funda.nl/detail/koop/leeuwarden/huis-essenstraat-45/43277830/

Essenstraat 458924 HE LeeuwardenHeechterp
€ 182.500 k.k.
BlikvangerKeurige tussenwoning in opbloeiende wijk!
Omschrijving
Een plek waar iedereen zicht thuis voelt!
Heechterp vernieuwt! Is in volle gang. De komende jaren ondergaat de wijk een serieuze upgrade. Er worden 24 flats vervangen door een mix van nieuwe woningen en er komt meer groen in de vorm van parkzones en hofjes.
Aan de noordzijde van de wijk grenzend aan de nieuw geplande de parkzone langs de Eikenstraat mogen wij aan de Essenstraat deze tussenwoning te koop aan bieden. De woning heeft een fijne open indeling met een eigentijds keukenblok, tuingerichte woonkamer en 3 ruime slaapkamers.
De flat aan de voorzijde zal plaats gaan maken voor parkeerplaatsen en groen, waardoor het nog aantrekkelijker zal worden om hier te wonen.
Nog een voordeel aan de wijkvernieuwing is de mogelijkheid om als bewoner je aan te sluiten aan het nog aan te leggen warmtenet in de wijk.
Meer informatie over de plannen en data: woning:
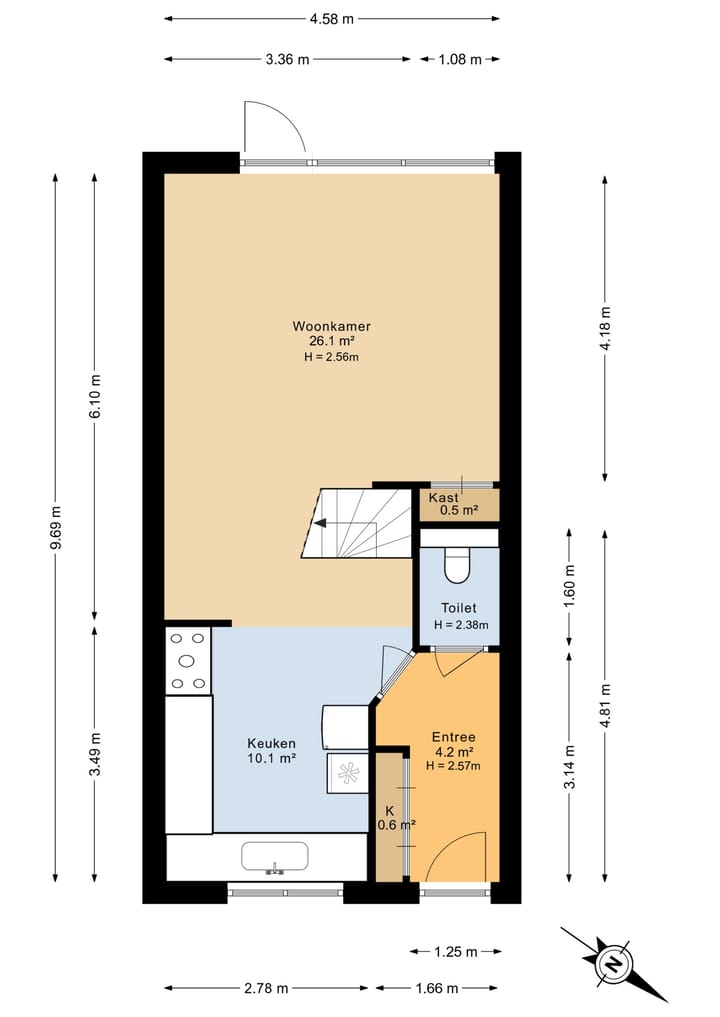
Begane grond: entree/hal met bergkast, meterkast en toilet, open keuken in hoekopstelling, vaste trap naar 1e verdieping, tuingerichte woonkamer met deur naar de achtertuin. De achtertuin bevindt zich op het zonnige westen en beschikt over een houten berging met overkapping en achterom.
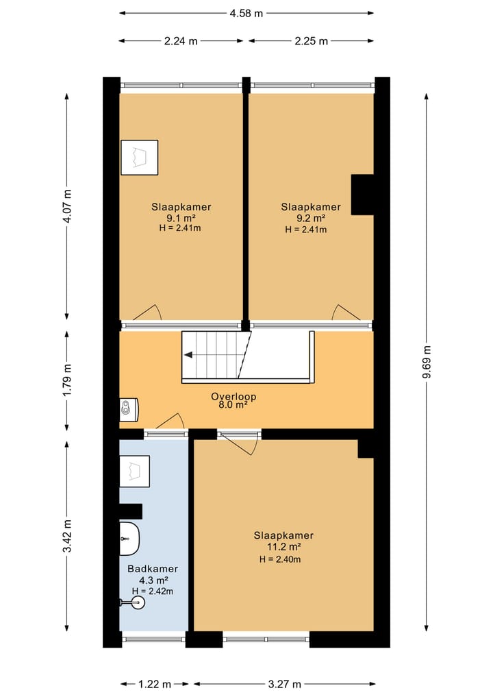
1e verdieping: overloop met c.v. opstelling, 3 ruime slaapkamers en badkamer met wasmachine opstelling, wastafel en douche.
Algemeen
In de wijk zijn diverse voorzieningen aanwezig als een supermarkt, een basisschool en winkelpleinen het Cambuurplein en De Centrale, liggen op loopafstand. Aan de Noordzijde van de wijk wordt aan het einde van het jaar een nieuwe supermarkt geopend. Het centrum is binnen enkele minuten fietsen bereikbaar en de rondweg is nabij.
Kenmerken
Overdracht
- Aangeboden sinds
- Aanvaarding
- In overleg
- Vraagprijs
- € 182.500 kosten koper
- Vraagprijs per m²
- € 2.051
- Status
- Beschikbaar
Bouw
- Soort woonhuis
- Eengezinswoning, tussenwoning
- Soort bouw
- Bestaande bouw
- Bouwjaar
- 1961
- Soort dak
- Plat dak bedekt met bitumineuze dakbedekking
Oppervlakten en inhoud
- Gebruiksoppervlakten
- Wonen
- 89 m²
- Externe bergruimte
- 7 m²
- Perceel
- 100 m²
- Inhoud
- 299 m³
Indeling
- Aantal kamers
- 4 kamers (3 slaapkamers)
- Aantal badkamers
- 1 badkamer en 1 apart toilet
- Badkamervoorzieningen
- Douche en wastafel
- Aantal woonlagen
- 2 woonlagen
Energie
- Energielabel
- C
- Verwarming
- Cv-ketel
- Warm water
- Cv-ketel
- Cv-ketel
- Gas gestookt uit 2014, huur
Kadastrale gegevens
- LEEUWARDEN F 7438
- Kadastrale kaart
- Oppervlakte
- 100 m²
- Eigendomssituatie
- Volle eigendom
Buitenruimte
- Ligging
- In woonwijk
- Tuin
- Achtertuin
- Achtertuin
- 27 m² (8,73 meter diep en 4,68 meter breed)
- Ligging tuin
- Gelegen op het zuidwesten bereikbaar via achterom
Bergruimte
- Schuur/berging
- Vrijstaande houten berging
Foto's 53
Plattegronden 4
© 2001-2025 funda
























































