
Omschrijving
Op mooie woonstand in de gewilde woonwijk "Westeinde" en met de achtertuin aan het water bieden wij te koop aan deze RUIME en GOED ONDERHOUDEN TUSSENWONING. De woning is aan de achterkant uitgebouwd en heeft in totaal 4 slaapkamers (met de mogelijkheid voor een 5e), een fraai aangelegde achtertuin op het westen welke grenst aan het water en een grote vrijstaande bergschuur tegenover de woning. Er zijn 14 zonnepanelen (300WP per paneel) en er is dak-, muur- en glasisolatie aanwezig. Het energielabel is A, wat betekent dat u profiteert van een hoog niveau van energie-efficiëntie en lagere energiekosten.
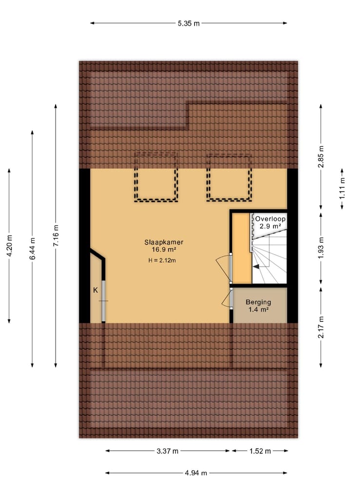
Bekijk de uitvoerige fotopresentatie voor een complete indruk van deze fraaie woning! De plattegrond geeft een duidelijk beeld van de afmetingen per woonlaag. Wil je een bezichtiging aanvragen? Bel dan met ons NVM makelaarskantoor of reageer via franshettema.nl
INDELINGSOMSCHRIJVING
Begane grond: entree/hal, meterkast, berging met vaste kast en witgoedopstelplaats, toiletruimte en trapkast. Ruime, uitgebouwde woonkamer met veel licht, dubbele tuindeuren en mooie zichtlijnen door de tuin met een grote overkapping en ligging aan het water. Moderne, open keuken aan de straatzijde, voorzien van diverse inbouwapparatuur. Grote, vrijstaande berging (540cmx300cm) tegenover de woning.
1e verdieping: overloop met aangrenzend 3 ruime slaapkamers en een grote inloopkast (voorheen de 4e slaapkamer) en moderne badkamer met douche , wastafel en designradiator. Vaste trap naar:
2e verdieping: overloop, berging en knieschotruimte een toegang naar de royale 4e slaapkamer met dubbele dakramen en de opstelplaats voor de CV ketel (hybride).
Bijzonderheden:
- Mooie ligging aan de rand van de woonwijk
- Achtertuin gelegen aan het water
- Aanbouw achterzijde (2008)
- Vrijstaande bergschuur tegenover de woning
- Dak van de woning nageisoleerd (2024)
- Strakke voorgevel van kunststof
- Schilderwerk buitenom professioneel uitgevoerd (2022)
- HR++ glas en thermopane in de kozijnen
- Hybride combiketel (2024)
- Warmwater boiler in de keuken (2024)
- Meterkast vernieuwd in 2024
- Moderne inbouwapparatuur in de keuken (2024)
Over de wijk "Westeinde" (bron: Wikipedia):
Westeinde is een buurt in de wijk Westeinde e.o. van de stad Leeuwarden, provincie Friesland (Nederland). De buurt heeft 3885 inwoners en is ontwikkeld in de jaren 70 en 80 van de 20e eeuw.
De buurt heeft een winkelcentrum met een supermarkt, een kapper, een drogisterij, een kledingwinkel en een snackbar. Ook heeft de buurt een bejaardentehuis en twee scholen voor voortgezet onderwijs (Piter Jelles Montessori en Piter Jelles !mpulse) waar ook een tafeltennisvereniging gevestigd is. Het basisonderwijs bevindt zich in de naastgelegen buurt het Valeriuskwartier. De buurt wordt aan de zuid- en noordzijde begrensd door een katholieke en algemene begraafplaats. Er is een actieve wijkvereniging, waarvan ongeveer 80% van de bewoners lid is. De straten in de buurt zijn vernoemd naar Friese schrijvers en hebben dus een Friese naam (Douwe Kalmaleane of Jan Piebengawei). Ten slotte kent de wijk een stadsboer. Boer Tamminga resideert aan de noordwestzijde van de wijk met een veestapel van ongeveer 350 dieren.
Disclaimer
Deze informatie is door ons met de nodige zorgvuldigheid samengesteld. Onzerzijds wordt echter geen enkele aansprakelijkheid aanvaard voor enige onvolledigheid, onjuistheid of anderszins, dan wel de gevolgen daarvan. Alle opgegeven maten en oppervlakten zijn indicatief.
Toelichtingsclausule NEN2580
De Meetinstructie is gebaseerd op de NEN2580. De Meetinstructie is bedoeld om een meer eenduidige manier van meten toe te passen voor het geven van een indicatie van de gebruiksoppervlakte. De Meetinstructie sluit verschillen in meetuitkomsten niet volledig uit, door bijvoorbeeld interpretatieverschillen, afrondingen of beperkingen bij het uitvoeren van de meting
Kenmerken
Overdracht
- Laatste vraagprijs
- € 325.000 kosten koper
- Vraagprijs per m²
- € 2.289
- Status
- Verkocht
Bouw
- Soort woonhuis
- Eengezinswoning, tussenwoning
- Soort bouw
- Bestaande bouw
- Bouwjaar
- 1974
- Soort dak
- Zadeldak bedekt met pannen
Oppervlakten en inhoud
- Gebruiksoppervlakten
- Wonen
- 142 m²
- Externe bergruimte
- 16 m²
- Perceel
- 173 m²
- Inhoud
- 488 m³
Indeling
- Aantal kamers
- 6 kamers (4 slaapkamers)
- Aantal badkamers
- 1 badkamer en 1 apart toilet
- Badkamervoorzieningen
- Douche, toilet, en wastafel
- Aantal woonlagen
- 3 woonlagen
- Voorzieningen
- Buitenzonwering, dakraam, glasvezelkabel, schuifpui, TV kabel, en zonnepanelen
Energie
- Energielabel
- A
- Isolatie
- Dakisolatie, dubbel glas, HR-glas en muurisolatie
- Verwarming
- Cv-ketel
- Warm water
- Cv-ketel
- Cv-ketel
- Intergas HR combi compact (gas gestookt combiketel uit 2024, eigendom)
Kadastrale gegevens
- LEEUWARDEN D 9641
- Kadastrale kaart
- Oppervlakte
- 28 m²
- Eigendomssituatie
- Volle eigendom
- LEEUWARDEN D 8229
- Kadastrale kaart
- Oppervlakte
- 126 m²
- Eigendomssituatie
- Volle eigendom
- LEEUWARDEN D 8236
- Kadastrale kaart
- Oppervlakte
- 19 m²
- Eigendomssituatie
- Volle eigendom
Buitenruimte
- Ligging
- Aan water en in woonwijk
- Tuin
- Achtertuin en voortuin
- Achtertuin
- 52 m² (9,50 meter diep en 5,50 meter breed)
- Ligging tuin
- Gelegen op het westen
Bergruimte
- Schuur/berging
- Vrijstaande houten berging
- Voorzieningen
- Elektra
Parkeergelegenheid
- Soort parkeergelegenheid
- Openbaar parkeren
Foto's 51
© 2001-2025 funda


















































