Dit huis op Funda: https://www.funda.nl/detail/koop/leeuwarden/huis-hobbemastraat-48/43881732/

Omschrijving
In de geliefde woonwijk Huizum staat deze mooie jaren '30 tussenwoning met voor- en achtertuin. De woning is zeer goed onderhouden, beschikt over 4 slaapkamers en een moderne badkamer (2020).
Huizum is een gewilde en kindvriendelijke wijk aan de zuidkant van het stadscentrum. De wijk biedt voldoende onderwijs en kinderopvang voorzieningen. In de buurt zijn restaurants, speeltuinen en een grote supermarkt te vinden en op vijf minuten fietsafstand bent u bij winkelgebied De Schrans, met een breed aanbod aan diverse winkels. Het station is op loop-en/of fietsafstand evenals het stadscentrum en de rondweg is nabij. Ook is in de Hobbemastraat het mooie Julianapark te vinden.
INDELING
Begane grond:
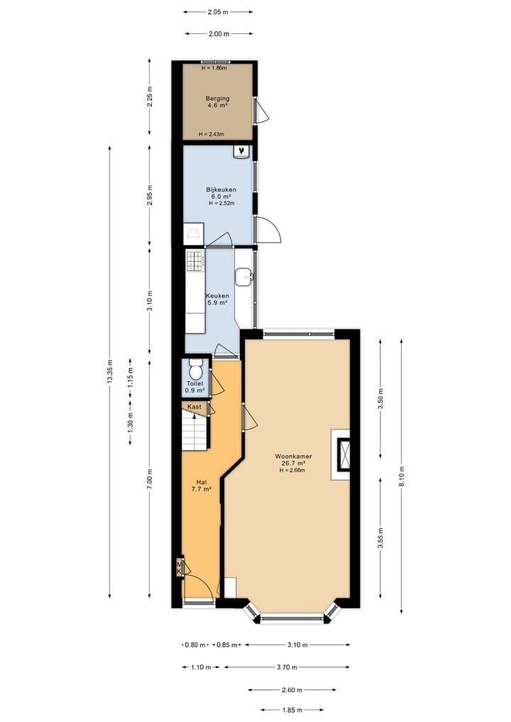
Entree in de hal met toegang tot het toilet, de trapopgang, de moderne keuken en aan de rechterhand gelegen de woonkamer. De doorzonwoonkamer heeft aan de voorzijde een sfeervolle erker en er is een gaskachel met schouw. De dichte keuken uit 2011 is voorzien van moderne apparatuur: een oven, afzuigkap, vaatwasmachine, koelkast en vriezer. Achter de keuken bevindt zich een ruime bijkeuken met wasmachineaansluiting, de cv opstelling en een deur naar de achtertuin.
De achtertuin is gelegen op het noordwesten, is volledig bestraat en beschikt over een aangebouwde ruime berging en een achterom die met de fiets toegankelijk is vanuit de Vermeerstraat.
1e Verdieping:
Overloop met inloopkast en toegang naar alle vertrekken. De meest ruime slaapkamer (ruim 12 m2) is gelegen aan de voorzijde en beschikt over een wastafel en inbouwkast. De naastgelegen volledig betegelde badkamer uit 2020 heeft een inloopdouche, wastafel met meubel en een tweede toilet. De tweede slaapkamer is ruim 9m2, beschikt ook over een inbouwkast en ligt aan de achterzijde. Vanaf de overloop is er toegang tot het dakterras wat fungeert als droogplat.
2e Verdieping:
Toegankelijk via een vaste trap, gelegen tussen de twee slaapkamer. Op deze verdieping bevinden zich een ruime overloop met veel bergruimte en de derde en vierde slaapkamer, elk met een oppervlakte van ongeveer 8 m².
Goed om te weten:
- 116m2 woonoppervlakte
- 4 slaapkamers
- moderne badkamer
- energielabel D
- achtertuin op het noordwesten
- recent schilderwerk (2024)
Kenmerken
Overdracht
- Laatste vraagprijs
- € 295.000 kosten koper
- Vraagprijs per m²
- € 2.543
- Status
- Verkocht
Bouw
- Soort woonhuis
- Eengezinswoning, tussenwoning
- Soort bouw
- Bestaande bouw
- Bouwjaar
- 1930
- Soort dak
- Zadeldak bedekt met bitumineuze dakbedekking en pannen
Oppervlakten en inhoud
- Gebruiksoppervlakten
- Wonen
- 116 m²
- Overige inpandige ruimte
- 5 m²
- Gebouwgebonden buitenruimte
- 12 m²
- Perceel
- 110 m²
- Inhoud
- 423 m³
Indeling
- Aantal kamers
- 5 kamers (4 slaapkamers)
- Aantal badkamers
- 1 badkamer en 1 apart toilet
- Badkamervoorzieningen
- Inloopdouche, toilet, wastafel, en wastafelmeubel
- Aantal woonlagen
- 3 woonlagen
- Voorzieningen
- Balansventilatie, glasvezelkabel, mechanische ventilatie, en TV kabel
Energie
- Energielabel
- D
- Isolatie
- Dakisolatie en dubbel glas
- Verwarming
- Cv-ketel en gaskachels
- Warm water
- Cv-ketel
- Cv-ketel
- Bosch (gas gestookt combiketel uit 2008, eigendom)
Kadastrale gegevens
- HUIZUM A 2846
- Kadastrale kaart
- Oppervlakte
- 110 m²
- Eigendomssituatie
- Volle eigendom
Buitenruimte
- Ligging
- Aan rustige weg en in woonwijk
- Tuin
- Achtertuin en voortuin
- Achtertuin
- 18 m² (7,00 meter diep en 2,50 meter breed)
- Ligging tuin
- Gelegen op het noordwesten bereikbaar via achterom
Bergruimte
- Schuur/berging
- Aangebouwde stenen berging
Parkeergelegenheid
- Soort parkeergelegenheid
- Openbaar parkeren
Foto's 48
© 2001-2025 funda















































