
Omschrijving
Vind je een grote achtertuin-op-het-zuiden een MUST? Kom dan zeker kijken bij deze fijne TUSSENWONING in de gewilde woonwijk Huizum-West.
Want hier kan je met vrienden en familie volop genieten in je eigen 13m diepe achtertuin. De woning zelf verrast je met die kenmerkende dertiger-jaren sfeer en wooncomfort, met een ruime doorzonwoonkamer en in de aanbouw een keukenruimte, bijkeuken en badkamer. Op de 1e verdieping twee ruime slaapkamers en op zolder bergruimte en een kleine slaapkamer.
Verwarming middels een moderne HR-combiketel (2020) en deels voorzien van kunststof kozijnen met dubbele beglazing. Gelegen op een royaal perceel van 112m² eigen grond.
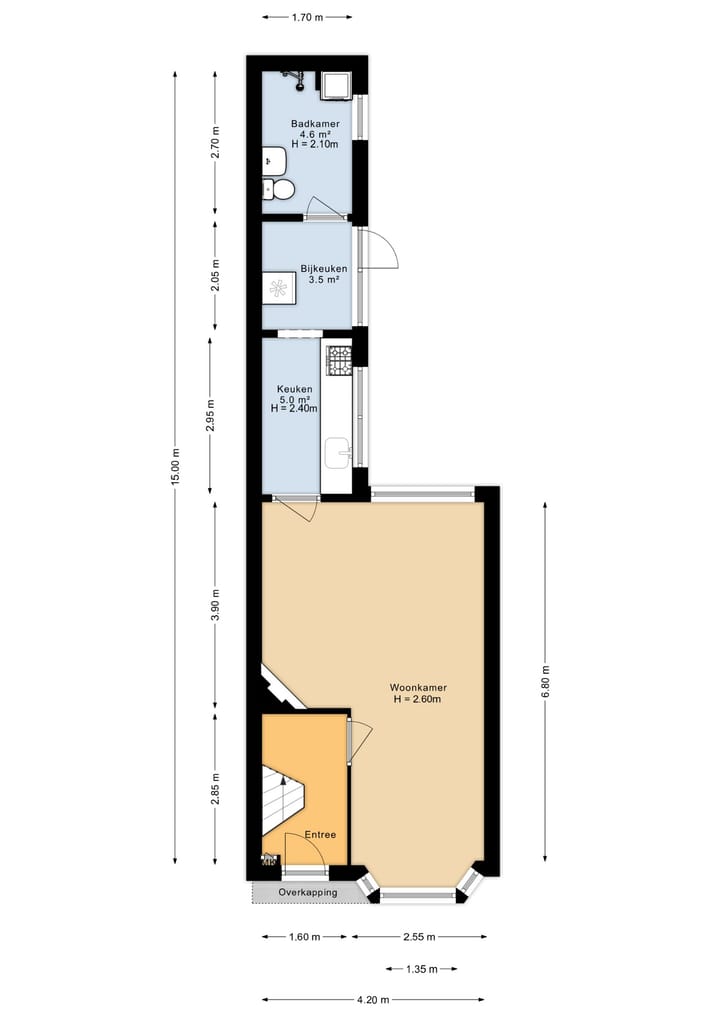
Indeling begane grond:
Hal/entree met meterkast en trapopgang. Een ruime doorzon-woonkamer met erkerkozijn, stoere houten vloer en wanden in moderne frisse tinten. Het plafond is uitgevoerd als 'spanplafond' met een ultra-strakke en smetteloze uitstraling. Vervolgens een keukenruimte met een groot lichtvenster (op het westen) voorzien van een opstelling (2011) met 4-pits gasstel, afzuigkap en oven. Aangrenzend een bijkeuken met opstelling van de CV-combiketel en tenslotte een badkamer voorzien van wastafel, douchehoek en witgoedaansluitingen en een lichtkoepel.
Indeling 1e verdieping:
De overloop geeft toegang tot twee ruime slaapkamers van respectievelijk ca. 12m² en ca. 7m² groot. De voorste slaapkamer profiteert van extra ruimte door de dakkapel. De achterste slaapkamer heeft een recht opgetrokken achtergevel, een sfeervol balkenplafond en toegang tot het plat dak.
Indeling 2e verdieping:
Overloop met bergruimte, dakvenster en radiator. Kleiner slaapkamer met dakvenster en bergruimte achter de knieschotten
Bijzonderheden:
Bitumineuze dakbedekking van aanbouw vernieuwd in 2017. HR-combiketel Intergas Kompakt HRE 28/24A (2020, eigendom). Automatische groepenkast met 8 groepen. Verdieping uitgevoerd in kunststof kozijnen (ca. 2020). Buitenschilderwerk-begane grond uitgevoerd in 2025.
De woonwijk:
Huizum-West is een kindvriendelijke wijk en grenst op loopafstand aan het populaire winkelgebied 'De Schrans', het iets verderop gelegen NS-treinstation en de historische binnenstad van Leeuwarden.
Kenmerken
Overdracht
- Laatste vraagprijs
- € 209.500 kosten koper
- Vraagprijs per m²
- € 2.993
- Status
- Verkocht
Bouw
- Soort woonhuis
- Eengezinswoning, tussenwoning
- Soort bouw
- Bestaande bouw
- Bouwjaar
- 1940
- Soort dak
- Zadeldak
Oppervlakten en inhoud
- Gebruiksoppervlakten
- Wonen
- 70 m²
- Overige inpandige ruimte
- 7 m²
- Perceel
- 112 m²
- Inhoud
- 272 m³
Indeling
- Aantal kamers
- 4 kamers (3 slaapkamers)
- Aantal badkamers
- 1 badkamer
- Badkamervoorzieningen
- Douche, toilet, en wastafel
- Aantal woonlagen
- 3 woonlagen
- Voorzieningen
- Dakraam, glasvezelkabel, natuurlijke ventilatie, en TV kabel
Energie
- Energielabel
- Isolatie
- Gedeeltelijk dubbel glas
- Verwarming
- Cv-ketel
- Warm water
- Cv-ketel
- Cv-ketel
- Intergas Kompakt HRE 28/24A (gas gestookt combiketel uit 2020, eigendom)
Kadastrale gegevens
- HUIZUM A 1892
- Kadastrale kaart
- Oppervlakte
- 112 m²
- Eigendomssituatie
- Volle eigendom
Buitenruimte
- Ligging
- In woonwijk
- Tuin
- Achtertuin en voortuin
- Achtertuin
- 50 m² (13,66 meter diep en 4,29 meter breed)
- Ligging tuin
- Gelegen op het zuiden bereikbaar via achterom
Parkeergelegenheid
- Soort parkeergelegenheid
- Openbaar parkeren
Foto's 46
© 2001-2026 funda













































