
Omschrijving
Aan de westkant van de stad, in één van de mooiste wijken van Leeuwarden, de Vogelwijk, bevindt zich dit prachtige en karakteristieke woonhuis. Een woning waar sfeer, stijl en historie samenkomen – ontworpen door architect Piet de Vries, die in de jaren dertig een belangrijke stempel drukte op de Leeuwarder bouwkunst. De jaren '30 kenmerken zich qua bouwstijl door een combinatie van functionele vormgeving en expressieve elementen. De prachtige glas-in-lood details in de voordeur, vestibule én erker zorgen direct bij binnenkomst voor een warm welkom. Deze woning is qua authentieke elementen bijzonder origineel gebleven!
Met zijn originele en suite deuren, hoge plafonds en fraaie paneeldeuren ademt dit huis een unieke charme. De woning is keurig onderhouden en biedt volop ruimte, verdeeld over een begane grond, eerste verdieping én een ruime zolderverdieping. De beschutte en zonnige achtertuin van circa 26 m² ligt gunstig op het zuiden.
Het stadscentrum van Leeuwarden ligt op slechts vijf minuten fietsen. Voorzieningen zoals een supermarkt, basisschool, huisarts en speeltuin zijn op loopafstand bereikbaar. Dankzij de directe aansluiting op de Westelijke invalsweg (N31) zijn uitvalswegen richting Harlingen, Drachten en Heerenveen uitstekend bereikbaar. Het station is in circa zeven minuten per fiets te bereiken en bushaltes bevinden zich in de directe omgeving.
Indeling o.a.:
Begane grond:
- karakteristieke entree met glas-in-lood voordeur, tochtportaal (vestibule) met glas-in-lood voorziene tochtdeur
- hal met trapopgang en diepe trapkast/kelder
- sfeervolle woonkamer met erker aan de voorzijde, glas-in-lood beglazing, ensuite schuifdeuren met vaste kasten, rookkanaal en openslaande deuren naar de achtertuin
- gesloten keuken met functionele keukenopstelling
- bijkeuken met aansluiting voor witgoed en loopdeur naar de tuin
- verzorgde achtertuin van circa 26m² met zuidelijke ligging en achterom
Eerste verdieping:
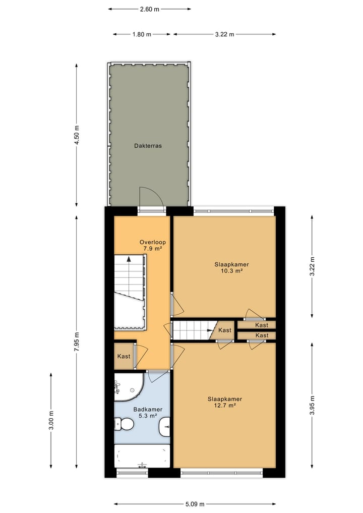
- overloop met vaste kast en toegang tot het dakterras van circa 12m²
- zeer royale eerste slaapkamer aan de voorzijde met inbouwkasten (3,95m x 3,22m)
- tweede ruime slaapkamer aan de achterzijde met inbouwkast (3,22m x 3,22m)
- badkamer met ligbad, douchecabine, wastafel en tweede toilet
Zolderverdieping:
- vaste trap naar royale zolder
- cv-opstelling (Intergas HR-Eco 30 uit 11-2023, eigendom)
- royale open ruimte met dakraam, mogelijkheden voor extra slaapkamer(s) of werkruimte
- mogelijkheid voor grote dakkapel
Bijzonderheden:
- bouwjaar 1936
- woonoppervlakte 112m² en perceeloppervlakte 110m²
- ontworpen door architect Piet de Vries
- grotendeels voorzien van dubbel glas
- gerenoveerd hoofddak, voorzien van nieuwe panlatten, tengels, folie, dakpannen (2020)
- de achtergevel is opnieuw gevoegd en geïmpregneerd
- recent geplaatste HR-combiketel (11-2023)
- achtertuin gelegen op het zuiden (26m²)
- parkeergelegenheid via parkeervergunning
- aanvaarding in overleg
Kenmerken
Overdracht
- Laatste vraagprijs
- € 275.000 kosten koper
- Vraagprijs per m²
- € 2.455
- Status
- Verkocht
Bouw
- Soort woonhuis
- Eengezinswoning, tussenwoning
- Soort bouw
- Bestaande bouw
- Bouwjaar
- 1936
- Soort dak
- Zadeldak bedekt met pannen
Oppervlakten en inhoud
- Gebruiksoppervlakten
- Wonen
- 112 m²
- Gebouwgebonden buitenruimte
- 12 m²
- Perceel
- 110 m²
- Inhoud
- 496 m³
Indeling
- Aantal kamers
- 3 kamers (2 slaapkamers)
- Aantal badkamers
- 1 badkamer en 1 apart toilet
- Badkamervoorzieningen
- Douche, ligbad, toilet, en wastafel
- Aantal woonlagen
- 2 woonlagen en een zolder
- Voorzieningen
- Dakraam, glasvezelkabel, natuurlijke ventilatie, rookkanaal, en TV kabel
Energie
- Energielabel
- E
- Isolatie
- Grotendeels dubbelglas
- Verwarming
- Cv-ketel
- Warm water
- Cv-ketel en geiser
- Cv-ketel
- Intergas HR-Eco 30 (gas gestookt combiketel uit 2023, eigendom)
Kadastrale gegevens
- LEEUWARDEN D 3679
- Kadastrale kaart
- Oppervlakte
- 110 m²
- Eigendomssituatie
- Volle eigendom
Buitenruimte
- Ligging
- Aan rustige weg en in woonwijk
- Tuin
- Achtertuin en voortuin
- Achtertuin
- 26 m² (5,42 meter diep en 2,19 meter breed)
- Ligging tuin
- Gelegen op het zuiden bereikbaar via achterom
- Balkon/dakterras
- Dakterras aanwezig
Parkeergelegenheid
- Soort parkeergelegenheid
- Parkeervergunningen
Foto's 50
© 2001-2026 funda

















































