Dit huis op Funda: https://www.funda.nl/detail/koop/leeuwarden/huis-roordaburg-34/89574247/

BlikvangerWoonoppervlak 103m² met potentie voor ca. 130m² wonen!
Omschrijving
Wonen met uitzicht – ruimte, groen en mogelijkheden in Camminghaburen!
Wat een gave plek is dit! Deze royale eengezinswoning in de kindvriendelijke wijk Camminghaburen biedt niet alleen een schitterend uitzicht over het Kronenbergerpark, maar ook volop ruimte en potentie. Met een huidige woonoppervlakte van 103 m², vier slaapkamers en een zonnige tuin op het zuiden is dit al een heerlijk familiehuis. De berging aan de voorzijde en de zolder staan nu aangemerkt als overige inpandige ruimte, maar zodra u deze meeneemt in het woonoppervlak – bijvoorbeeld door van de berging een leefkeuken te maken en een vaste trap naar zolder te realiseren – groeit de woning met gemak met 20 tot 30 m² (in gebruikersoppervlak wonen)! De woning beschikt over energielabel C, maar met enkele energiebesparende maatregelen is hier nog winst te behalen. Kortom: een huis vol mogelijkheden, met uitzicht op groen en klaar om helemaal naar eigen wens te maken.
Camminghaburen is een populaire en gezinsvriendelijke woonwijk in het noordoosten van Leeuwarden, op slechts enkele minuten fietsen of een korte autorit van het bruisende stadscentrum. De wijk staat bekend om haar ruime opzet, veel groen en waterpartijen, brede straten en veilige speelplekken, waardoor het ideaal is voor gezinnen met kinderen. In de wijk zelf zijn diverse winkelvoorzieningen, waaronder supermarkten, speciaalzaken en horecagelegenheden, zodat de dagelijkse boodschappen en een kopje koffie dichtbij huis geregeld kunnen worden. Daarnaast zijn er meerdere basis- en middelbare scholen, sportclubs, kinderdagverblijven en medische voorzieningen, waardoor alles voor het gezin binnen handbereik is. De goede bereikbaarheid van openbaar vervoer en nabijheid van uitvalswegen maakt het bovendien eenvoudig om naar andere delen van Leeuwarden of daarbuiten te reizen. Camminghaburen combineert het comfort van stedelijke voorzieningen met de rust en ruimte van een groene, kindvriendelijke woonomgeving.
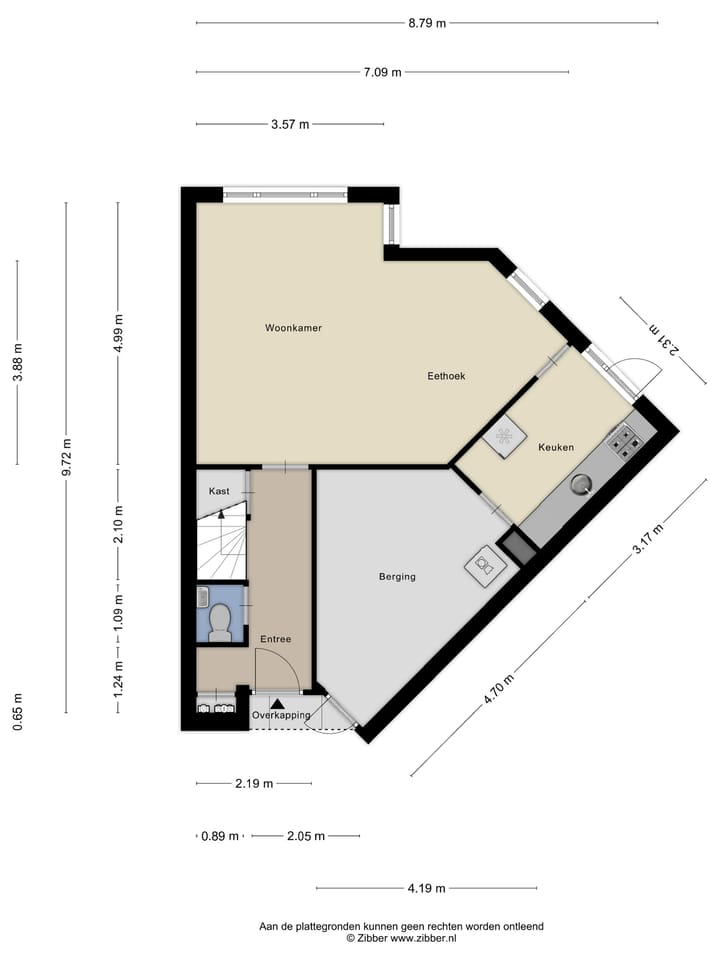
Indeling:
Begane grond:
Aangekomen op het rustige plein van de Roordaburg, een plek waar kinderen nog ongestoord kunnen spelen, bereikt u via de verzorgde voortuin zowel de berging – handig voor bijvoorbeeld fietsen – als het hoofdentree van de woning. Bij binnenkomst komt u in een lange hal die toegang biedt tot de ruime woonkamer, het separaat toilet, de meterkast, de kelderkast en de trapopgang naar de verdieping. De woonkamer is bijzonder licht en biedt een fenomenaal uitzicht op het groen en water van het Kronenbergerpark, waarbij u volledige privacy geniet zonder inkijk van buren of schuttingen. Vanuit de woonkamer loopt u door naar de keuken, die toegang geeft tot de zonnige achtertuin op het zuiden en de ruime inpandige berging. Hoewel de keuken wat ouder is, biedt deze ruimte volop mogelijkheden: door de bijkeuken/berging bij de keuken te betrekken creëert u eenvoudig een royale leefkeuken, terwijl een deel van de berging kan worden behouden als praktische opslag of bijkeuken.
Eerste verdieping:
Vanaf de vaste trap komen we op de ruime overloop van de eerste verdieping, waar direct de royale indeling en de vele mogelijkheden opvallen. Vanaf de overloop heeft u toegang tot vier ruime slaapkamers, elk voorzien van een nette, doorgelegde laminaatvloer en grote ramen die zorgen voor een aangename lichtinval. De badkamer is wat ouder, maar functioneel en goed van formaat, met een douche, tweede toilet en wastafel. Deze verdieping biedt volop ruimte voor gezinnen en de mogelijkheid om de kamers geheel naar eigen wens in te richten.
Zolder:
Momenteel is de zolder bereikbaar via een vlizotrap, maar er is volop mogelijkheid om hier een vaste trap te realiseren, waardoor deze verdieping bij de woonoppervlakte kan worden meegerekend. Zo kunt u eenvoudig een ruime vijfde slaapkamer creëren, wat de woning bijzonder geschikt maakt voor grotere gezinnen. Op de zolder bevindt zich tevens de opstelplaats van de CV-ketel (Itho) en de mechanische ventilatie, waardoor alle technische installaties overzichtelijk en netjes zijn gesitueerd.
Goed om te weten:
*Bouwjaar: 1981
*Gebruiksoppervlakte wonen: 103m2
*Gebruiksoppervlakte overige inpandige ruimte: 33m2
*Inhoud: 480m3
*Perceeloppervlak: 196m2
*Tuin gesitueerd op het zuiden met uitzicht op het Kronenbergerpark
*Veel mogelijkheden zoals het vergroten van de keuken en het creëren van een 5e slaapkamer
*Verwarming middels een CV-ketel (ITHO)
*Energielabel C
*Voldoende gratis parkeergelegenheid voor de woning
*Oplevering in overleg
Bij woningen ouder dan 30 jaar hanteren wij standaard een asbest-en ouderdomsclausule.
Kenmerken
Overdracht
- Aangeboden sinds
- Aanvaarding
- In overleg
- Vraagprijs
- € 295.000 kosten koper
- Vraagprijs per m²
- € 2.864
- Status
- Onder bod
Bouw
- Soort woonhuis
- Eengezinswoning, tussenwoning
- Soort bouw
- Bestaande bouw
- Bouwjaar
- 1981
- Soort dak
- Samengesteld dak bedekt met bitumineuze dakbedekking en pannen
Oppervlakten en inhoud
- Gebruiksoppervlakten
- Wonen
- 103 m²
- Overige inpandige ruimte
- 33 m²
- Gebouwgebonden buitenruimte
- 1 m²
- Perceel
- 196 m²
- Inhoud
- 480 m³
Indeling
- Aantal kamers
- 5 kamers (4 slaapkamers)
- Aantal badkamers
- 1 badkamer en 1 apart toilet
- Badkamervoorzieningen
- Douche, toilet, en wastafel
- Aantal woonlagen
- 2 woonlagen en een zolder
- Voorzieningen
- Dakraam, mechanische ventilatie, natuurlijke ventilatie, en TV kabel
Energie
- Energielabel
- Isolatie
- Dakisolatie, dubbel glas en muurisolatie
- Verwarming
- Cv-ketel
- Warm water
- Cv-ketel
- Cv-ketel
- ITHO (gas gestookt combiketel, eigendom)
Kadastrale gegevens
- LEEUWARDEN K 4277
- Kadastrale kaart
- Oppervlakte
- 141 m²
- Eigendomssituatie
- Volle eigendom
- LEEUWARDEN K 5545
- Kadastrale kaart
- Oppervlakte
- 55 m²
- Eigendomssituatie
- Volle eigendom
Buitenruimte
- Ligging
- Aan park, aan rustige weg, aan water, beschutte ligging, in woonwijk en vrij uitzicht
- Tuin
- Achtertuin en voortuin
- Achtertuin
- 126 m² (9,00 meter diep en 14,00 meter breed)
- Ligging tuin
- Gelegen op het zuiden bereikbaar via achterom
Bergruimte
- Schuur/berging
- Inpandig
- Voorzieningen
- Elektra en stromend water
Parkeergelegenheid
- Soort parkeergelegenheid
- Openbaar parkeren
Foto's 50
Plattegronden 3
© 2001-2026 funda




















































