
Omschrijving
Gelegen in de gewilde wijk Westeinde en op een kindvriendelijke locatie treft u deze royale tussenwoning met diepe achtertuin op het zuiden én een vrijstaande stenen garage! De in 1973 gebouwde woning met een perceelgrootte van 192 m2 eigen grond beschikt over vier slaapkamers, een grote zolderverdieping, een ruime open keuken met inbouwapparatuur en een badkamer met o.a. een ligbad, douche, wastafelmeubel en een tweede toilet.
De woning is voorzien van het gunstige energielabel B en beschikt over een diepe, zonnige achtertuin met achterom. Achterin de tuin staat een ruime garage met loopdeur, ideaal voor extra bergruimte of het veilig stallen van fietsen. Dankzij de gunstige ligging kunt u hier tot in de avonduren volop van de zon genieten!
Westeinde is een ruim opgezette jaren '70 wijk met veel groen en water. U vindt er diverse speeltuinen, een Poiesz-supermarkt en zowel basis- als middelbaar onderwijs (Piter Jelles). Dankzij de gunstige ligging bent u in een mum van tijd de stad in of uit.
Ziet u hier uw eigen spullen al in staan? Aarzel niet en vraag een bezichtiging aan via onze website of Funda! We laten u dit leuke huis graag zien!
Indeling o.a.:
Begane grond:
- hal met garderobe
- meterkast
- toilet met fonteintje
- ruime Z-vormige woonkamer (ca. 29m2)
- open keuken met diverse inbouwapparatuur
- uitpandige bijkeuken
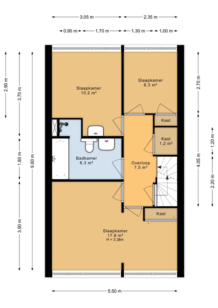
1e verdieping:
- ruime overloop
- 1e grote slaapkamer aan voorzijde met kastruimte (afm. 3,90m x 5,50m)
- 2e slaapkamer aan achterzijde voorzien van een wastafel (afm. 3,70m x 3,05m)
- badkamer met douche, ligbad, wastafel en tweede toilet (afm. 1,80m x 3,05m)
- 3e slaapkamer aan achterzijde met ingebouwde kast (afm. 2,70m x 2,35m)
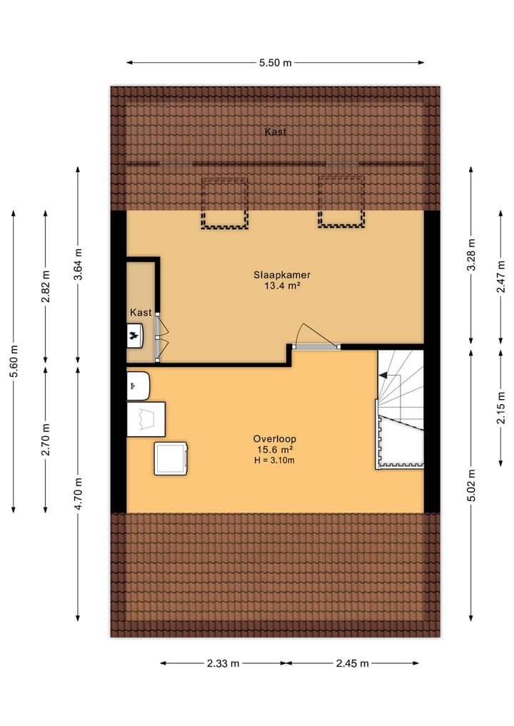
Zolderverdieping:
- vaste trap naar zolder
- overloop met witgoedopstelling en bergruimte
- 4e slaapkamer (afm. 2,82m x 5,50m) met kast en cv-opstelling
Algemeen:
- perceel 192m2 eigen grond
- 139m2 woonoppervlakte
- dakisolatie en HR beglazing
- Remeha Avanta HR CV-ketel, 2014 (eigendom)
- achtertuin op het zuiden met achterom en garage
- nabij scholen, winkels en uitvalswegen
- directe aanvaarding is mogelijk!
Kenmerken
Overdracht
- Laatste vraagprijs
- € 269.500 kosten koper
- Vraagprijs per m²
- € 1.939
- Status
- Verkocht
Bouw
- Soort woonhuis
- Eengezinswoning, tussenwoning
- Soort bouw
- Bestaande bouw
- Bouwjaar
- 1973
- Soort dak
- Zadeldak bedekt met pannen
Oppervlakten en inhoud
- Gebruiksoppervlakten
- Wonen
- 139 m²
- Externe bergruimte
- 19 m²
- Perceel
- 192 m²
- Inhoud
- 560 m³
Indeling
- Aantal kamers
- 5 kamers (4 slaapkamers)
- Aantal badkamers
- 1 badkamer en 1 apart toilet
- Badkamervoorzieningen
- Douche, ligbad, toilet, en wastafelmeubel
- Aantal woonlagen
- 2 woonlagen en een zolder
- Voorzieningen
- Glasvezelkabel en TV kabel
Energie
- Energielabel
- Isolatie
- Dakisolatie, grotendeels dubbelglas en HR-glas
- Verwarming
- Cv-ketel
- Warm water
- Cv-ketel
- Cv-ketel
- Remeha Avanta 28c (gas gestookt combiketel uit 2014, eigendom)
Kadastrale gegevens
- LEEUWARDEN D 6515
- Kadastrale kaart
- Oppervlakte
- 192 m²
- Eigendomssituatie
- Volle eigendom
Buitenruimte
- Ligging
- Aan rustige weg en in woonwijk
- Tuin
- Achtertuin en voortuin
- Achtertuin
- 66 m² (11,63 meter diep en 5,70 meter breed)
- Ligging tuin
- Gelegen op het zuiden bereikbaar via achterom
Garage
- Soort garage
- Vrijstaande stenen garage
- Capaciteit
- 1 auto
- Voorzieningen
- Elektra
- Isolatie
- Geen isolatie
Parkeergelegenheid
- Soort parkeergelegenheid
- Openbaar parkeren
Foto's 49
© 2001-2026 funda
















































