
Omschrijving
Riante nieuwe stadsvilla gelegen in de getransformeerde Tesselschadestraat. Het nieuwbouwplan "Hoog Vossenpark" is het markantste voorbeeld van de geweldige upgrade aan deze kant van de stad. Riant recht opgetrokken herenhuis met 3 woonlagen en bijzonder fraaie accenten aan de buitenkant. Opvallend aan de woning is de iconische voorgevel met het bolle Frans balkon en de gouden accenten op het dak. Voor de woning ligt een mandelig voetpad, omheind met een sierlijk hekwerk.
En uiteraard alle comfort van een woonhuis uit 2019, gebouwd volgens het nieuw bouwbesluit. Hoge plafonds en deuren. Tevens voorzien van zonnepanelen, vloerverwarming en onderhoudsarme kunststof kozijnen van hoge kwaliteit. Energielabel A. Achterom kunt u parkeren en heeft u toegang tot een heerlijke stadstuin.
Indeling:
begane grond: hal, gang, zwevend toilet. Ruime woonkamer met fraaie lichtinval door de grote ramen. Comfortabele PVC vloer met vloerverwarming. De luxe keuken aan de achterzijde is werkelijk een plaatje. Modern en voorzien van alle gemakken. Een schiereiland met inductiekookplaat en geïntegreerde afzuiging. Natuurstenen aanrecht, vaatwasser, combi-oven en koel/vriescombinatie. Voorts voldoende bergruimte.
Via de bijkeuken komt u in de achtertuin. Vanuit de woonkamer zijn tevens openslaande deuren naar de gezellige stadstuin. Deze is fraai aangelegd en voorzien van een berging.
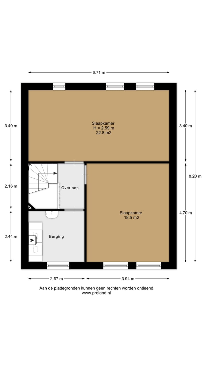
1e verdieping: overloop en een royale ouderslaapkamer aan de achterzijde. Tweede ruime slaapkamer aan de voorzijde, alsmede een derde slaapkamer met openslaande deuren naar het Frans balkon. Grote moderne badkamer met inloopdouche, 2e zwevend toilet, bidet, dubbel wastafelmeubel en urinoir.
2e verdieping met een ruime 4e en 5e slaapkamer en wasruimte.
Belangrijke kenmerken:
-energielabel A
-eigen grond
-bouwjaar 2019
-voorzien van 12 zonnepanelen
-vloerverwarming beneden
-kunststof kozijnen met triple glas
-maar liefst 5 slaapkamers
-moderne badkamer en keuken
-openslaande deuren naar de tuin
-maar liefst 165m2 woonoppervlakte
-airco in de masterbedroom
De centrale ligging van de woning is ideaal; het stadscentrum ligt op loopafstand, de rondweg is om de hoek en de Albert Heijn bevindt zich aan de overkant van de straat. Ook het nieuwe Cambuurstation ligt nabij, met aan het Stadionplein diverse winkels zoals Kruidvat, Jumbo, Aldi en Action. Verder zijn er in de wijk vele voorzieningen als een basisschool, kinderopvang en een grote speeltuin.
Wat een heerlijk huis voor de grote doelgroep!
Dit bijzondere object, vraagt om bijzondere aandacht. Daarom bieden wij deze woning te koop aan onder ons label ‘Hoekstra Exclusief Wonen’.
Kenmerken
Overdracht
- Laatste vraagprijs
- € 595.000 kosten koper
- Vraagprijs per m²
- € 3.606
- Status
- Verkocht
Bouw
- Soort woonhuis
- Herenhuis, tussenwoning
- Soort bouw
- Bestaande bouw
- Bouwjaar
- 2019
- Soort dak
- Plat dak
Oppervlakten en inhoud
- Gebruiksoppervlakten
- Wonen
- 165 m²
- Overige inpandige ruimte
- 5 m²
- Externe bergruimte
- 6 m²
- Perceel
- 133 m²
- Inhoud
- 590 m³
Indeling
- Aantal kamers
- 6 kamers (5 slaapkamers)
- Aantal badkamers
- 1 badkamer en 1 apart toilet
- Badkamervoorzieningen
- Bidet, douche, dubbele wastafel, toilet, urinoir, vloerverwarming, en wastafelmeubel
- Aantal woonlagen
- 3 woonlagen
- Voorzieningen
- Buitenzonwering, glasvezelkabel, mechanische ventilatie, natuurlijke ventilatie, TV kabel, en zonnepanelen
Energie
- Energielabel
- A
- Isolatie
- Volledig geïsoleerd
- Verwarming
- Cv-ketel en gedeeltelijke vloerverwarming
- Warm water
- Cv-ketel
- Cv-ketel
- Intergas HR (gas gestookt combiketel uit 2019, eigendom)
Kadastrale gegevens
- LEEUWARDEN D 10653
- Kadastrale kaart
- Oppervlakte
- 133 m²
- Eigendomssituatie
- Volle eigendom
Buitenruimte
- Ligging
- In woonwijk
- Tuin
- Achtertuin
- Achtertuin
- 49 m² (7,00 meter diep en 7,00 meter breed)
- Ligging tuin
- Gelegen op het noordoosten bereikbaar via achterom
Bergruimte
- Schuur/berging
- Vrijstaande houten berging
Parkeergelegenheid
- Soort parkeergelegenheid
- Parkeervergunningen
Foto's 60
© 2001-2025 funda



























































