
Omschrijving
Gelegen aan de Maalderijstraat in De Waard in Leiden vinden we dit mooie 3-kamer appartement in de Silotoren van de oude meelfabriek. Het appartement ligt op de 7e verdieping en heeft een prachtig uitzicht over Leiden en met name over de Zijlsingel en het Ankerpark. Het is een monumentaal pand en cultureel erfgoed en de ligging is ideaal, niet te ver van het gezellige centrum en aan het water met meerdere parken in de buurt. Dit is echt uniek wonen, midden in de stad!
Deze oude fabriek is van top tot teen gestript en van binnen helemaal opnieuw opgebouwd. Dus een duurzaam appartement van alle gemakken voorzien met bijvoorbeeld een WTW, vloerverwarming, vloerkoeling en gasloos. Helemaal van nu dus.
Het appartement is van binnen nog niet helemaal af. Er moet bijvoorbeeld nog een keuken komen, de muren moeten nog afgewerkt worden en de vloer ligt er nog niet in. Dit maakt wel dat u de woning geheel naar eigen smaak kunt laten afwerken. Er is oa een lichte speelse woonkamer met (nog niet geplaatste) open keuken die zich kenmerkt door vele raampartijen van vloer tot plafond, een balkon met ligging op het noordoosten, er zijn 2 lichte slaapkamers met ook weer die kenmerkende ramen en 1 van de slaapkamers heeft toegang tot het 2e balkon met ligging op het noordwesten en uitzicht over het Ankerpark.
Het hele complex ademt luxe en staat er prachtig bij, met ook de binnentuin met leuke tentjes op de plint. In de naastgelegen parkeergarage bevinden zich nog de berging en eigen parkeerplaats.
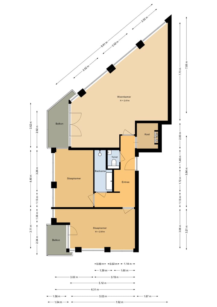
Indeling
Begane grond complex
Afgesloten entree met video intercom, brievenbussen, toegang tot de lift en het trappenhuis. Er hoort een berging bij het appartement en er is ook een eigen parkeerplek in de ondergelegen garage.
Appartement 7e verdieping
Luxe afgewerkt portiek. Het entree komt uit op een hal met de garderobe en het toilet. Linksaf gaan we naar de slaapkamers en de badkamer, rechtsaf naar de woonkamer met open keuken. De woonkamer heeft hoge raampartijen, toegang tot het balkon en de open keuken die nog geplaatst moet worden. De 1e slaapkamer heeft toegang tot het 2e balkon dat uitkijkt over leiden en het Ankerpark, de 2e slaapkamer kijkt uit over de Zijlsingel en de badkamer is voorzien van een wastafelmeubel en ruime inloopdouche.
Kenmerken
- Uniek appartement op een unieke locatie
- Gelegen in een luxe complex
- Prachtig uitzicht over Leiden
- 2 slaapkamers
- lichte woonkamer met wijd uitzicht
- Vloerverwarming, -koeling, WTW en gasloos
Kenmerken
Overdracht
- Laatste vraagprijs
- € 798.000 kosten koper
- Vraagprijs per m²
- € 8.227
- Status
- Verkocht
- Bijdrage VvE
- € 400,00 per maand
Bouw
- Soort appartement
- Portiekflat (appartement)
- Soort bouw
- Bestaande bouw
- Bouwjaar
- 2024
- Soort dak
- Plat dak bedekt met bitumineuze dakbedekking
- Keurmerken
- GIW Waarborgcertificaat
- Toegankelijkheid
- Toegankelijk voor mensen met een beperking en toegankelijk voor ouderen
Oppervlakten en inhoud
- Gebruiksoppervlakten
- Wonen
- 97 m²
- Gebouwgebonden buitenruimte
- 10 m²
- Externe bergruimte
- 7 m²
- Inhoud
- 315 m³
Indeling
- Aantal kamers
- 3 kamers (2 slaapkamers)
- Aantal badkamers
- 1 badkamer en 1 apart toilet
- Badkamervoorzieningen
- Dubbele wastafel, inloopdouche, en wastafelmeubel
- Aantal woonlagen
- 1 woonlaag
- Voorzieningen
- Balansventilatie en lift
- Gelegen op
- 7e woonlaag
Energie
- Energielabel
- Isolatie
- Volledig geïsoleerd
- Verwarming
- Aardwarmte en gehele vloerverwarming
- Warm water
- Elektrische boiler
Kadastrale gegevens
- LEIDEN C 2496
- Kadastrale kaart
- Eigendomssituatie
- Volle eigendom
- LEIDEN C 2476
- Kadastrale kaart
- Eigendomssituatie
- Volle eigendom
- LEIDEN C 2497
- Kadastrale kaart
- Eigendomssituatie
- Volle eigendom
Buitenruimte
- Ligging
- Aan park, aan vaarwater, aan water, in centrum en vrij uitzicht
- Balkon/dakterras
- Balkon aanwezig
Bergruimte
- Schuur/berging
- Box
Garage
- Soort garage
- Parkeerkelder
Parkeergelegenheid
- Soort parkeergelegenheid
- Parkeergarage
VvE checklist
- Inschrijving KvK
- Ja
- Jaarlijkse vergadering
- Ja
- Periodieke bijdrage
- Ja (€ 400,00 per maand)
- Reservefonds aanwezig
- Ja
- Onderhoudsplan
- Ja
- Opstalverzekering
- Ja
Foto's 52
© 2001-2026 funda



















































