
Sieboldstraat 132315 HL LeidenDe Kooi
€ 225.000 k.k.
Omschrijving
INSTAPKLAAR 2-KAMERAPPARTEMENT OP DE BEGANE GROND MET VERNIEUWDE AFWERKING EN PATIO
Aan de Sieboldstraat 13 in Leiden bevindt zich dit verzorgde 2-kamerappartement op de begane grond, met een praktische indeling en een frisse, recente afwerking. De woning beschikt over een nieuwe keuken, nieuwe vloer, strak schilderwerk en een opgeknapte patio aan de achterzijde. Dankzij de ligging in Leiden-Noord en de korte afstand tot de binnenstad vormt dit appartement een aantrekkelijke woonplek.
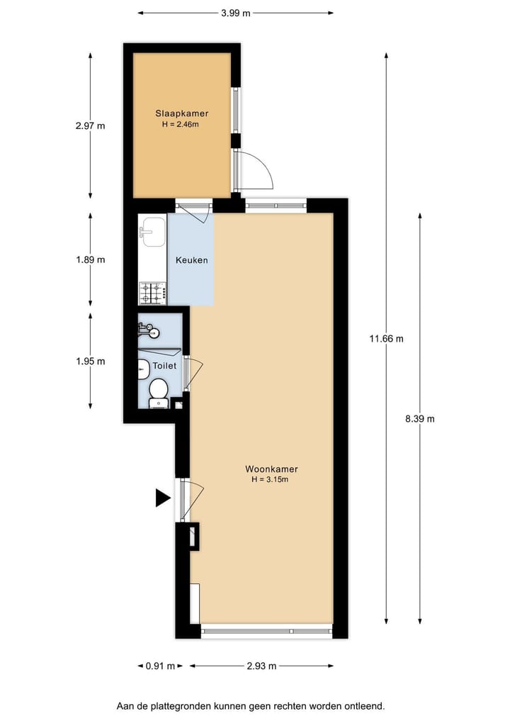
ENTREE EN WOONKAMER
De woning wordt betreden via de woonkamer aan de voorzijde. Deze ruimte strekt zich uit over vrijwel de gehele lengte van het appartement en biedt voldoende plaats voor een zithoek en eettafel. De grote raampartij zorgt voor een prettige lichttoevoer. De nieuwe vloer en neutrale afwerking dragen bij aan een verzorgde en moderne uitstraling.
KEUKEN
Centraal in het appartement ligt de vernieuwde keuken. Deze is uitgevoerd met een gaskookplaat, afzuigkap, spoelbak en kastruimte. De keuken is praktisch geplaatst tussen de woonkamer en de achterzijde van het appartement, waardoor de ruimte efficiënt wordt benut.
SLAAPKAMER
Aan de achterzijde van de woning ligt de separate slaapkamer. Deze ruimte is rustig gelegen en biedt directe toegang tot de patio. De indeling maakt het eenvoudig om de kamer in te richten met een bed en kast, en de verbinding met de buitenruimte zorgt voor extra comfort.
BADKAMER EN TOILET
De badkamer is compact maar netjes afgewerkt en uitgerust met een douche, toilet en wastafel. Een praktische en verzorgde ruimte die direct bruikbaar is.
PATIO
Achter de woning ligt de OPGEKNAPTE PATIO, een onderhoudsvriendelijke buitenruimte die geschikt is om buiten te zitten of te gebruiken als extra opslag. De patio vormt een prettig verlengstuk van de woning.
BIJZONDERHEDEN
- Woonoppervlakte: 35,3 M² (conform NEN2580)
- Nieuwe keuken (2025)
- Nieuwe vloer en schilderwerk
- Patio vernieuwd
- Separate slaapkamer
- Praktische en efficiënte indeling
- Instapklaar
- Bouwjaar circa 1915
LIGGING
De woning is gelegen in de Sieboldstraat in LEIDEN-NOORD, een stedelijke omgeving met diverse voorzieningen op korte afstand. Supermarkten, buurtwinkels, openbaar vervoer en sportfaciliteiten bevinden zich in de directe nabijheid. De Leidse binnenstad, het Singelpark en Leiden Centraal zijn snel te bereiken per fiets. De A4 en A44 zijn goed toegankelijk voor woon-werkverkeer.
INTERESSE?
Neem contact op voor een bezichtiging van Sieboldstraat 13 in Leiden.
Kenmerken
Overdracht
- Aangeboden sinds
- Aanvaarding
- Per direct beschikbaar
- Vraagprijs
- € 225.000 kosten koper
- Vraagprijs per m²
- € 6.429
- Status
- Beschikbaar
- Bijdrage VvE
- € 50,00 per maand
Bouw
- Soort appartement
- Benedenwoning (appartement)
- Soort bouw
- Bestaande bouw
- Bouwjaar
- 1915
Oppervlakten en inhoud
- Gebruiksoppervlakten
- Wonen
- 35 m²
- Inhoud
- 155 m³
Indeling
- Aantal kamers
- 2 kamers (1 slaapkamer)
- Aantal woonlagen
- 1 woonlaag
- Gelegen op
- Begane grond
Energie
- Energielabel
- C
Kadastrale gegevens
- LDN01 K 1058
- Kadastrale kaart
- Eigendomssituatie
- Volle eigendom
Buitenruimte
- Ligging
- In woonwijk
- Tuin
- Achtertuin
- Achtertuin
- 5 m² (1,88 meter diep en 3,15 meter breed)
- Ligging tuin
- Gelegen op het oosten
Parkeergelegenheid
- Soort parkeergelegenheid
- Betaald parkeren
VvE checklist
- Inschrijving KvK
- Ja
- Jaarlijkse vergadering
- Nee
- Periodieke bijdrage
- Ja (€ 50,00 per maand)
- Reservefonds aanwezig
- Nee
- Onderhoudsplan
- Nee
- Opstalverzekering
- Ja
Foto's 26
© 2001-2025 funda

























