Dit huis op Funda: https://www.funda.nl/detail/koop/leiden/huis-middelstegracht-8-r/43958699/

Omschrijving
Uniek wonen in een monumentale kerk in hartje Leiden.
Centraal in de historische binnenstad van Leiden ligt het voormalige Sint Elisabeth Gasthuis met monumentale kerk.
Dit mooie en bijzondere object kan worden ontwikkeld naar een exclusieve loftachtige woning in de kapel met een woonoppervlak van maar liefst 300 m2 met behoud van vele bijzondere neogotische stijldetails, karakteristieke bouwdetails en niet te vergeten de ruimtelijk ervaring! Samen met de authentieke kapel en de moderne luxe afwerking in loftachtige stijl wordt deze woning heel exclusief.
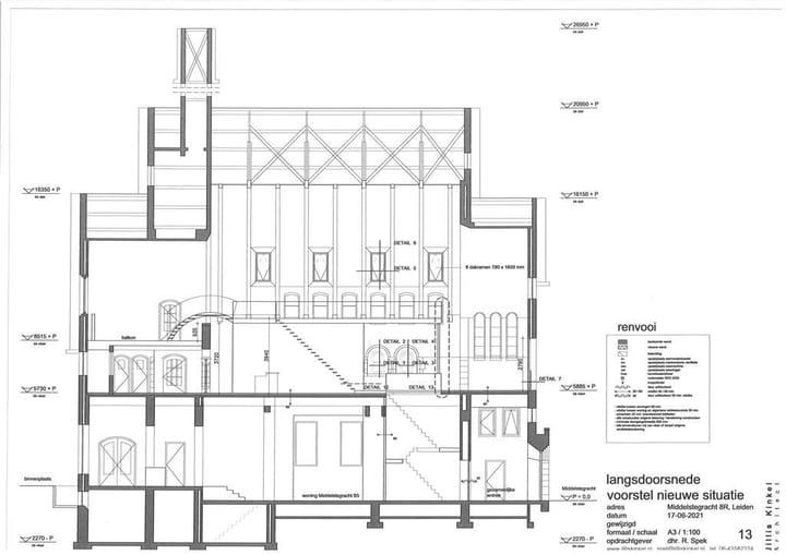
De unieke kapel kenmerkt zich door de authentieke bouwstijl uit eind 19e eeuw met een bijzonder royale en ruime kerkzaal van 223 m2 met een ruimte met biechtstoelen. Hoeken en doorgangen zijn afgewerkt met eenvoudige zware natuurstenen zuiltjes.
Boven de voorhal bevindt zich de koorzolder met orgelpijpen en een waanzinnig uitzicht op de kerkzaal. De houten gordelbogen rusten op natuurstenen consoles met ingekerfde decoratie.
Op de scheiding tussen het schip en het koor is de wand voorzien van twee grote natuurstenen reliëfs met gestileerde uitbeelding van engelen. De wanden zijn voorzien van een plint van lichtbruin geglazuurd steen. De vloer is belegd met natuurstenentegels, waarbij de altaartreden in marmer zijn uitgevoerd. Verder zijn de kozijnen in de kapel voorzien van prachtige en figuratieve glas-in-lood vensters van kunstenaar Joan Collette.
De kerk zal worden opgeleverd in de huidige staat, dus voor verbouwing. Na de verbouwing met behoud van alle bovenstaande unieke en neogotische kenmerken een sublieme plek zijn om te wonen. Alle vergunningen en bouwplannen zijn reeds aanwezig!
Voor deze exclusieve woonkans, in het hartje van het oude centrum van Leiden, zijn wij op zoek naar een koper die oog heeft voor bijzondere woning(en) en deze ook weet te appreciëren! Een koper die de combinatie van luxe en uniforme afwerking van het hoogste niveau waardeert, maar ook zelf invloed wil hebben op het uiteindelijke resultaat, details en materiaalkeuze. En waarbij hij/zij eventueel nog naar eigen inzicht het bouwplan kan aanpassen en de luxe kan creëren naar eigen wensen.
Bent u een echte levensgenieter, heeft u gewoon altijd al gedroomd van bijzonder wonen, of beiden? Dan nodigen wij u graag uit om de kerk eens van dichtbij te bekijken!
Indeling:
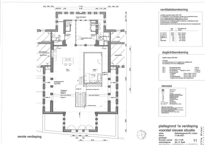
Entree. Ruime hal met garderobe en een mooie stijlvolle bordertrap naar de kapelzaal.
Bij het betreden van de kapel is de loftachtige indeling, met alle charme en authentieke neogotische details, van de woning goed zichtbaar. De unieke hoogte van de kapel en de gotische raamvormen met figuratief glas-in-lood spreken boekdelen. De riante living van maar liefst ca. 129 m2 met open woonkeuken kan worden ingericht met meerdere sfeervolle plekken zoals o.a. woonruimte, loungeruimte, atelierruimte, werkruimte en zitruimte. Riante open woonkeuken met een luxe keukeninrichting en kookeiland. In de imposante kapelzaal bevindt een afgescheiden royale slaapkamer met luxe badkamer en suite van totaal ca. 21,5 m2. Groot luxe toilet van ca. 9 m2. Achter in de kapel ligt de 2e slaapkamer (van ca. 18,8 m2) met mooie glazen wand, biechtruimte en toegang naar 2e badkamer. Deze 2e badkamer is voorzien van o.a. een trendy inloopdouche. Vanuit de badkamer weer toegang naar een extra ruimte voor een inloopkledingkast met schitterende glas-in-loodramen.
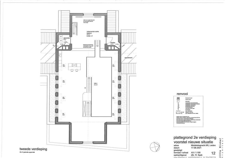
Vanuit de living een trap naar een unieke leefruimte op 4 meter hoogte van maar liefst 44 m2 met een waanzinnige ruimtelijke beleving van de kerk.
Op de verdieping in de kapel, in het koorgedeelte met orgelpijpen, bevindt zich nog een schitterende ruimte voor een slaapkamer van ca. 37,5 m2. Ook vanuit deze ruimte een open en schitterend uitzicht over de loftachtige ingedeelde kerk.
Bijzonderheden:
- Uniek project gelegen in een monumentale kerk uit de 19e eeuw;
- Alle neogotische stijldetails aanwezig;
- Bijzonder grote leefruimte van maar liefst 310 m2 tot5 338 m2;
- In het imposante dak van de kerk kunnen 8 grote ramen en aan de voorzijde 3 grote Franse balkons gerealiseerd worden en 14 ramen met originele glas in lood ramen in de galerijen van de kapel;
- Afwerking volledig koper worden bepaald, beelden zijn een impressie van mogelijk zou zijn;
- Verwarming middels vloer- en hete en koude luchtverwarming;
- Het bouwplan van de verkoper is goedgekeurd en de vergunningen zijn reeds afgegeven;
- Conform bestemmingsplan “Binnenstad” heeft het een woonbestemming voor één woning;
- Maatvoering is circa en afhankelijk van het uiteindelijk bouwplan dat door de koper is te bepalen;
- Oppervlakte is BVO en aan de oppervlakte en tekeningen kunnen geen rechten worden ontleend;
*** Afbeeldingen zijn impressiefoto’s ***
Bijlagen (op te vragen bij de verkopende NVM makelaar)
- Plattegrond.
- Kadastrale kaart.
- Vragenlijst.
- Lijst van zaken.
- Verkoopvoorwaarden op te vragen bij verkopende makelaar.
Interesse in dit huis? Schakel direct uw eigen NVM-aankoopmakelaar in.
Bovenstaande informatie is door ons met de hoogst nodige zorgvuldigheid samengesteld. Door ons wordt echter geen enkele aansprakelijkheid aanvaard voor enige onvolledigheid, onjuistheid of anderszins, dan wel de gevolgen daarvan. Alle opgegeven maten en oppervlakten zijn indicatief. De woning is gemeten met gebruikmaking van de Meetinstructie, die is gebaseerd op de normen zoals vastgelegd in NEN 2580. De Meetinstructie is bedoeld om een meer eenduidige manier van meten toe te passen voor het geven van een indicatie van gebruiksoppervlakte. De Meetinstructie sluit verschillen in meetuitkomsten niet volledig uit, door bijvoorbeeld interpretatieverschillen, afrondingen of beperkingen bij het uitvoeren van de meting. Hoewel wij de woning zorgvuldig hebben opgemeten, wordt noch door ons kantoor, noch door de verkoper enige aansprakelijkheid aanvaard voor afwijkingen in de opgegeven maten. Koper wordt in de gelegenheid gesteld om de opgegeven maten te (laten) controleren.
Kenmerken
Overdracht
- Oorspronkelijke vraagprijs
- € 1.195.000 kosten koper
- Laatste vraagprijs
- € 995.000 kosten koper
- Vraagprijs per m²
- € 3.210
- Status
- Verkocht
Bouw
- Soort woonhuis
- Herenhuis, halfvrijstaande woning
- Soort bouw
- Bestaande bouw
- Bouwjaar
- 1909
- Specifiek
- Beschermd stads- of dorpsgezicht en monumentaal pand
- Soort dak
- Zadeldak bedekt met pannen
Oppervlakten en inhoud
- Gebruiksoppervlakten
- Wonen
- 310 m²
- Overige inpandige ruimte
- 7 m²
- Perceel
- 300 m²
- Inhoud
- 2.905 m³
Indeling
- Aantal kamers
- 6 kamers (5 slaapkamers)
- Aantal badkamers
- 2 badkamers en 1 apart toilet
- Badkamervoorzieningen
- Dubbele wastafel, 2 inloopdouches, vloerverwarming, zitbad, en wastafelmeubel
- Aantal woonlagen
- 3 woonlagen
- Voorzieningen
- Mechanische ventilatie
Energie
- Energielabel
- Isolatie
- Dakisolatie, grotendeels dubbelglas en vloerisolatie
- Verwarming
- Elektrische verwarming, heteluchtverwarming en gedeeltelijke vloerverwarming
- Warm water
- Elektrische boiler
Kadastrale gegevens
- LEIDEN I 3508
- Kadastrale kaart
- Oppervlakte
- 300 m²
- Eigendomssituatie
- Volle eigendom
Buitenruimte
- Ligging
- Aan rustige weg en in centrum
Bergruimte
- Schuur/berging
- Inpandig
Parkeergelegenheid
- Soort parkeergelegenheid
- Openbaar parkeren en parkeervergunningen
Foto's 69
© 2001-2026 funda




































































