Dit huis op Funda: https://www.funda.nl/detail/koop/leiden/huis-sieboldstraat-17/43089410/

Omschrijving
Te Koop: Charmante kluswoning met fraaie trapgevel in hartje Leiden!
Koopsom vanaf € 350.000,-- k.k.
Unieke kans! Karakteristieke tussenwoning met authentieke trapgevel en een woonoppervlakte van ca. 77m², gelegen op een perceel van 52m² in het bruisende hart van Leiden. Deze charmante woning uit 1915 wacht op iemand met visie om er een droomhuis van te maken. Met reeds volledig vernieuwde kozijnen voorzien van HR++ glas en een gezellige stadstuin, biedt deze woning alle mogelijkheden voor liefhebbers van klussen en verbouwen.
Ligging en Voorzieningen:
Gelegen in een van de meest gewilde wijken van Leiden, op korte afstand van het historische stadscentrum. Winkels, supermarkten, scholen en kinderopvang zijn gemakkelijk bereikbaar. Het openbaar vervoer is uitstekend met bushaltes in de buurt en treinstation 'Leiden Centraal' op korte afstand. De woning combineert de charme van het oude Leiden met de nabijheid van alle voorzieningen die deze historische stad te bieden heeft.
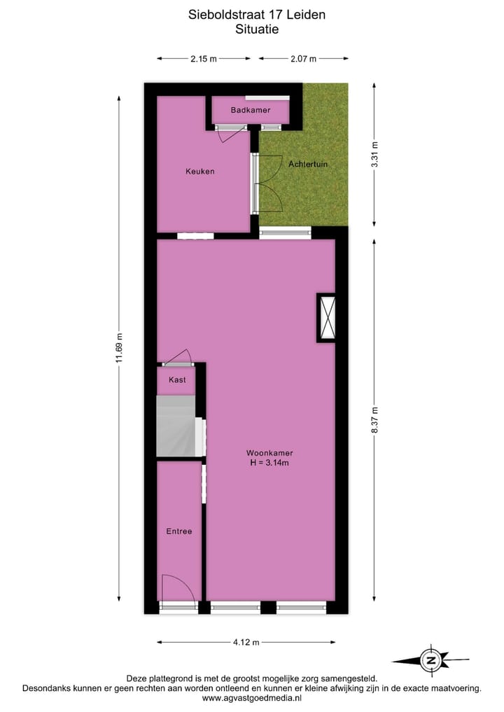
Indeling
Begane grond:
-Entree met hal en meterkast.
-Ruime woonkamer aan de voorzijde met veel lichtinval.
-Keuken aan de achterzijde met toegang tot de stadstuin.
-Badkamer en toiletruimte.
Eerste verdieping
Eerste verdieping:
-Overloop.
-Royale slaapkamer aan de voorzijde.
-Twee slaapkamers aan de achterzijde.
Bijzonderheden
-Bouwjaar: 1915.
-Woonoppervlakte: ca. 77 m².
-Perceeloppervlakte: 52 m².
-Inhoud: ca. 285 m³.
-Energieklasse: G.
-Fraaie trapgevel met authentiek karakter.
-Kozijnen geheel vervangen en voorzien van HR++ glas.
-Bouwkundige keuring aanwezig.
-Woning dient geheel te worden opgeknapt - ideaal voor klussers!
-Oplevering in overleg.
Koopsom vanaf: € 350.000,- | Vraagprijs: € 375.000,-
Alle biedingen vanaf € 350.000,- worden in overweging genomen.
Ziet u de potentie om van deze karakteristieke kluswoning uw droomhuis te maken? Neem contact op voor een bezichtiging en ontdek alle mogelijkheden die deze woning met haar fraaie trapgevel en authentieke uitstraling te bieden heeft.
Kenmerken
Overdracht
- Laatste vraagprijs
- € 350.000 kosten koper
- Vraagprijs per m²
- € 4.545
- Status
- Verkocht
Bouw
- Soort woonhuis
- Eengezinswoning, tussenwoning
- Soort bouw
- Bestaande bouw
- Bouwjaar
- 1915
- Specifiek
- Kluswoning
- Soort dak
- Zadeldak bedekt met bitumineuze dakbedekking en metaal
Oppervlakten en inhoud
- Gebruiksoppervlakten
- Wonen
- 77 m²
- Perceel
- 52 m²
- Inhoud
- 285 m³
Indeling
- Aantal kamers
- 4 kamers (3 slaapkamers)
- Aantal woonlagen
- 2 woonlagen
Energie
- Energielabel
- G
- Isolatie
- HR-glas
- Verwarming
- Moederhaard
- Warm water
- Geiser
Kadastrale gegevens
- LEIDEN K 1056
- Kadastrale kaart
- Oppervlakte
- 52 m²
- Eigendomssituatie
- Volle eigendom
Buitenruimte
- Ligging
- In woonwijk
- Tuin
- Achtertuin
- Achtertuin
- 7 m² (3,31 meter diep en 2,07 meter breed)
- Ligging tuin
- Gelegen op het oosten
Parkeergelegenheid
- Soort parkeergelegenheid
- Betaald parkeren en parkeervergunningen
Foto's 25
© 2001-2025 funda
























