Dit huis op Funda: https://www.funda.nl/detail/koop/leiden/huis-spieghelstraat-21/43802798/

Omschrijving
Wat een fantastische woning! Gelegen in een sfeervolle straat in de geliefde Lage Mors, ademt deze karakteristieke jaren '30 woning charme en authenticiteit. De woning is goed onderhouden en beschikt over een fijne achtertuin met achterom en een stenen berging. Met een woonoppervlakte van 95 m² en drie slaapkamers biedt het huis volop ruimte, met de mogelijkheid tot uitbreiding via een uitbouw. Prachtige details zoals glas-in-loodramen en originele paneeldeuren versterken de warme en unieke sfeer van deze woning.
De Spieghelstraat ligt in een charmante jaren '30 woonwijk met een prettige sfeer. In de nabije omgeving vind je het groene Kweeklustpark, diverse buurtwinkels en het recent vernieuwde winkelcentrum "Diamantplein" voor je dagelijkse boodschappen. Daarnaast bevinden het NS-station Leiden Centraal, het Bio Science Park, museum Naturalis en het LUMC zich op korte afstand. De woning is uitstekend bereikbaar dankzij de nabijheid van de A44 en N206, en parkeren in de straat is ruim voldoende en gemakkelijk. Bovendien zijn er in de buurt meerdere goed aangeschreven basisscholen, wat de locatie ideaal maakt voor gezinnen.
De afgelopen jaren hebben de huidige eigenaren de woning met aandacht onderhouden* en gemoderniseerd.
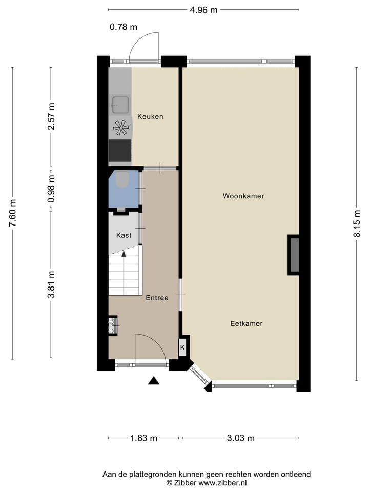
Indeling:
Begane grond: Bij binnenkomst betreedt u de hal, die toegang biedt tot de woon-/eetkamer, de trap naar de bovenverdieping, de keuken en het toilet met fonteintje. De woonkamer kenmerkt zich door een sfeervolle erker met prachtig glas-in-lood. Aan de achterzijde bevindt zich de moderne keuken, uitgerust met diverse inbouwapparatuur, waaronder een inductiekookplaat. De keuken is nu gescheiden van de woonkamer, maar kan door het verwijderen van de dragende muur worden geïntegreerd voor een ruimtelijker gevoel.
Eerste verdieping: Op deze verdieping bevinden zich twee ruime slaapkamers en een royale badkamer. De badkamer is voorzien van een inloopdouche, een stijlvol wastafelmeubel en een hangend toilet. De overloop is ruim genoeg om een werkplek te creëren.
Tweede verdieping: Via een vaste trap bereikt u de derde slaapkamer, ideaal als kinderkamer of logeerkamer. Daarnaast is er een aparte ruimte met de CV-ketel en wasmachineaansluiting, die ook kan dienen als kleine hobbyruimte. Extra bergruimte is beschikbaar op de praktische vliering en achter de knieschotten. Bovendien is de zolderverdieping voorzien van dakisolatie, wat bijdraagt aan extra wooncomfort.
Bijzonderheden:
• Authentieke jaren '30 details met karakter
• Hoekwoning met extra lichtinval
• Gelegen in een groene en levendige buurt
• Ruime opbergmogelijkheden
• Remeha CV-ketel uit 2023
• Bouwtechnisch rapport van Perfectkeur beschikbaar op aanvraag;
• Diverse houten kozijnen dienen vervangen te worden
*Uitgevoerd onderhoud in 2020:
• Alle gasleidingen vanaf de meter naar de CV-ketel zijn volledig vernieuwd.
• Alle waterleidingen zijn vervangen vanaf de watermeter.
• De complete riolering is vernieuwd vanaf de aansluiting in de grond onder het toilet.
• De elektrische installatie is verzwaard naar 3 x 25A en volledig vernieuwd vanaf de meter.
Projectnotaris: Roes de Vries Notarissen Leiden
------
ENGLISH:
What a fantastic home! Located in a charming street in the highly sought-after Lage Mors neighborhood, this characteristic 1930s house exudes charm and authenticity. The property is well-maintained and features a lovely backyard with rear access and a stone storage shed. With a living area of 95 m² and three bedrooms, the house offers plenty of space, with the potential for expansion through an extension. Beautiful details such as stained glass windows and original panel doors enhance the warm and unique atmosphere of this home.
Spieghelstraat is situated in a picturesque 1930s residential area with a pleasant ambiance. Nearby, you’ll find the green Kweeklustpark, various local shops and the recently renovated "Diamantplein" shopping center for your daily groceries. Additionally, Leiden Central Station, the Bio Science Park, Naturalis Museum, and LUMC are all within close reach. The house is easily accessible thanks to its proximity to the A44 and N206, and parking on the street is ample and convenient. Furthermore, several well-regarded primary schools are located in the neighborhood, making this an ideal location for families.
Over the past years, the current owners have carefully maintained* and modernized the home.
Layout:
Ground floor: Upon entering, you step into the hallway, which provides access to the living/dining room, the staircase to the upper floors, the kitchen, and the toilet with a small sink. The living room is characterized by a charming bay window with beautiful stained glass. At the rear, you’ll find the modern kitchen, equipped with various built-in appliances, including an induction cooktop. The kitchen is currently separate from the living room, but by removing the load-bearing wall, it can be integrated for a more open and spacious feel.
First floor: This floor features two spacious bedrooms and a generous bathroom. The bathroom is fitted with a walk-in shower, a stylish vanity unit, and a wall-mounted toilet. The landing is large enough to create a workspace.
Second floor: A fixed staircase leads to the third bedroom, ideal as a child’s room or guest room. Additionally, there is a separate space with the central heating system and washing machine connection, which could also serve as a small hobby room. Extra storage is available in the practical attic and behind the eaves. Moreover, the attic floor is equipped with roof insulation, contributing to additional living comfort.
Special features:
• Authentic 1930s details with character
• Corner house with extra natural light
• Located in a green and lively neighborhood
• Ample storage options
• Remeha central heating system from 2023
• Structural inspection report from Perfectkeur available upon request
• Some wooden window frames need replacement
Maintenance carried out in 2020:
• All gas pipes from the meter to the central heating system were completely renewed.
• All water pipes were replaced from the water meter.
• The entire sewage system was renewed from the ground connection beneath the toilet.
• The electrical installation was upgraded to 3 x 25A and fully renewed from the meter.
Designated notary: Roes de Vries Notarissen Leiden
Kenmerken
Overdracht
- Laatste vraagprijs
- € 535.000 kosten koper
- Vraagprijs per m²
- € 5.632
- Status
- Verkocht
Bouw
- Soort woonhuis
- Eengezinswoning, hoekwoning
- Soort bouw
- Bestaande bouw
- Bouwjaar
- 1933
- Soort dak
- Zadeldak bedekt met pannen
- Keurmerken
- Bouwkundige Keuring
Oppervlakten en inhoud
- Gebruiksoppervlakten
- Wonen
- 95 m²
- Externe bergruimte
- 6 m²
- Perceel
- 137 m²
- Inhoud
- 335 m³
Indeling
- Aantal kamers
- 4 kamers (3 slaapkamers)
- Aantal badkamers
- 1 badkamer en 1 apart toilet
- Badkamervoorzieningen
- Inloopdouche, toilet, en wastafelmeubel
- Aantal woonlagen
- 3 woonlagen
- Voorzieningen
- Dakraam en natuurlijke ventilatie
Energie
- Energielabel
- Isolatie
- Dakisolatie
- Verwarming
- Cv-ketel
- Warm water
- Cv-ketel
- Cv-ketel
- Remeha Tzerra ACE CW4 HR (gas gestookt combiketel uit 2023, eigendom)
Kadastrale gegevens
- LEIDEN R 244
- Kadastrale kaart
- Oppervlakte
- 137 m²
- Eigendomssituatie
- Volle eigendom
Buitenruimte
- Ligging
- Aan rustige weg en in woonwijk
- Tuin
- Achtertuin en voortuin
- Achtertuin
- 62 m² (11,20 meter diep en 5,50 meter breed)
- Ligging tuin
- Gelegen op het noordoosten bereikbaar via achterom
Bergruimte
- Schuur/berging
- Vrijstaande stenen berging
- Voorzieningen
- Elektra
Parkeergelegenheid
- Soort parkeergelegenheid
- Betaald parkeren en parkeervergunningen
Foto's 40
© 2001-2026 funda







































