Dit huis op Funda: https://www.funda.nl/detail/koop/leidschendam/huis-t-hert-130/43715100/

Omschrijving
't Hert 130 in Leidschendam
Op gewilde locatie, in kindvriendelijke woonwijk, gelegen royale en moderne 5 kamer tussen-eengezinswoning.
Zeer gunstig gesitueerd ten opzichte van de gezellige gerenoveerde Damlaan en de Sluisjes met gezellige winkels en restaurantjes.
Ook het populaire Mall of the Netherlands ligt op enkele minuten fietsafstand.
Mede door de gunstige ligging nabij uitvalswegen en het recreatiegebied Vlietlanden maken dit een ideale woonomgeving.
Het woonhuis is in 2019 volledig en hoogwaardig gemoderniseerd.
Het woonhuis beschikt over deels nieuwe kunststof kozijnen met HR++ beglazing, fraaie laminaatvloeren in visgraat motief en een moderne keuken en moderne badkamer. Door de gunstige zonligging en de aangebouwde serre verlengt u de seizoenen waarin u heerlijk buiten kunt zitten.
Kortom een ideaal en instapklaar gezinshuis voor vele jaren woonplezier.
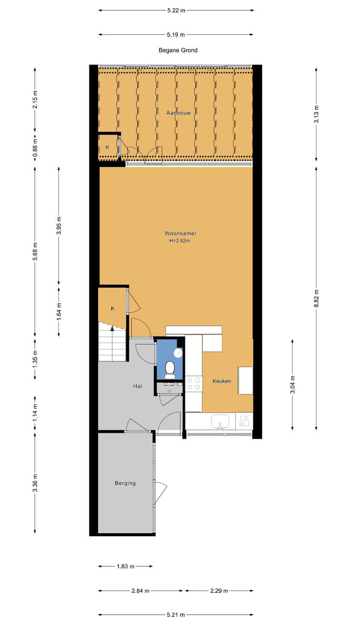
Indeling:
Toegang tot de fraai aangelegde voortuin met berging.
Hal met uitgebreide meterkast, modern wc met fontein, doorloop naar de woonkamer met aangebouwde serre en toegang tot de prachtig aangelegde en zongerichte tuin op het zuidoosten.
Aan de voorzijde gesitueerde moderne keuken in hoekopstelling met diverse inbouwapparatuur waaronder een inductie kookplaat, combi-magnetron/ oven, afwasmachine en afzuigkap.
Het woonhuis is op de gehele begane grond vloer voorzien van een fraaie visgraat laminaatvloer.
1e etage:
Ruime overloop.
Royale slaapkamer aan de voorzijde over de volledige breedte.
Twee slaapkamers aan de achterzijde.
Moderne tussengelegen en vergrootte moderne badkamer, met inloopdouche, wc en wastafelmeubel.
2e etage:
Via de stoere stalen deur toegang tot de fraai ingedeelde slaapkamer met grote dakkapel over de volledige breedte.
In de slaapkamer bevindt zich tevens de aansluiting voor de wasmachine en droger alsmede de stookruimte met CV combiketel.
Bijzonderheden:
Gelegen op eigen grond.
Verwarming en warmwater via CV combiketel
Het gehele woonhuis is voorzien van prachtige laminaatvloeren.
Het woonhuis is grotendeels voorzien van dubbele beglazing en deels voorzien van HR++ beglazing.
Verkoopvoorwaarden van toepassing.
Ouderdom en milieu clausule van toepassing.
Kenmerken
Overdracht
- Laatste vraagprijs
- € 529.000 kosten koper
- Vraagprijs per m²
- € 4.408
- Status
- Verkocht
Bouw
- Soort woonhuis
- Eengezinswoning, tussenwoning
- Soort bouw
- Bestaande bouw
- Bouwjaar
- 1973
- Soort dak
- Zadeldak bedekt met pannen
Oppervlakten en inhoud
- Gebruiksoppervlakten
- Wonen
- 120 m²
- Overige inpandige ruimte
- 7 m²
- Gebouwgebonden buitenruimte
- 15 m²
- Perceel
- 143 m²
- Inhoud
- 422 m³
Indeling
- Aantal kamers
- 5 kamers (4 slaapkamers)
- Aantal badkamers
- 1 badkamer en 1 apart toilet
- Badkamervoorzieningen
- Dubbele wastafel, inloopdouche, toilet, en wastafelmeubel
- Aantal woonlagen
- 3 woonlagen
- Voorzieningen
- Buitenzonwering en TV kabel
Energie
- Energielabel
- B
- Isolatie
- Dakisolatie, dubbel glas, muurisolatie en vloerisolatie
- Verwarming
- Cv-ketel
- Warm water
- Cv-ketel
- Cv-ketel
- Gas gestookt combiketel uit 2015, eigendom
Kadastrale gegevens
- STOMPWIJK E 1134
- Kadastrale kaart
- Oppervlakte
- 143 m²
- Eigendomssituatie
- Volle eigendom
Buitenruimte
- Ligging
- Aan rustige weg, in woonwijk en vrij uitzicht
- Tuin
- Achtertuin en voortuin
- Achtertuin
- 61 m² (11,30 meter diep en 5,40 meter breed)
- Ligging tuin
- Gelegen op het zuidoosten
Bergruimte
- Schuur/berging
- Aangebouwde stenen berging
Parkeergelegenheid
- Soort parkeergelegenheid
- Openbaar parkeren
Foto's 51
© 2001-2025 funda


















































