Dit huis op Funda: https://www.funda.nl/detail/koop/lekkerkerk/huis-achterstraat-16/43155452/

Omschrijving
Wonen in een karakteristiek pand midden in het oude centrum van Lekkerkerk? Dit is zo’n woning die meteen opvalt. De gevel van oude IJsselsteentjes en charmante details geven het huis direct sfeer. Binnen tref je een indeling die nét wat anders is dan standaard.
De living is op de verdieping: een lichte ruimte met zichtbare balkconstructie en volop karakter. Op de begane grond tref je drie slaapkamers én de badkamer.
Buiten is er een fijn dakterras: ideaal voor wie houdt van gezellig buiten zitten en geen groene vingers heeft.
De ligging maakt het plaatje compleet. In het hart van de historische dorpskern, omringd door smalle straten en oude panden, woon je hier in een rustige en prettige omgeving. De bakker is letterlijk om de hoek, net als andere dagelijkse voorzieningen. En voor een wandeling langs de Lek of een kop koffie op het dorpsplein hoef je ook niet ver.
Indeling
Begane grond:
De entree bevindt zich aan de zijkant van het huis. Je komt binnen in de hal met genoeg ruimte voor de jassen en de schoenen. Ook verleent deze toegang tot de drie slaapkamers, de badkamer, een aparte wasruimte en de meterkast.
Al direct bij binnenkomst valt op hoe verzorgd en degelijk de woning is afgewerkt. De plavuizen vloer en de zichtbare houten balkconstructie geven het geheel karakter en een knipoog naar het oorspronkelijke bouwjaar.
Aan de voorzijde van de woning ligt de 'masterbedroom.' met strakke wanden, een gestuukt plafond en ruimte voor een flinke kastenwand. Ook de afwerking is hier tot in de puntjes verzorgd. De naastgelegen badkamer is modern uitgevoerd met een met een grote inloopdouche en een fris wastafelmeubel in een vrolijke kleur.
Verder zijn er aan de achterzijde nog twee slaapkamers van een vergelijkbaar formaat. Licht, netjes en veelzijdig in gebruik: ideaal als kinderkamer, werkkamer of logeerruimte. Een van de kamers heeft een deur naar buiten, met een buitenruimte met overkapping. Ideaal als je even de was wilt ophangen of beschut een frisse neus wilt halen.
Wat je woonwensen ook zijn, je kunt hier alle kanten op.
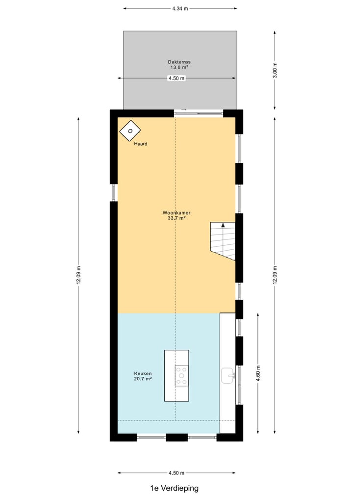
Via de open trap in de hal komen we in de living op de verdieping.
Verdieping:
Boven tref je een verrassend leuke en unieke ruimte. Dankzij de vele ramen en lichte kleuren is het hier heerlijk licht. Details die direct in het oog springen zijn de open balken constructie en de hoogte van de nok. Ook hier is de afwerking weer keurig.
Het is een kamer waar je voldoende ruimte hebt om lekker te loungen. Een grote bank, een loveseat, een mooi tv-meubel en je bent klaar om te ontspannen. Een gezellige houtkachel in de hoek maakt het helemaal af.
Vanuit de woonkamer stap je zo het dakterras op. Een fijne buitenruimte, perfect voor een ontspannen moment met een kop koffie of een goed boek. Ondanks de ligging aan de noordzijde zit je hier heerlijk in de zon.
Binnen, aan de andere kant, is de woonkeuken. Hier is ook meer dan ruimte voor een grote eettafel, perfect voor lange diners of gezellige borrels met vrienden. De keuken is geplaatst in een rechte opstelling tegen de muur en separaat een kookeiland met bar, helemaal van deze tijd met onderkasten. Natuurlijk is alle benodigde apparatuur aanwezig: een inductiekookplaat, een afzuigkap, een koel/vriescombinatie een vaatwasmachine en een oven.
Algemeen:
Remeha Cv HR ketel bouwjaar 2010
Schilderwerk zomer 2025
Vloerverwarming in de badkamer
Bij deze woning is een definitief energielabel C aanwezig
Bijlage bepalingen bij verkoopprocedure zijn van toepassing
Deze woning beschikt over een energielabel C. Hierdoor is het mogelijk om een hoger bedrag te financieren. Dit betreft een bedrag van € 5.000,-. Daarnaast is het mogelijk om een extra bedrag van € 15.000 ,- te financieren voor energiebesparende voorzieningen.
Voor meer informatie kan je terecht bij jouw hypotheekadviseur en op Meetinstructie is gebaseerd op de NEN2580. De Meetinstructie is bedoeld om een meer eenduidige manier van meten toe te passen voor het geven van een indicatie van de gebruiksoppervlakte. De Meetinstructie sluit verschillen in meetuitkomsten niet volledig uit, door bijvoorbeeld interpretatieverschillen, afrondingen of beperkingen bij het uitvoeren van de meting.
Deze informatie is door ons met de nodige zorgvuldigheid samengesteld. Onzerzijds wordt echter geen enkele aansprakelijkheid aanvaard voor enige onvolledigheid, onjuistheid of anderszins, dan wel de gevolgen daarvan. Alle opgegeven maten en oppervlakten zijn indicatief.
Kenmerken
Overdracht
- Laatste vraagprijs
- € 375.000 kosten koper
- Vraagprijs per m²
- € 3.538
- Status
- Verkocht
Bouw
- Soort woonhuis
- Eengezinswoning, eindwoning
- Soort bouw
- Bestaande bouw
- Bouwjaar
- 1906
- Soort dak
- Zadeldak bedekt met pannen
Oppervlakten en inhoud
- Gebruiksoppervlakten
- Wonen
- 106 m²
- Overige inpandige ruimte
- 6 m²
- Gebouwgebonden buitenruimte
- 23 m²
- Perceel
- 115 m²
- Inhoud
- 454 m³
Indeling
- Aantal kamers
- 4 kamers (3 slaapkamers)
- Aantal badkamers
- 1 badkamer
- Badkamervoorzieningen
- Inloopdouche, vloerverwarming, en wastafelmeubel
- Aantal woonlagen
- 2 woonlagen
- Voorzieningen
- Mechanische ventilatie en natuurlijke ventilatie
Energie
- Energielabel
- C
- Isolatie
- Dakisolatie en grotendeels dubbelglas
- Verwarming
- Cv-ketel, open haard en gedeeltelijke vloerverwarming
- Warm water
- Cv-ketel
- Cv-ketel
- Remeha HR (gas gestookt combiketel uit 2010, eigendom)
Kadastrale gegevens
- LEKKERKERK C 4619
- Kadastrale kaart
- Oppervlakte
- 115 m²
- Eigendomssituatie
- Volle eigendom
Buitenruimte
- Ligging
- Aan rustige weg en in centrum
- Balkon/dakterras
- Dakterras aanwezig
Bergruimte
- Schuur/berging
- Inpandig
- Voorzieningen
- Elektra
- Isolatie
- Geen isolatie
Parkeergelegenheid
- Soort parkeergelegenheid
- Openbaar parkeren
Foto's 31
© 2001-2025 funda






























