
Omschrijving
COMFORTABEL STARTERSAPPARTEMENT + PP IN HARTJE CENTRUM
Dit lichte appartement (1979) is de bovenste hoekwoning van een goed onderhouden appartementencomplex middenin het gezellige centrum van Lelystad. Ideaal voor wie in het hart van het bruisende stadsleven wil wonen!
Het 2-kamerappartement met eigen parkeerplaats is voorzien van alles wat je nodig hebt voor een fijn thuis en heeft als fijne bonus een ontzettend ruim balkon dat toegankelijk is vanuit zowel de woon- als slaapkamer.
Kom jij binnenkort thuis op deze leuke plek? Neem snel contact met ons op om een bezichtiging in te plannen!
De gestelde prijs betreft een "bieden vanaf" prijs. Ieder serieus voorstel boven de genoemde “bieden vanaf” prijs zal door verkopers in overweging worden genomen.
Over de ligging en de buurt:
Dit appartement is gelegen in het stadshart van Lelystad. Alle voorzieningen zijn zodoende op loopafstand gelegen. Een drankje op het terras, een avondje uit bij het theater of de bioscoop, lekker uiteten, een middagje winkelen... Alles doe je gewoon te voet! Ook voor wie veel met het openbaar vervoer reist, is de ligging ideaal want het hoofdstation van Lelystad bevindt zich natuurlijk ook op loopafstand. Ook zijn de uitvalswegen uitstekend bereikbaar en heeft Lelystad een erg gunstige ligging ten opzichte van de Randstad.
Indeling van de woning:
Begane grond:
Gezamenlijke entree met bel/intercom, brievenbussen en trappenhuis.
Appartement op de 2e etage:
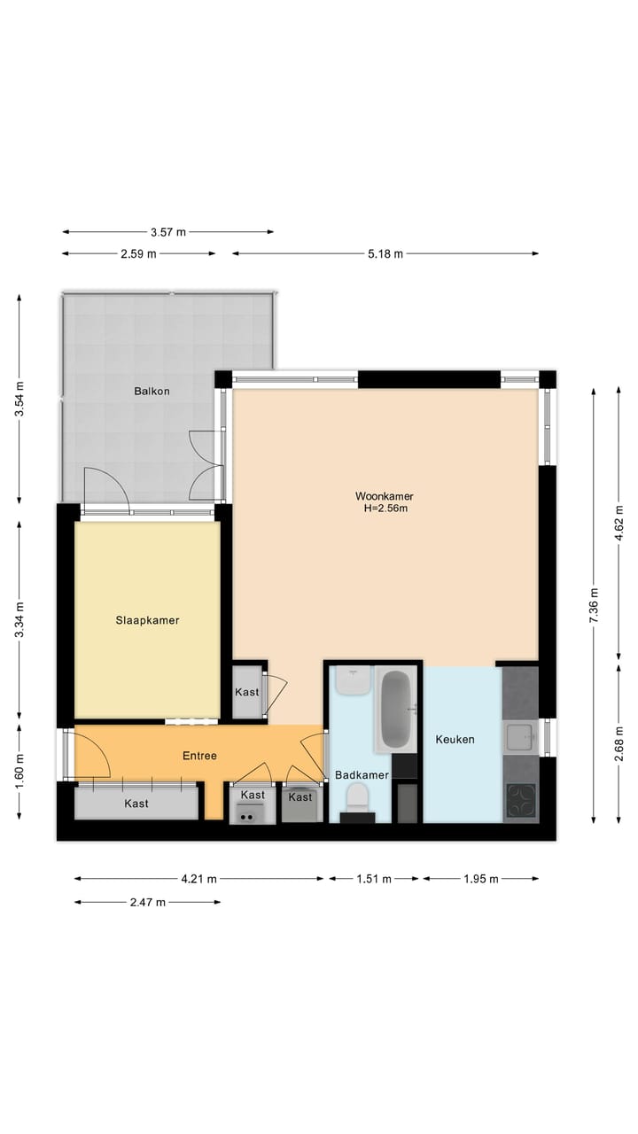
Via het gezamenlijke trappenhuis bereiken we het appartement op de tweede etage van het complex. We komen binnen in de entreehal die toegang biedt tot alle ruimtes van het appartement.
De woonkamer is lekker ruim en door de aanwezigheid van grote raampartijen (incl. zijramen aan beide zijden) is het hier heerlijk licht en sfeervol. Openslaande balkondeuren bieden toegang tot het riante balkonterras.
De moderne open keuken is voorzien van een inductiekookplaat.
Het appartement beschikt over 1 slaapkamers van een goed formaat, welke tevens toegang biedt tot het balkon.
De badkamer is voorzien van een zwevend toilet, wastafel en een ligbad met douche.
De aansluitingen voor de witgoedopstelling zijn handig weggewerkt in een aparte kast in de hal.
Het gehele appartement is afgewerkt met een vinylvloer.
Parkeren en berging:
Eigen parkeerplaats op het beveiligde parkeerterrein.
Eigen (fietsen)berging.
Kenmerken van de woning:
• Licht 2-kamerappartement op een gunstige locatie in het centrum van Lelystad
• Bovenste hoekappartement
• Zeer ruim balkonterras
• Eigen parkeerplek en (fietsen)berging
• Alle voorzieningen van het centrum onder handbereik
• Energielabel: C
• Volledige eigendom
Kenmerken
Overdracht
- Laatste vraagprijs
- € 250.000 kosten koper
- Vraagprijs per m²
- € 4.808
- Status
- Verkocht
- Bijdrage VvE
- € 138,00 per maand
Bouw
- Soort appartement
- Portiekflat (appartement)
- Soort bouw
- Bestaande bouw
- Bouwjaar
- 1979
- Soort dak
- Plat dak bedekt met bitumineuze dakbedekking
Oppervlakten en inhoud
- Gebruiksoppervlakten
- Wonen
- 52 m²
- Gebouwgebonden buitenruimte
- 10 m²
- Externe bergruimte
- 5 m²
- Inhoud
- 172 m³
Indeling
- Aantal kamers
- 2 kamers (1 slaapkamer)
- Aantal badkamers
- 1 badkamer
- Badkamervoorzieningen
- Ligbad, toilet, en wastafel
- Aantal woonlagen
- 2 woonlagen
- Voorzieningen
- Natuurlijke ventilatie en TV kabel
- Gelegen op
- 2e woonlaag
Energie
- Energielabel
- C
- Isolatie
- Dakisolatie, gedeeltelijk dubbel glas, muurisolatie en vloerisolatie
- Verwarming
- Cv-ketel
- Warm water
- Cv-ketel
- Cv-ketel
- HR combiketel (gas gestookt combiketel uit 2005, eigendom)
Kadastrale gegevens
- LELYSTAD M 2864
- Kadastrale kaart
- Eigendomssituatie
- Volle eigendom
Buitenruimte
- Ligging
- In centrum en vrij uitzicht
- Balkon/dakterras
- Balkon aanwezig
Bergruimte
- Schuur/berging
- Box
- Voorzieningen
- Elektra
Garage
- Soort garage
- Parkeerplaats
Parkeergelegenheid
- Soort parkeergelegenheid
- Op afgesloten terrein en op eigen terrein
VvE checklist
- Inschrijving KvK
- Ja
- Jaarlijkse vergadering
- Ja
- Periodieke bijdrage
- Ja (€ 138,00 per maand)
- Reservefonds aanwezig
- Ja
- Onderhoudsplan
- Ja
- Opstalverzekering
- Ja
Foto's 29
© 2001-2025 funda




























