Dit huis op Funda: https://www.funda.nl/detail/koop/lelystad/huis-botter-32-12/43858034/

Omschrijving
Kam & Bronotte makelaars biedt aan: Botter 32-12 te Lelystad. In de centraal gelegen-, kindvriendelijke- en gewilde woonwijk de 'Botter' staat deze goed zeer ruime ééngezinswoning met aangebouwde stenen berging en parkeren op eigen terrein. De woning is afgewerkt met kunststof kozijnen en beschikt onder meer over een ruime tuingerichte woonkamer, inbouwkeuken voorzien van diverse inbouwapparatuur, 3 ruime slaapkamers op de eerste verdieping, betegelde badkamer en een royale open zolderverdieping waar eenvoudig een extra (4e) slaapkamer te realiseren is.
Wonen in woonwijk de 'Botter' betekent wonen met nagenoeg alle denkbare/ gewenste voorzieningen op loop-/ fietsafstand gelegen. Zo bereikt u op enkele loopminuten meerdere buurtwinkelcentra (buurtwinkelcentrum De Botter en buurtwinkelcentrum De Tjalk), een gezondheidscentrum en ook het stadscentrum van Lelystad met Lelystad CS bus-/ treinstation is snel te bereiken.
"Nu bieden vanaf € 325.000,- k.k. De gestelde vraagprijs betreft een "bieden vanaf prijs". Biedingen vanaf € 325.000,- k.k. zullen door verkoper in behandeling genomen worden".
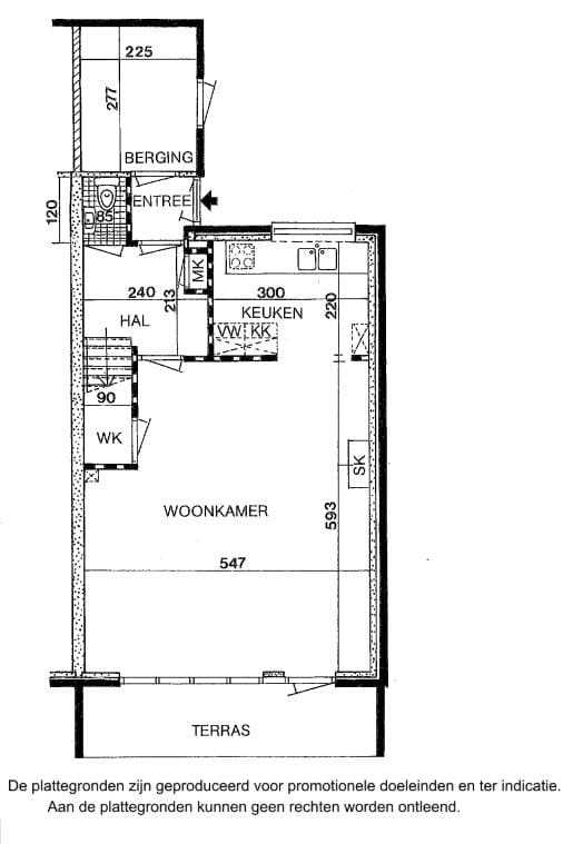
Indeling:
Entree, hal met meterkast en toiletruimte met fonteintje. Van binnenuit te bereiken aangebouwde stenen berging. Ruime tuingerichte woonkamer met kunststof schuifpui én loopdeur naar de tuin aan de achterzijde. Inbouwkeuken aan de voorzijde van de woning gesitueerd voorzien van diverse inbouwapparatuur. Ruime opstelmogelijkheden voor een grote eettafel.
Verdieping 1:
Overloop. 3 grote slaapkamers. Betegelde badkamer voorzien van een ligbad met douche, wastafel, (tweede) toilet, radiator en een raam voor natuurlijk lichtinval en ventilatie. Vaste trap naar tweede verdieping.
Verdieping 2:
Grote open zolderverdieping met dakraam. Op deze verdieping is zeer eenvoudig een extra slaapkamer te realiseren.
Tuin:
Onderhoudsarme tuin op het zonnige westen gesitueerd. Aan de voorzijde van de woning is er parkeergelegenheid op eigen terrein.
Bijzonderheden:
Robuuste ééngezinswoning gelegen in de gewilde en centraal gelegen woonwijk de 'Botter'.
Woning is afgewerkt met kunststof kozijnen
3 ruime slaapkamers op de eerste verdieping en een royale open zolderverdieping.
Parkeergelegenheid op eigen terrein.
Op loop-/ fietsafstand van buurtwinkelcentrum de 'Botter', gezondheidscentrum, diverse (basis)scholen en stadcentrum van Lelystad met Lelystad CS bus-/ en treinstation gelegen.
Energielabel B.
143 m2 eigen grond.
Bouwjaar 1980.
Oplevering in overleg; een snelle oplevering is mogelijk.
Een bod uitbrengen op deze woning gaat via het 'Eerlijk Bieden' systeem. Vraag de link naar het biedingsformulier via ons kantoor óf klik op de button "Breng een bod uit" op onze eigen website.
"Nu bieden vanaf € 325.000,- k.k. De gestelde vraagprijs betreft een "bieden vanaf prijs". Biedingen vanaf € 325.000,- k.k. zullen door verkoper in behandeling genomen worden".
Botter 32-12
8243 KJ
LELYSTAD
Kenmerken
Overdracht
- Oorspronkelijke vraagprijs
- € 360.000 kosten koper
- Laatste vraagprijs
- € 325.000 kosten koper
- Vraagprijs per m²
- € 2.539
- Status
- Verkocht
Bouw
- Soort woonhuis
- Eengezinswoning, tussenwoning
- Soort bouw
- Bestaande bouw
- Bouwjaar
- 1980
- Specifiek
- Gestoffeerd
- Soort dak
- Zadeldak bedekt met pannen
Oppervlakten en inhoud
- Gebruiksoppervlakten
- Wonen
- 128 m²
- Overige inpandige ruimte
- 5 m²
- Perceel
- 143 m²
- Inhoud
- 375 m³
Indeling
- Aantal kamers
- 5 kamers (4 slaapkamers)
- Aantal woonlagen
- 3 woonlagen
Energie
- Energielabel
- B
- Isolatie
- Dubbel glas
- Verwarming
- Cv-ketel
- Warm water
- Cv-ketel
- Cv-ketel
- Intergas HR (gas gestookt combiketel)
Kadastrale gegevens
- LELYSTAD O 407
- Kadastrale kaart
- Oppervlakte
- 143 m²
- Eigendomssituatie
- Volle eigendom
Buitenruimte
- Ligging
- Aan rustige weg en in woonwijk
- Tuin
- Achtertuin
- Achtertuin
- 55 m² (10,00 meter diep en 5,50 meter breed)
- Ligging tuin
- Gelegen op het westen bereikbaar via achterom
Bergruimte
- Schuur/berging
- Aangebouwde stenen berging
Garage
- Soort garage
- Parkeerplaats
Parkeergelegenheid
- Soort parkeergelegenheid
- Op eigen terrein
Foto's 17
© 2001-2025 funda
















