
De Schepershilt 43831 NS LeusdenHamershof
€ 399.000 k.k.
Omschrijving
Een heerlijk hoek-appartement boven "De Hamershof" Op zoek naar een fijn appartement midden in het winkelcentrum van Leusden? Kom dan snel kijken bij dit appartement aan de Schepershilt 4 in Leusden.
Dit appartement uit 1983 is in 2018 volledig verduurzaamd. Hierbij zijn alle kozijnen, het dak en isolatie vernieuwd en is het appartement voorzien van zonnepanelen en een warmtepomp. Daarmee heeft het appartement energielabel A+++
Verder beschikt het appartement over 3 slaapkamers, een ruime woonkamer en 2 balkons. Ook is er een eigen fietsenberging aanwezig. Een extra pluspunt is dat het appartement is gelegen boven winkelcentrum De Hamershof. Hiermee heb je alle voorzieningen binnen loopafstand.
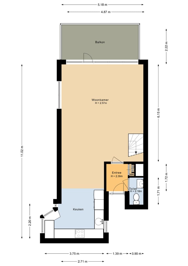
De indeling:
Bij binnenkomst kom je in de hal waar zich het toilet en de meterkast bevinden. Via de tussendeur betreed je de woonkamer met open keuken. De keuken is voorzien van diverse inbouwapparatuur waar je heerlijk kan kokkerellen. Tijdens het koken kan je gemakkelijk contact houden met gasten of gezinsleden door de open keuken. En omdat het appartement een hoekligging heeft kijk je tijdens het koken ook heerlijk naar buiten.
De woonkamer ligt aan de voorkant van het appartement en is door het grote raampartij erg licht. Via de balkondeur tref je het balkon waar je heerlijk kan genieten van de zon.
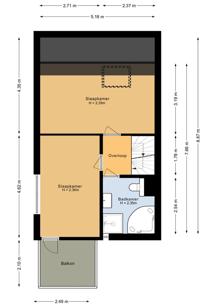
De eerste verdieping is voorzien van twee ruime slaapkamers (waarvan 1 met balkon) en badkamer. De badkamer is voorzien van een douchecabine, wastafel, toilet en ruim hoekbad. Een fijne ruimte waar je je klaar kan maken voor de dag.
De tweede verdieping is voorzien van voorzolder met installatieruimte waar zich de omvormer en warmtepomp bevinden. De zolderkamer wordt op dit moment gebruikt als opbergruimte, maar kan ook gemakkelijk gebruikt worden als hobby- of slaapkamer. Hiervoor is meer dan voldoende ruimte.
Bijzonderheden
- woonoppervlak 106m2
- energielabel A+++
- ruime woonkamer
- zonnig terras
- eigen berging
Extra informatie:
Voor de renovatie van de appartementen in 2018 is een lening aangegaan door de VVE waardoor de maandelijkse bijdrage €455 is (deels aftrekbaar), hier tegenover staat dat de energielasten erg laag zijn.
Kenmerken
Overdracht
- Aangeboden sinds
- Aanvaarding
- In overleg
- Vraagprijs
- € 399.000 kosten koper
- Vraagprijs per m²
- € 3.764
- Status
- Beschikbaar
- Bijdrage VvE
- € 455,00 per maand
Bouw
- Soort appartement
- Maisonnette (appartement met open portiek)
- Soort bouw
- Bestaande bouw
- Bouwjaar
- 1983
- Soort dak
- Zadeldak bedekt met metaal
Oppervlakten en inhoud
- Gebruiksoppervlakten
- Wonen
- 106 m²
- Gebouwgebonden buitenruimte
- 16 m²
- Externe bergruimte
- 7 m²
- Inhoud
- 359 m³
Indeling
- Aantal kamers
- 4 kamers (3 slaapkamers)
- Aantal badkamers
- 1 badkamer en 1 apart toilet
- Badkamervoorzieningen
- Douche, ligbad, toilet, en wastafel
- Aantal woonlagen
- 3 woonlagen
- Voorzieningen
- Dakraam, glasvezelkabel, mechanische ventilatie, TV kabel, en zonnepanelen
- Gelegen op
- 1e woonlaag
Energie
- Energielabel
- A+++
- Isolatie
- Dakisolatie, HR-glas, muurisolatie, vloerisolatie en volledig geïsoleerd
- Verwarming
- Warmtepomp
- Warm water
- Elektrische boiler
Kadastrale gegevens
- LEUSDEN F 3362
- Kadastrale kaart
- Eigendomssituatie
- Volle eigendom
Buitenruimte
- Ligging
- In centrum
- Balkon/dakterras
- Balkon aanwezig
Bergruimte
- Schuur/berging
- Vrijstaande stenen berging
- Voorzieningen
- Elektra
Parkeergelegenheid
- Soort parkeergelegenheid
- Openbaar parkeren
VvE checklist
- Inschrijving KvK
- Ja
- Jaarlijkse vergadering
- Ja
- Periodieke bijdrage
- Ja (€ 455,00 per maand)
- Reservefonds aanwezig
- Ja
- Onderhoudsplan
- Ja
- Opstalverzekering
- Ja
Foto's 34
© 2001-2025 funda

































