Dit huis op Funda: https://www.funda.nl/detail/koop/lisse/huis-wagenstraat-9/43827343/

Omschrijving
Midden in het sfeervolle centrum van Lisse, ligt deze charmante twee-onder-een-kapwoning. Deze sfeervolle en goed verzorgde woning heeft nog diverse goed bewaarde karakteristieke details. Maak snel een afspraak voor een bezichtiging en kom het zelf bekijken!
Indeling
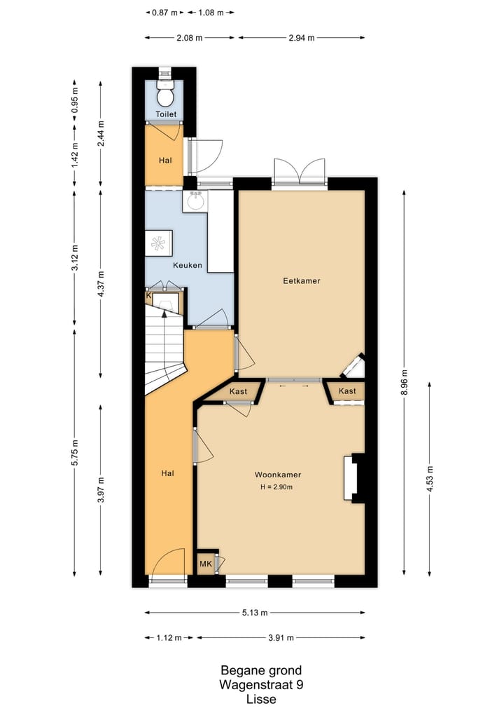
Begane grond:
De woning heeft een ruime kamer-en-suite woonkamer, voorzien van authentieke afsluitbare schuifdeuren en ingebouwde kasten. Zowel in de voor- als achterkamer bevindt zich een schouw en de ruimte is afgewerkt met een fraaie laminaatvloer (2024). De achterkamer biedt via openslaande deuren toegang tot de achtertuin.
De keuken bevindt zich aan de achterzijde van de woning en is voorzien van een kast met aansluitingen voor de wasmachine en extra bergruimte. Aangrenzend een tussenhal met toiletruimte en een deur naar de achtertuin.
De achtertuin, gelegen op het westen, is aangelegd met authentieke oude klinkers en beschikt over een achterom en een ruime houten berging met elektra.
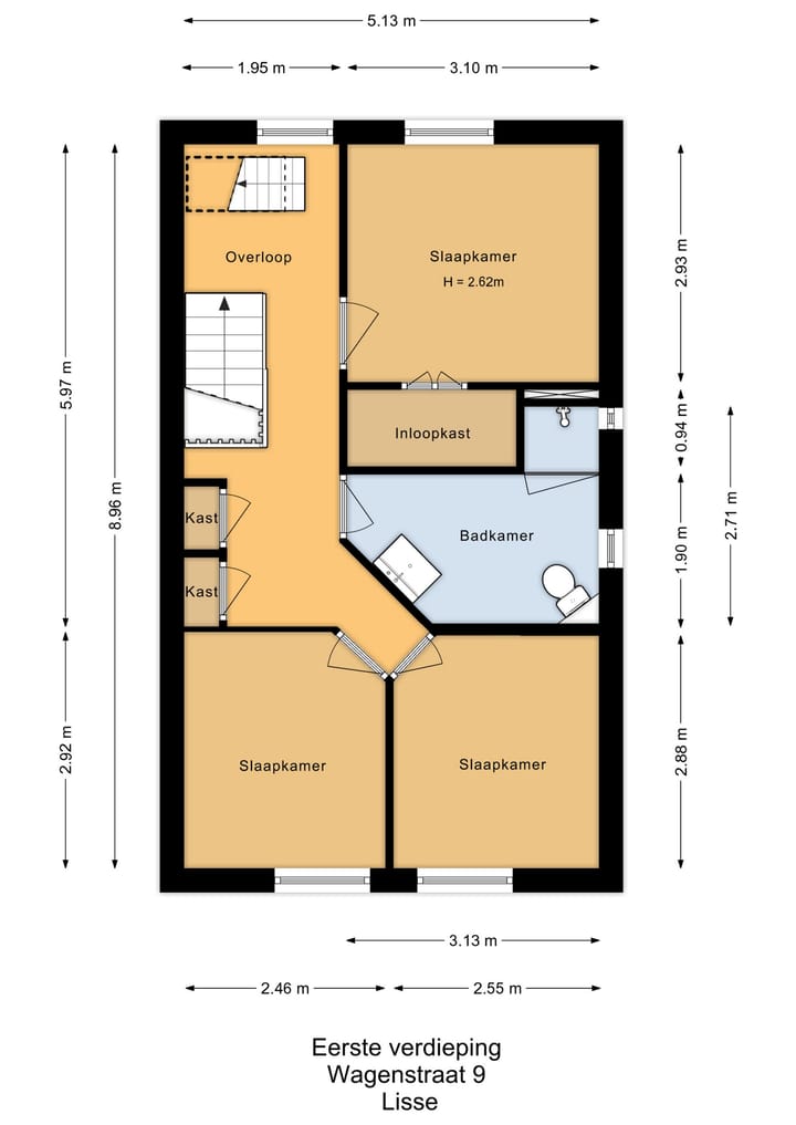
Eerste verdieping:
De royale overloop met twee vaste kasten, geeft toegang tot drie slaapkamers, de badkamer en de vaste trap naar de vliering. Aan de voorzijde bevinden zich twee slaapkamers. Aan de achterzijde ligt de derde slaapkamer, voorzien van inloopkast. De badkamer is uitgerust met een douche, toilet en wastafel in meubel.
Vliering:
De vliering is bereikbaar via een vaste trap, volledig bevloerd en heeft een nokhoogte van circa 1,50 meter, wat extra opbergruimte biedt. Hier hangt ook de CV-ketel (Remeha Avanta 28C, bouwjaar 2011).
Bijzonderheden:
• Nagenoeg overal dubbel glas (HR++ glas);
• Geïsoleerde plafonds en muurisolatie;
• Ruime achtertuin op het westen met achterom;
• Op loopafstand van winkels en horecagelegenheden.
Kenmerken
Overdracht
- Laatste vraagprijs
- € 425.000 kosten koper
- Vraagprijs per m²
- € 4.521
- Status
- Verkocht
Bouw
- Soort woonhuis
- Eengezinswoning, 2-onder-1-kapwoning
- Soort bouw
- Bestaande bouw
- Bouwjaar
- 1910
- Specifiek
- Beschermd stads- of dorpsgezicht
- Soort dak
- Dwarskap bedekt met pannen
Oppervlakten en inhoud
- Gebruiksoppervlakten
- Wonen
- 94 m²
- Externe bergruimte
- 9 m²
- Perceel
- 102 m²
- Inhoud
- 351 m³
Indeling
- Aantal kamers
- 6 kamers (3 slaapkamers)
- Aantal badkamers
- 1 badkamer en 1 apart toilet
- Badkamervoorzieningen
- Douche, toilet, wastafel, en wastafelmeubel
- Aantal woonlagen
- 3 woonlagen
- Voorzieningen
- Glasvezelkabel en mechanische ventilatie
Energie
- Energielabel
- E
- Isolatie
- Grotendeels dubbelglas, HR-glas en muurisolatie
- Verwarming
- Cv-ketel
- Warm water
- Cv-ketel en elektrische boiler
- Cv-ketel
- Remeha Avanta 28c (gas gestookt combiketel uit 2011, eigendom)
Kadastrale gegevens
- LISSE D 4339
- Kadastrale kaart
- Oppervlakte
- 102 m²
- Eigendomssituatie
- Volle eigendom
Buitenruimte
- Ligging
- Aan rustige weg, beschutte ligging en in centrum
- Tuin
- Achtertuin
- Achtertuin
- 49 m² (9,31 meter diep en 5,22 meter breed)
- Ligging tuin
- Gelegen op het westen bereikbaar via achterom
- Balkon/dakterras
- Dakterras aanwezig
Bergruimte
- Schuur/berging
- Aangebouwde houten berging
- Voorzieningen
- Elektra
Parkeergelegenheid
- Soort parkeergelegenheid
- Openbaar parkeren en parkeervergunningen
Foto's 38
© 2001-2025 funda





































