Dit huis op Funda: https://www.funda.nl/detail/koop/lunteren/huis-achterstraat-41/43092212/

Omschrijving
Comfortabel wonen nabij het hart van Lunteren? Dan is deze instapklare vrijstaande woning aan de Achterstraat 41 misschien precies wat je zoekt! Deze keurig onderhouden woning uit 1974 beschikt over een slaapkamer én badkamer op de begane grond – ideaal voor wie gelijkvloers wil wonen. Daarnaast is in 2020 de begane grond geheel gemoderniseerd en is er o.a. een luxe woonkeuken en comfortabele vloerverwarming gerealiseerd. Met een heerlijke tuin op een perceel van 645 m² met sfeervolle veranda, berging en een overkapping, biedt dit object dus comfort én ruimte. De ligging is perfect: op loopafstand van het dorp met een diversiteit aan winkels, het station en het prachtige Luntersche Buurtbosch. De woning beschikt over 3 slaapkamers en is dus ook geschikt voor gezinnen. Parkeren? Geen probleem – dat kan genoeg op eigen terrein. Klinkt dit als jouw nieuwe thuis? Neem gerust contact met ons op voor een bezichtiging. Je bent van harte welkom!
Indeling
Via de entree stap je binnen in een ruime hal die toegang biedt tot de toiletruimte met wandcloset en fontein, trap naar de 1e verdieping, meterkast (met glasvezelaansluiting), slaapkamer en de lichte woon-/eetkamer. De woonkamer ligt aan de voorzijde van de woning en is sfeervol ingericht met een sierhaard. Dankzij de grote raampartijen valt er veel daglicht binnen en er is genoeg ruimte voor meerdere zithoeken. Aansluitend vind je de gezellige woonkeuken in een rechte opstelling met kook-/spoeleiland, compleet met kookplaat, afzuigkap, combi-oven, koelkast, vaatwasser en een Quooker. Via openslaande deuren stap je zo de veranda in – ideaal voor binnen-buiten leven. De keuken biedt ook toegang tot de ruime bijkeuken met vaste kastenwand en vervolgens een tussenportaal dat leidt naar buiten. In de bijkeuken vind je de aansluitingen voor wasmachine en droger. De slaapkamer – die vanuit de hal te bereiken is - beschikt over een vaste kast en grenst direct aan de volledig betegelde badkamer met inloopdouche, wastafelmeubel en toilet. De gehele begane grond is grotendeels voorzien van comfortabele vloerverwarming en de woonkamer beschikt over airconditioning.
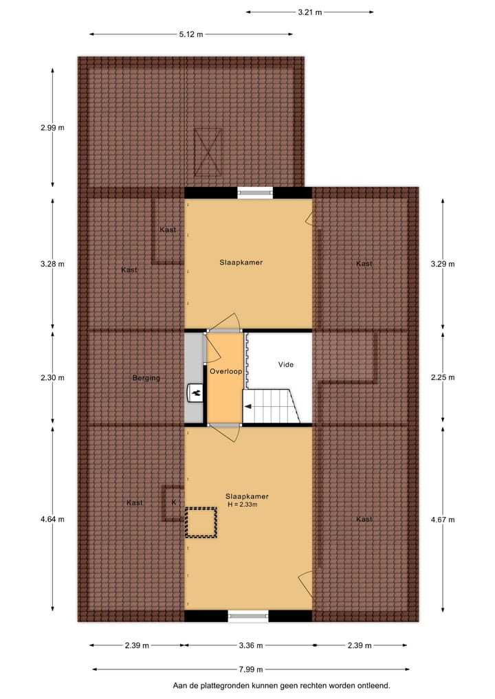
Eerste verdieping
Via een vaste trap bereik je de overloop. Hier zijn 2 slaapkamers bereikbaar. De grootste kamer ligt aan de linkerzijde van de woning en beschikt over een Velux-dakraam. De volgende slaapkamer ligt aan de rechterzijde en beide kamers beschikken over voldoende bergruimte achter de knieschotten. Op de overloop bevindt zich een vaste kast met daarin de cv-installatie (Remeha, 2020). De gehele verdieping is afgewerkt met vloerbedekking.
Bijzonderheden
De verzorgde tuin rondom de woning biedt volop zon én privacy. Dankzij de fraaie indeling met groene borders, royaal gezon, (sier)bestrating en de mogelijkheid voor meerdere gezellige zithoeken is er altijd een fijn plekje om te ontspannen of om samen met vrienden en familie buiten te genieten!
De sfeervolle veranda zorgt voor de nodige schaduw op warme dagen. Over opslag en parkeren geen zorgen; de vrijstaande berging met overkapping biedt voldoende opbergruimte en er is plek voor tenminste 5 auto’s op eigen terrein.
Kenmerken
Overdracht
- Laatste vraagprijs
- € 849.000 kosten koper
- Vraagprijs per m²
- € 6.197
- Status
- Verkocht
Bouw
- Soort woonhuis
- Eengezinswoning, vrijstaande woning
- Soort bouw
- Bestaande bouw
- Bouwjaar
- 1974
- Soort dak
- Zadeldak bedekt met pannen
- Keurmerken
- Energie Prestatie Advies
Oppervlakten en inhoud
- Gebruiksoppervlakten
- Wonen
- 137 m²
- Gebouwgebonden buitenruimte
- 39 m²
- Externe bergruimte
- 17 m²
- Perceel
- 645 m²
- Inhoud
- 550 m³
Indeling
- Aantal kamers
- 4 kamers (3 slaapkamers)
- Aantal badkamers
- 1 badkamer en 1 apart toilet
- Badkamervoorzieningen
- Inloopdouche, toilet, vloerverwarming, wastafel, en wastafelmeubel
- Aantal woonlagen
- 2 woonlagen
- Voorzieningen
- Dakraam, glasvezelkabel, en zonnepanelen
Energie
- Energielabel
- Isolatie
- Dakisolatie, dubbel glas en muurisolatie
- Verwarming
- Cv-ketel en gedeeltelijke vloerverwarming
- Warm water
- Cv-ketel
- Cv-ketel
- Remeha (gas gestookt combiketel uit 2020, eigendom)
Kadastrale gegevens
- LUNTEREN C 2801
- Kadastrale kaart
- Oppervlakte
- 645 m²
- Eigendomssituatie
- Volle eigendom
Buitenruimte
- Ligging
- Aan rustige weg en in woonwijk
- Tuin
- Tuin rondom
Bergruimte
- Schuur/berging
- Vrijstaande houten berging
- Voorzieningen
- Elektra
Parkeergelegenheid
- Soort parkeergelegenheid
- Op eigen terrein
Foto's 47
© 2001-2026 funda














































