
Omschrijving
Uitgebouwde gezinswoning in Maarssen!
Welkom in deze royale en uitgebouwde gezinswoning aan de Rogier van Otterloolaan 49 in Maarssen. Gelegen in een rustige, kindvriendelijke buurt, biedt deze woning een perfecte combinatie van ruimte, comfort en een centrale ligging.
Woningkenmerken:
• Ruime woonkamer: Dankzij de uitbouw aan de achterzijde is er een royale leefruimte ontstaan, ideaal voor gezellige familiemomenten of het ontvangen van gasten.
• Moderne keuken: De open keuken is voorzien van moderne inbouwapparatuur en biedt voldoende werk- en opbergruimte.
• Slaapkamers: De woning beschikt over meerdere slaapkamers, geschikt voor een gezin of het inrichten van een thuiskantoor.
• Tuin: De zonnige achtertuin is onderhoudsvriendelijk aangelegd en biedt ruimte voor ontspanning en buitenactiviteiten.
Ligging en bereikbaarheid:
De woning is gunstig gelegen met diverse voorzieningen in de nabijheid:
• Openbaar vervoer: Bushalte op slechts 280 meter afstand en treinstation Maarssen op 1,07 km, met directe verbindingen naar Utrecht en Amsterdam.
• Winkels en scholen: Supermarkt op 510 meter, diverse basisscholen binnen een straal van 1 km, en voortgezet onderwijs op circa 2,4 km.
• Snelwegen: De A2 is binnen enkele minuten bereikbaar, waardoor steden als Utrecht (7 km) en Amsterdam (circa 20 minuten rijden) gemakkelijk te bereiken zijn.
De wijk:
De woning bevindt zich in een groene en rustige woonwijk met een gevarieerde bevolkingssamenstelling. Met 36% gezinnen met kinderen, speeltuintje en een gemiddeld hoge woningwaarde, is het een aantrekkelijke buurt voor jonge gezinnen en starters.
Maarssen-Dorp:
Op korte afstand ligt het historische Maarssen-Dorp, bekend om zijn pittoreske grachten, monumentale panden en gezellige horeca. Hier vindt u onder andere restaurant Le Brasseur en het populaire Café Het Schippertje. De Vecht biedt mogelijkheden voor recreatie, zoals varen en wandelen langs het water.
Conclusie:
Rogier van Otterloolaan 49 is een ideale woning voor wie op zoek is naar ruimte, comfort en een centrale ligging. Met uitstekende voorzieningen, goede bereikbaarheid en een charmante omgeving is dit een plek waar u zich snel thuis zult voelen.
Indeling:
Begane grond:
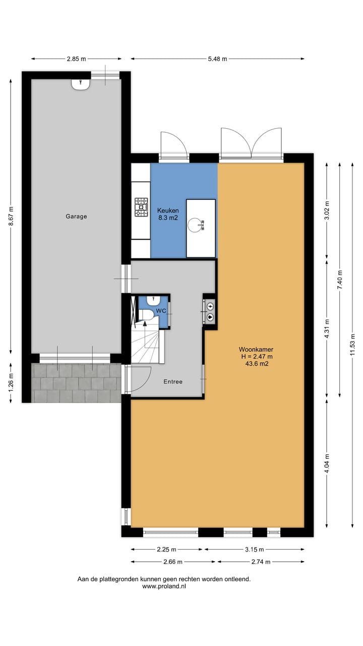
Via de entree, hal komt u in de doorzon woonkamer en ervaart u gelijk de lichtheid en de ruimte van het pand. Via de woonkamer en schuifpui wandelt u direct de diepe en zonnige achtertuin in. Op de vloer is een fraaie eikenhouten vloer gelegd.
Er is een open woonkeuken aan de achterzijde van het huis. Het betreft een moderne keuken met inbouwapparatuur en een werkblad van natuursteen. Aangrenzend aan de keuken is de garage
De voortuin heeft plek voor tenminste 1 auto. De ruime achtertuin is met groen ommuurd en biedt naast een fraaie afwerking ook veel zon en privacy.
1e verdieping:
Via de open trapopgang komt u op overloop met toegang naar de 4 ruime tot zeer ruime slaapkamers.
De badkamer is verzorgd met: wand- en vloertegels), fijne douche, wc, wastafel en een ligbad.
2e verdieping:
Via de vaste trap komt u op de overloop, hier vindt u de CV-ketelopstelling en een royale berg-/ werkruimte dakramen in beide kamers. Om te slapen, om te werken, voor uw hobby… noem maar op.
Bijzonderheden
- Perceeloppervlak circa: 267 m²
- Verwarming en warm water middels CV Combiketel (Nefit 2003)
- Het woonoppervlak is inclusief garage (hetgeen ook als woonoppervlak kan worden gebruikt). In het meetrapport staat vermeld het oppervlak exclusief garage.
- Goed gesitueerd ten opzichte van uitvalswegen
- Gratis parkeren op eigen oprit in voortuin en op de openbare weg
- In de vierkante meterprijs is de garage (25m2) en zolder met vaste trap (20m2) niet mee genomen.
Kenmerken
Overdracht
- Laatste vraagprijs
- € 800.000 kosten koper
- Vraagprijs per m²
- € 5.263
- Status
- Verkocht
Bouw
- Soort woonhuis
- Herenhuis, geschakelde woning
- Soort bouw
- Bestaande bouw
- Bouwjaar
- 1994
- Soort dak
- Lessenaardak bedekt met pannen
Oppervlakten en inhoud
- Gebruiksoppervlakten
- Wonen
- 152 m²
- Overige inpandige ruimte
- 14 m²
- Gebouwgebonden buitenruimte
- 4 m²
- Perceel
- 267 m²
- Inhoud
- 606 m³
Indeling
- Aantal kamers
- 6 kamers (4 slaapkamers)
- Aantal badkamers
- 1 badkamer en 1 apart toilet
- Badkamervoorzieningen
- Douche, dubbele wastafel, ligbad, en toilet
- Aantal woonlagen
- 3 woonlagen
- Voorzieningen
- Glasvezelkabel, mechanische ventilatie, en TV kabel
Energie
- Energielabel
- Isolatie
- Dakisolatie, dubbel glas, muurisolatie, vloerisolatie en volledig geïsoleerd
- Verwarming
- Cv-ketel
- Warm water
- Cv-ketel
- Cv-ketel
- Nefit (gas gestookt combiketel uit 2003, eigendom)
Kadastrale gegevens
- MAARSSEN A 5477
- Kadastrale kaart
- Oppervlakte
- 267 m²
- Eigendomssituatie
- Volle eigendom
Buitenruimte
- Ligging
- Aan rustige weg, in centrum en in woonwijk
- Tuin
- Achtertuin en voortuin
- Achtertuin
- 106 m² (12,50 meter diep en 8,50 meter breed)
- Ligging tuin
- Gelegen op het noordwesten bereikbaar via achterom
- Balkon/dakterras
- Balkon aanwezig
Garage
- Soort garage
- Inpandig
- Capaciteit
- 1 auto
Parkeergelegenheid
- Soort parkeergelegenheid
- Op eigen terrein en openbaar parkeren
Foto's 44
© 2001-2026 funda











































