Dit huis op Funda: https://www.funda.nl/detail/koop/maarssen/huis-spechtenkamp-308/43984125/

Omschrijving
Kom je een kijkje nemen bij de Spechtenkamp 308 te Maarssen? Dit leuke gezinshuis heeft 4 goede slaapkamers, een eigentijdse badkamer, een moderne keuken, een gezellige tuin met overkapping, parkeren op eigen terrein, energielabel C en diverse (verbouw)mogelijkheden.
De wijk Spechtenkamp is een rustige en kindvriendelijke buurt nabij de diverse uitvalswegen. Tevens ligt het huis dichtbij scholen, kinderdagverblijven, een gezondheidscentrum en overige voorzieningen. Op 10 minuten loopafstand ligt het winkelcentrum ‘Zwanenkamp’ met o.a. een Vomar en een bakker en ook het winkelcentrum ‘Bisonspoor’ is op korte afstand gelegen. Bisonspoor is een groot winkelcentrum met diverse winkels, supermarkten en horeca. Maarssen beschikt over een eigen treinstation met goede verbindingen naar Utrecht en Amsterdam en de busverbinding is ook zeer goed te noemen. Het oude dorpskern van Maarssen en het prachtige buitengebied rondom de Vecht zijn op fietsafstand gelegen.
De indeling van het huis is als volgt:
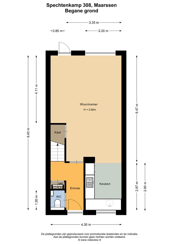
Begane grond: entree, hal, toiletruimte, moderne meterkast (2020), trapopgang naar de 1e verdieping en toegangsdeur naar woonkamer. De woonkamer is gelegen aan de achterzijde en heeft een goede lichtinval door de grote raampartij en een toegangsdeur naar de achtertuin. Eventueel uitbouwen of dubbele openslaande deuren? Dat is zeker mogelijk! Aan de voorzijde is de keuken gesitueerd. De keuken (2018) heeft een L-opstelling, een neutrale kleurstelling en diverse inbouwapparatuur.
Eerste verdieping: Via de trap kom je op de overloop. De overloop bied toegang tot 2 goede slaapkamers en een badkamer. De zeer royale hoofdslaapkamer is aan de achterzijde gelegen en voorzien van een dubbele raampartij en biedt voldoende plek voor een tweepersoonsbed en een kastenwand. Aan de voorzijde ligt de 2e slaapkamer en is tevens van goed formaat, een ideale kinder-/werkkamer. De badkamer heeft een neutrale kleurstelling en beschikt over een ligbad met douchecombinatie, 2e toilet en dubbele wastafel.
Tweede verdieping: via de trap kom je op de overloop. De overloop beschikt over de opstelplaats voor de CV-ketel (2020) en wasapparatuur. Verder is er op dit moment een praktische werkplek gecreëerd op de voorzolder. Vanuit de overloop is de 3e en 4e slaapkamer bereikbaar. Beide leuke kinder-/werkkamers met een Velux dakraam. De slaapkamers vergroten? Een dakkapel zou hier wellicht de uitkomst zijn.
Tuin: via de woonkamer kom je in de achtertuin op het zuidwesten. De tuin biedt een gezellige overkapping met voldoende plek voor een zithoek of eettafel om lekker buiten te eten. Verder is er een moderne elektrische zonnescherm aanwezig en een ‘achterom’. Aan de voorzijde is een stenen schuurtje en de mogelijkheid om te parkeren op eigen terrein.
Bijzonderheden:
- woonoppervlakte van ca. 102 m² en 113 m² perceeloppervlakte;
- aanwezigheid van 4 slaapkamers en een ruime badkamer;
- diverse (verbouw)mogelijkheden om de woonruimte te vergroten;
- schilderwerk is recent gedaan, de voorkant in 2025 en de achterkant in 2023
- gelegen in een rustige en kindvriendelijke buurt;
- op loopafstand van basisscholen en overige voorzieningen;
- parkeren op eigen terrein;
- energielabel C;
- oplevering in overleg.
In de koopovereenkomst worden de navolgende artikelen opgenomen:
*ouderdomsclausule, vanwege het bouwjaar;
*asbestclausule.
Interesse in dit huis? Schakel direct jouw eigen NVM-aankoopmakelaar in.
Jouw NVM-aankoopmakelaar komt op voor jouw belang en bespaart je tijd, geld en zorgen.
Kenmerken
Overdracht
- Laatste vraagprijs
- € 450.000 kosten koper
- Vraagprijs per m²
- € 4.412
- Status
- Verkocht
Bouw
- Soort woonhuis
- Eengezinswoning, tussenwoning
- Soort bouw
- Bestaande bouw
- Bouwjaar
- 1983
- Soort dak
- Zadeldak bedekt met pannen
Oppervlakten en inhoud
- Gebruiksoppervlakten
- Wonen
- 102 m²
- Externe bergruimte
- 5 m²
- Perceel
- 113 m²
- Inhoud
- 359 m³
Indeling
- Aantal kamers
- 5 kamers (4 slaapkamers)
- Aantal badkamers
- 1 badkamer en 1 apart toilet
- Badkamervoorzieningen
- Dubbele wastafel, ligbad, en toilet
- Aantal woonlagen
- 3 woonlagen
- Voorzieningen
- Buitenzonwering, dakraam, glasvezelkabel, en mechanische ventilatie
Energie
- Energielabel
- Isolatie
- Dakisolatie, dubbel glas en muurisolatie
- Verwarming
- Cv-ketel
- Warm water
- Cv-ketel
- Cv-ketel
- Nefit (gas gestookt combiketel uit 2020, eigendom)
Kadastrale gegevens
- MAARSSEN B 7520
- Kadastrale kaart
- Oppervlakte
- 113 m²
- Eigendomssituatie
- Volle eigendom
Buitenruimte
- Ligging
- Aan rustige weg en in woonwijk
- Tuin
- Achtertuin en voortuin
- Achtertuin
- 33 m² (7,41 meter diep en 4,48 meter breed)
- Ligging tuin
- Gelegen op het zuidwesten bereikbaar via achterom
Bergruimte
- Schuur/berging
- Aangebouwde stenen berging
Parkeergelegenheid
- Soort parkeergelegenheid
- Op eigen terrein en openbaar parkeren
Foto's 41
© 2001-2026 funda








































