Dit huis op Funda: https://www.funda.nl/detail/koop/maasbree/huis-vlodropstraat-27/43916446/

Omschrijving
Deze goed onderhouden twee-onder-een-kapwoning biedt verrassend veel leefruimte, een zonnige tuin op het zuidwesten én een vrije achterom. Met drie slaapkamers, een lichte en ruime woonkamer, eigen oprit en praktische berging heb je hier opties genoeg. Verder is de woning gelegen in een woonwijk aan een rustige woonstraat nabij alle dagelijks benodigde voorzieningen van Maasbree, maar ook met uitvalswegen A67 (Venlo-Eindhoven) en A73 (Roermond-Nijmegen) op nog geen 10 minuten rijden.
Indeling
Begane grond
Je betreedt de woning via de hal met meterkast, toilet en trapopgang. De Z-vormige woonkamer is aangenaam licht door de grote raampartijen aan de voor-, achter- en zijkant. Er is volop ruimte voor een comfortabele zit- en eethoek. De gesloten keuken in L-opstelling is voorzien van een 5-pits gaskookplaat, afzuigkap, combimagnetron, koelkast, diepvries, vaatwasser en boiler voor heet water. Vanuit de keuken heb je toegang tot de achtertuin middels een halletje met extra bergruimte.
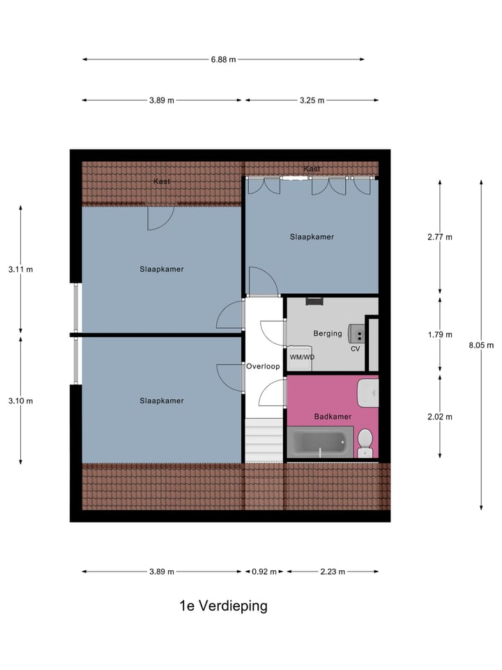
1e Verdieping
De overloop biedt toegang tot drie slaapkamers, bergruimte/wasruimte en badkamer. Aan de voorzijde ligt een ruime slaapkamer voorzien van gevelraam en rolluiken. Aan de achterzijde bevindt zich de 2e ruime slaapkamer eveneens voorzien van gevelraam en rolluik. De derde slaapkamer, gelegen aan de achterzijde, is voorzien van een dakkapel. De badkamer beschikt over een ligbad, tweede toilet en wastafel. In de bergruimte bevinden zich de witgoedaansluitingen en de opstelling van de C.V.-installatie (Nefit 2021), vanuit hier is toegang tot de vlizozolder.
2e Verdieping
Ruime bergzolder, ideaal voor opslag.
Tuin
De zonnige achtertuin ligt op het zuidwesten en heeft een vrije achterom via de eigen ruime oprit. Dankzij de ligging geniet je hier volop van middag- en avondzon. De tuin is ingericht met gazon, borders met beplanting en een terras aan de woning. Aan de zijkant van het huis bevindt zich een praktische berging met elektra, ideaal voor het stallen van fietsen of als klusruimte. Parkeren kan op de eigen oprit, direct naast de woning.
Ligging
De woning ligt aan een rustige woonstraat in Maasbree, met het centrum, winkels, basisschool en sportvoorzieningen op loop- of fietsafstand. Binnen enkele minuten rijden sta je ook op de A73 of A67, wat zorgt voor een goede bereikbaarheid richting steden als Venlo, Roermond, Nijmegen en ook Eindhoven.
Algemeen
- Voorzien van hardhouten kozijnen met gedeeltelijk dubbelglas en geheel van dakisolatie;
- Veel leefruimte op de begane grond en 3 slaapkamers op de verdieping;
- Heerlijke achtertuin op het zuidwesten bereikbaar via eigen vrije achterom;
- Woning met veel leefruimte en heel veel potentie, maar zal wel nog naar eigen smaak gemoderniseerd dienen te worden.
Kenmerken
Overdracht
- Laatste vraagprijs
- € 309.000 kosten koper
- Vraagprijs per m²
- € 2.809
- Status
- Verkocht
Bouw
- Soort woonhuis
- Eengezinswoning, 2-onder-1-kapwoning
- Soort bouw
- Bestaande bouw
- Bouwjaar
- 1973
- Soort dak
- Zadeldak bedekt met pannen
Oppervlakten en inhoud
- Gebruiksoppervlakten
- Wonen
- 110 m²
- Overige inpandige ruimte
- 4 m²
- Externe bergruimte
- 10 m²
- Perceel
- 252 m²
- Inhoud
- 450 m³
Indeling
- Aantal kamers
- 7 kamers (3 slaapkamers)
- Aantal badkamers
- 1 badkamer en 1 apart toilet
- Badkamervoorzieningen
- Ligbad, toilet, en wastafel
- Aantal woonlagen
- 2 woonlagen, een zolder, en een kelder
- Voorzieningen
- Rolluiken en TV kabel
Energie
- Energielabel
- Isolatie
- Dakisolatie, dubbel glas en gedeeltelijk dubbel glas
- Verwarming
- Cv-ketel
- Warm water
- Cv-ketel
- Cv-ketel
- Nefit (gas gestookt combiketel uit 2021, eigendom)
Kadastrale gegevens
- MAASBREE K 135
- Kadastrale kaart
- Oppervlakte
- 252 m²
- Eigendomssituatie
- Volle eigendom
Buitenruimte
- Ligging
- In woonwijk
- Tuin
- Achtertuin en voortuin
- Achtertuin
- 120 m² (12,00 meter diep en 10,00 meter breed)
- Ligging tuin
- Gelegen op het zuidwesten bereikbaar via achterom
Parkeergelegenheid
- Soort parkeergelegenheid
- Op eigen terrein
Foto's 46
© 2001-2026 funda













































