
Omschrijving
In de geliefde wijk "Het Palet" mogen wij deze zeer ruime eengezinswoning te koop aanbieden. Deze heerlijke woning beschikt onder andere over een ruime woonkamer, vier slaapkamers, een onderhoudsvriendelijke achtertuin op het zonnige zuidoosten en de mogelijkheid een kantoor aan huis te realiseren.
Deze woning is gelegen in een kindvriendelijke wijk met diverse voorzieningen zoals het buurtwinkelcentrum ''Palet'', scholen, openbaar vervoer en uitvalswegen in directe nabijheid.
De indeling is als volgt:
- Begane grond -
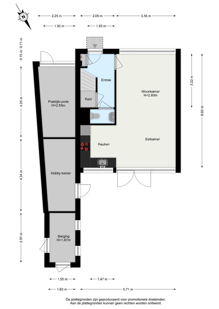
Entree, hal met trapopgang naar de eerste verdieping, meterkast, toiletruimte en toegang tot de woonkamer.
De woonkamer is een fijne plek waar het hele gezin kan samenkomen. De half open keuken beschikt over de nodige apparatuur en middels de openslaande deuren krijg je toegang tot de zonnige en onderhoudsvriendelijke achtertuin.
- Eerste verdieping -
Overloop met toegang tot de 3 slaapkamers, werkkamer met cv- installatie, badkamer en trapopgang naar de tweede verdieping. De ouderslaapkamer beschikt over een vaste kastenwand en de slaapkamer aan de voorzijde over een knus balkon. De badkamer kent dezelfde afwerking als het toilet beneden en beschikt over een ligbad met douche, wandcloset en wastafelmeubel.
- Tweede verdieping -
Overloop welke toegang biedt tot de vierde slaapkamer. Deze verdieping is voorzien van een nokverhoging en dakkapel!
- Tuin -
In de diepe achtertuin geniet je heerlijk van de zon. Achterin de tuin is een gezellige overkapping gesitueerd, waar overdag de schaduw opgezocht kan worden. Tevens is er een aangebouwde stenen berging en vrijstaande houten berging aanwezig voor de nodige opbergruimte.
- Afmetingen -
Voor de afmetingen en de indeling verwijzen wij je door naar de gedetailleerde plattegronden van de woning.
- Bijzonderheden -
o Bouwjaar 1960.
o Totale woonoppervlakte ca. 113 m2.
o Totale inhoud ca. 467 m3.
o Gedeeltelijk voorzien van kunststof kozijnen.
o De woning is voorzien van een nokverhoging én dakkapel waardoor er een volledige tweede verdieping is.
o 8 Zonnepanelen aanwezig (eigendom).
o Ouderdomsclausule van toepassing.
o Oplevering in overleg.
Je wilt een huis kopen? Neem je eigen NVM aankoopmakelaar mee!
Deze tekst is met zorg samengesteld. Voor de juistheid van de verstrekte informatie zijn wij in de regel in grote mate afhankelijk van derden. De vermelde informatie is van algemene aard en is niet meer dan een uitnodiging om in onderhandeling te treden. Aan de inhoud van deze informatie kunnen geen rechten worden ontleend.
Kenmerken
Overdracht
- Laatste vraagprijs
- € 499.000 kosten koper
- Vraagprijs per m²
- € 4.416
- Status
- Verkocht
Bouw
- Soort woonhuis
- Eengezinswoning, eindwoning
- Soort bouw
- Bestaande bouw
- Bouwjaar
- 1960
- Soort dak
- Samengesteld dak bedekt met bitumineuze dakbedekking en pannen
Oppervlakten en inhoud
- Gebruiksoppervlakten
- Wonen
- 113 m²
- Overige inpandige ruimte
- 22 m²
- Gebouwgebonden buitenruimte
- 2 m²
- Externe bergruimte
- 5 m²
- Perceel
- 188 m²
- Inhoud
- 467 m³
Indeling
- Aantal kamers
- 7 kamers (4 slaapkamers)
- Aantal badkamers
- 1 badkamer en 1 apart toilet
- Badkamervoorzieningen
- Douche, ligbad, en toilet
- Aantal woonlagen
- 3 woonlagen
- Voorzieningen
- Zonnepanelen
Energie
- Energielabel
- Isolatie
- Grotendeels dubbelglas
- Verwarming
- Cv-ketel
- Warm water
- Cv-ketel
- Cv-ketel
- Gas gestookt combiketel, eigendom
Kadastrale gegevens
- MAASSLUIS B 384
- Kadastrale kaart
- Oppervlakte
- 188 m²
- Eigendomssituatie
- Volle eigendom
Buitenruimte
- Ligging
- In woonwijk
- Tuin
- Achtertuin en voortuin
Bergruimte
- Schuur/berging
- Aangebouwde stenen berging
Parkeergelegenheid
- Soort parkeergelegenheid
- Openbaar parkeren
Foto's 53
© 2001-2026 funda




















































